Из однушки в трешку. Почти, что трешка из однокомнатной квартиры в закладки 5
Из однушки в трешку. Почти, что трешка из однокомнатной квартиры в закладки 5
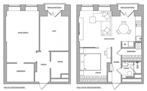
Из «однушки» требовалось сделать трехкомнатную: выделить, кроме кухни, гостиную, детскую и спальню
О проекте
Место: Санкт-Петербург
Размер: 43,5 кв. м
Высота потолков: 2,75 м
Кто здесь живет: Молодая женщина с дочкой
Дизайнер предложила шесть вариантов перепланировки однокомнатной квартиры, и заказчица остановились на самом смелом и необычном варианте переделки. Кухню перенесли в зону прихожей, а на ее месте и на месте присоединенной к ней лоджии образовалось две спальни.
«С перепланировкой не возникло проблем. Дом построен компанией YIT — в их домах предусмотрена гидроизоляция всей квартиры с заходом на стены, то есть соседям внизу не страшен даже сильный потоп», — поясняет Светлана. В результате кухня стала центром квартиры, визуальным и бытовым. Она совмещена с гостиной и столовой, и здесь проходит большая часть дня семьи.

План квартиры до перепланировки

План квартиры после перепланировки


Кухня и мебель для гостиной Giulia Novars
В кухне есть все необходимое: посудомоечная машина, варочная панель, выдвижная сушилка для посуды, раковина. В двух пеналах напротив входа в квартиру расположили холодильник, стиральную машину и духовку с функцией микроволновки.
Еще выше за дверцей спрятаны бойлер и полки для хранения.
Проблема и решение: Во время переделки в зоне кухни пришлось частично «опустить» потолок для организации отвода воздуха от вытяжки.


Совет от дизайнера: Каким бы ни был размер квартиры, используйте больше светлых поверхностей и зеркал для увеличения пространства. Здесь для этого служат зеркальный шкаф в кухне-гостиной, глянцевый натяжной потолок и светлое дерево на полу.


Диван, кровать Life Style; двери, шкафы Marco; мебель, аксессуары ИКЕА; свет: SLV от Marbel
«Хозяйке хотелось, чтобы для девочки было выделено отдельное помещение,— рассказывает Светлана. — Мы построили детскую на месте бывшей лоджии. Установили зимнее остекление, положили теплый пол, который частично переходит на стены, и добавили электрообогреватель».


Обратите внимание: В спальне образовался широкий проем в детскую, и на его боковые части Светлана приклеила зеркала, немного увеличив пространство.
Места для тумбочек возле кровати оставалось совсем мало, поэтому их заменили полками с подсветкой, но с условием, что здесь будут стоять только легкие предметы.

Совет от дизайнера: В маленьких квартирах важен каждый сантиметр. Чтобы сохранить функциональность и сэкономить место, вместо стандартных дверей можно использовать раздвижные (как на фото).

«Девчонки — большие модницы, им нужно было много мест хранения. Отсюда два шкафа в спальне и гостиной. Левая часть шкафа в гостиной используется для верхней одежды, а правая — для хозяйственных нужд. В кровати, под матрасом, — большой короб для белья, подушек, одеял. Еще в спальне есть два комода от ИКЕА — взрослый и детский», — говорит дизайнер.

Из однушки в двушку. Готовые схемы проектов переделки однокомнатной квартиры в двухкомнатную разной площади
При перепланировке в 38 кв м учитывается все до мелочей. Для такой квартиры лучше всего подойдут такие стили, как хай-тек, скандинавский или кантри. При использовании одного из стилей в квартире будет уютно и просторно. Важно заранее все распланировать, как из однушки сделать двушку и постепенно начать перестройку. Главное, выбрать подходящий вариант и тем самым можно преобразить свою жилплощадь.

Спальная зона выделена в небольшую, но отдельную комнату. Большая часть пространства досталась кухне-гостиной, в которой раскладной диван служит дополнительным местом для сна
При 40 кв м комнаты могут быть открытыми, что придаст квартире неповторимый вид. При перепланировке в любой интерьер можно внести “изюминку” и тогда все будет смотреться изящно и красиво. Каждому хозяину квартиры можно создать индивидуальный проект и решить как из однушки сделать двушку 40 кв. Разграничивая помещения в квартире нужно сделать так, что все было компактно расставлено.

Приватное место для ночного отдыха размещено за стеклянной перегородкой, что позволило сохранить в спальне естественное освещение
При 43 кв м будет уютно, если разграничить основную комнату перегородкой. У тех, у кого есть дети сделать для них игровую комнату. Если владелец проживает один, то ему можно создать уютное офисное помещение. Все гармонично сочетаться в соответствие с установленными правилами.

Комната с двумя окнами разделена на спальную и гостиную зоны, последняя отделена от кухни барной стойкой
При 45 кв м в одной комнате можно установить кровать и диван без потери основного стиля. Вторая половина может быть занята кухней в американском стиле. Здесь можно все разграничить так, чтобы уместились:
- напольные вешалки;
- небольшие шкафчики;
- напольный торшер;
- столик;
- диван и т.д.

Благодаря перепланировки удалось организовать просторную кухню-гостиную и уютную спальную зону с небольшим гардеробом
При 50 кв м может получиться в одной половине уютная спальня, а в другой отдельный уголок отдыха. В качестве перегородки можно поставить прозрачные. Это придаст помещению современный, презентабельный вид. В квартире может быть объединена кухня с гостиной и отдельная спальня. Все это может быть удобным вариантом для семейной пары.

Функциональный интерьер с достаточно большой спальной комнатой, кухне-гостиной и рабочим кабинетом на утепленной лоджии
При перепланировке 55 кв м можно сделать интерьер в швейцарском стиле, использовав светлые оттенки. Интерьер лучше не перегружать лишними деталями, а повесить украшения на стены и потолок. Если даже дизайн простой, то интерьер может получиться стильный и современный.

Как сделать из студии однушку. Как из студии сделать однокомнатную квартиру
Квартиры-студии очень популярны, ведь они позволяют из двух небольших помещений сделать уютную и стильную комнату. Минимум стен и перегородок, максимум воздуха и пространства – вот основные характеристики такой квартиры. Проектирование таких помещений происходит по индивидуальным заказам, их относят к разряду элитного жилья. Стоимость студии выше, чем стандартной однокомнатной квартиры. Услуги дизайнера стоят немалых денег, поэтому владельцы часто задумываются, как сделать квартиру студию самостоятельно.
Преимущества студии
Понятие «квартира-студия» пришло с Запада, там доступное жилье без планировки получило признание среди молодежи. Такое проектирование позволяло создавать временные перегородки и часто менять расстановку мебели. Тот же принцип сделал студии популярными в нашей стране. Это идеальный вариант для молодой семьи, дополнительная площадь позволяет разместить больше гостей. Преимущества студии из однокомнатной квартиры следующие:
- Появляется больше свободного пространства.
- Помещение приобретает индивидуальный стиль.
- Можно часто изменять дизайн квартиры, путем перестановки мебели.
- При правильном подходе комната получается хорошо освещенной.
Недостатком совмещения кухни и жилой комнаты станет присутствие запахов пищи. Избавиться от них можно при помощи хорошей вытяжки. В холодное время года в просторной студии станет прохладно. Перед началом отопительного сезона стоит позаботиться об утеплении окон и дополнительных радиаторах. Дополнительным источником тепла и уюта в студии станет инфракрасный теплый пол, который легко монтируется под ламинированное покрытие.
Варианты организации пространства
Дизайн квартиры-студии предполагает деление на зоны. Его выполняют за счет создания своеобразных перегородок – легких ширм, сквозных стеллажей, барной стойки, отделяющей кухню.
Такое деление позволяет почувствовать некое уединение и делает комнату уютной. Невысокая перегородка из гипсокартона визуально разграничит пространство и за ней можно оборудовать рабочий уголок. Одним из интересных и оригинальных вариантов разделения является создание арки между зоной приготовления пищи и гостиной. Кроме конструктивных элементов распределение зон подчеркивают различным напольным покрытием, на кухне положите практичную плитку, а в основной части положите ламинат. Высота потолка также отличный инструмент для разграничения пространства, к тому же создание в отдельных местах оригинальных подвесных конструкций сделает интерьер изысканным и индивидуальным. Различия в оттенках обоев или краски на стенах, несомненно, подчеркнут отдельные детали студии.
Планировка квартиры состоит из нескольких основных зон:
- Гостевая — это пространство, где сосредоточена основная мебель: стол, кресла, диван, шкаф и телевизор. Эту часть располагают у окна, стену можно украсить полкой с декоративными элементами.
- Кухня – ее стоит максимально выделить, лучший вариант создание барной стойки. Если нет места для установки, то можно положить другое напольное покрытие или сделать подвесной потолок с коробом по периметру и подсветкой. На кухне размещают плиту, бытовую технику, ящики, шкафчики для посуды.
- Спальное место – здесь размещается кровать, ее можно отделить легкой перегородкой или ширмой. Интересное решение – создание подиума для кровати.
- Если в семье есть ребенок, для него выделяется игровая зона или место для уроков. Открытое пространство позволяет без помех следить за детьми.
Как расставить мебель
Расположение мебели играет особую роль в восприятии студии, любой предмет может стать символом границы одной из зон: спинка стула, приставленного к рабочему столу, обозначит кабинет, диван – гостиную. Основное размещение мебели выполняется вдоль стен, ведь студия создается для свободного пространства. Но отделение зоны отдыха обычно выполняется диваном, установленным напротив телевизора. Массивная мебель не впишется в интерьер студии, ее лучше заменить трансформирующимися моделями. Обстановка зависит только от вкуса и предпочтений хозяев.
Из малогабаритной квартиры
Малогабаритная квартира не радует владельцев даже после хорошего ремонта. Но можно сделать студию из хрущевки. Перепланировка позволит объединить в одно полезное пространство кухню, жилую комнату, прихожую и коридор. Маленькие, разделенные стенами комнаты, станут одной просторной и комфортной студией. Квартира в корне изменится, ее можно оформить в любимом стиле: минимализм, классика или японский стиль. Дизайн таких интерьеров включает натуральные материалы, необходимую мебель, оригинальную отделку.
Перед началом работы необходимо составить проект перепланировки и оценить финансовые возможности.
stroysvoimirukami.ru
Вопрос читателя
Добрый день. Мы с мужем приобрели квартиру-студию общей площадью 38,9 квадратных метров. Скоро у нас появится ребенок, и нам хотелось бы как можно более рационально обустроить свое гнездышко. Не могли бы вы подсказать нам, как, где и какие можно выделить зоны?Заранее спасибо!Людмила.
Ответ дизайнера
Студия, превращенная в двухкомнатную квартиру.