Милый дом
Море полезных идей для квартиры и дома
Main menu
Главная
Новости
Статьи
Главная
»
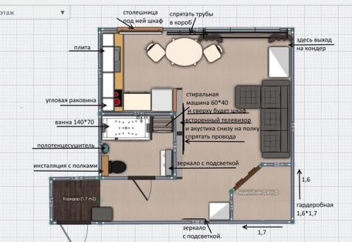
Приобрели убитую в хлам квартиру, в которой не было даже перегородок.
Приобрели убитую в хлам квартиру, в которой не было даже перегородок.
08.12.2021 в 15:54
Разработали план и приступили к ремонту
.
Понравилось? Поделитесь с друзьями!
⇦
Ремонт нашей однушки, интерьер старались сделать наиболее светло.
⇨
Цвет штор к бежевым обоям. Подбираем шторы к бежевым стенам (обоям): основные критерии