Печи металлические для бани. Металлические печи для бани: как изготовить и установить, какие материалы использовать
Печи металлические для бани. Металлические печи для бани: как изготовить и установить, какие материалы использовать

Фото с сайта 9ban.ru
По сравнению с каменной, железная печь отличается высокой теплоотдачей и быстро нагревает помещение.
Железную печь для бани можно купить специализированном магазине, а можно сделать из подручного металла своими руками.
Читайте нашу статью и узнайте, как сделать металлическую банную печь своими руками.
Преимущества печи для бани из нержавейки
- Масса конструкции. Каменные печи сложены из тяжелых кирпичей, поэтому нагреваются и остывают очень долго. Железные – легкие, поэтому нагреть помещение до нужной температуры с ней можно быстро.
- Компактные размеры. Даже для совсем небольшой парилки можно сделать хорошую железную печь, которая будет быстро нагревать помещение.
Особенности конструкции и материалов такого нагревательного элемента требуют соблюдения нескольких условий эксплуатации, позволяющих обеспечить высокую температуру в помещении и просушить его.
Во-первых, необходимо правильно подобрать дрова. Они должны гореть как можно дольше.
Во-вторых, при нагреве металла до температуры 150 градусов, он начинает деформироваться, а при температуре 900 градусов – становится ярко-красного цвета и теряет прочность. При такой температуре сварные швы начинают расходиться, и срок эксплуатации сильно сокращается.
Как сделать железную печь для бани своими руками
Вариантов исполнения таких печек несколько. Они различаются по форме и материалу. Нередко для их изготовления применяют подручные материалы.
Печь для бани своими руками из трубы
Это самый простой и дешевый способ обогреть свою парилку. Такая конструкция подходит для небольших помещений и по эффективности не уступает промышленным аналогам. Еще одно преимущество печки из трубы – герметичность, благодаря которой в помещение не поступает угарный газ.
фото с сайта http://nizhnij-novgorod.buyreklama.com
Чтобы сделать её своими руками следуйте нашей пошаговой инструкции.
- Для изготовления понадобится железная труба длиной от 150 см и с толщиной стенок от 1 см. Её разрезают на 2 части – длина которых составляет 90 и 60 см.
- Вырезаем поддувало. В большом отрезке снизу вырезаем прямоугольник с размерами 5-6 см на 18-20 см. Поддувало будет служить еще и зольником.
- Изготовление стальной пластины. Круглую пластину толщиной 1,2 см приваривают над поддувалом. Её диаметр должен соответствовать диаметру используемой трубы. В середине пластины вырезают отверстие под колосник, который проще будет купить в магазине.
- Изготовление топочной камеры. В этом же куске вырезают отверстие для топки. Оно должно иметь размеры 30х25 см. На отверстие навешивают металлическую дверцу и приваривают защелку.
- Установка отсекателя. Он предназначен для улучшения движения дыма по трубе. Отсекатель должен быть прямоугольной формы со срезанными углами. Его приваривают внутрь, так чтобы между листом и стенками трубы оставались зазоры.
- Установка днища каменки. На расстоянии 7-10 см выше отсекателя приваривают решетку из арматуры. Возле решетки вырезают отверстие и устанавливают дверцу.
- Заваривание трубы. Корпус сверху закрывают стальным листом и приваривают. В листе прорезают круглое отверстие для дымохода.
- Изготовление бака для воды. Меньший кусок используют, чтобы сделать емкость для воды. К нему приваривают дно и трубу, которая пройдет вертикально через бак. Она должна выступать из емкости на 3-4 см.
- Крышка для бака. Крышку для бака вызерают круглой формы и разрезают пополам. Одну часть приваривают, а вторую оставляют, чтобы закрывать емкость.
- В нижней части емкости вваривают кран для слива воды.
Сварная печь для бани своими руками. Конструкция печи
Любая печь для бани состоит из нескольких обязательных элементов:
- Зольник . Он расположен сразу под топкой, поэтому в него попадает зола, остающаяся после сгорания топлива. Резервуар следует время от времени очищать от золы.
- Поддувало . Это специальная дверка, которая обеспечивает доступ воздуха в топку, в результате чего топливо лучше горит.
- Задвижка в дымоходе . Такой заслон обеспечивает тягу в печи. Чем шире она открыта, тем интенсивнее и быстрее сгорает топливо в печи. После полного прогорания и остывания углей и печи, эти заслонки полностью перекрывают, чтобы сохранить тепло. Если же угли еще тлеют, то во избежание отравления угарным газом, оставляют зазор в 2 см для вентиляции.
- Змеевик или котел . В этих элементах, встроенных в топливный отсек, происходит нагрев воды. Выходящий из них пар создает в бане нужный микроклимат, кроме того, воду не нужно будет кипятить дополнительно.
Каждая из разновидностей печей отличается своими характеристиками, которые нужно учитывать при выборе оптимального варианта для создания определенных условий в бане.

Различают такие печи, как:
- На дровах . Такая конструкция печи является наиболее привычной и распространенной. В нее входит топка, колосники, зольник и дымоход. Материалом для печи может быть кирпич, либо металл. Примечательно, что подобные конструкции при небольших габаритах способны быстро и эффективно прогреть даже просторное помещение. Их часто применяют в постройках, куда не подведено центральное газоснабжение. Именно дровяную печь для бани сварить своими руками проще всего. А приятным бонусом является легкое потрескивание дров во время горения, которое успокаивает и умиротворяет.
- Чугунные . По технологии работы такие печи бывают постоянного и временного горения (детальнее: " Как выбрать печь чугунную для бани – советы и рекомендации "). Конструкции временного действия протапливаются дровами. Пользоваться парной можно начинать только после полного сгорания топлива. А вот печи постоянного подогрева работают на газе или жидком топливе. В этом случае находиться в парной можно все время, пока печь топится, причем пар распределяется по комнате равномерно, да и прогревается она намного быстрее.
- Электрические . Установки такого типа выпускают в различных размерах, мощности и эффективности. Такие печи способны быстро догнать температуру до необходимых показателей, они долговечны и хорошо отдают тепло. По стоимости электропечи не очень затраты, к тому же, для них не нужен дымоход.
- Для финских саун . Сама конструкция таких печей предполагает выработку сухого пара и высокой температуры в парной. Они могут быть как электрическими, так и на дровах. При наличии специальных чертежей, сварка печи для бани финского типа может быть произведена самостоятельно (подробнее: " Какая финская печь для бани подойдёт лучше всего ").
Правильная печь для бани. Чертежи самодельных банных печей из металла
Эта печь разработана для парной 2*3*2,3 м. Варилась из листового металла толщиной 3 мм.

Печь из металла для бани с закрытой каменкой
Для активизации горения предусмотрено подключение дополнительного воздуховода, проложенного с улицы. Из других решений — ребра жесткости (уголки) приваренные к бокам топки в верхней части топки для того, чтобы при сильном нагреве металл не выгибало.
Следующая схема металлической печи для бани сделана с подачей воздуха в верхнюю часть топки. Это так называемые печи с дожиганием газов. На задней стене приварена пластина из металла. В щель между этой пластиной и задней стенкой топки при помощи трубок-воздуховодов подается воздух из-под колосников. Это нехитрое, вроде, устройство решает сразу две задачи. Во-первых, охлаждает заднюю стенку, снижая вероятность ее прогорания. Во-вторых, воздух подается в верхнюю часть разогретым. Там сосредоточены разогретые до высоких температур дымовые газы, большая часть которых горючая (до 80%). Когда эти газы смешиваются с подогретым воздухом, горючие вещества воспламеняются, температура в верхней части топки становится еще выше, камни нагреваются до более высоких температур. При этом (при использовании сухих дров) топлива требуется намного меньше. На этом принципе построены многие печи длительного горения, но в банных печах он стал использоваться недавно.

Печь с подачей вторичного воздуха
Примерно та же модель, но без дожига, выполнена в другом формате. Тут размеры не указаны, зато проще понять пропорции и расположение различных элементов.

Объемная модель самодельной печи-каменки из металла
В данном случае объем топки составляет около 130% от объема каменки. Нормальное соотношение. Дымоход смещен назад, что не всегда хорошо — могут возникнуть сложности при устройстве дымохода — он может упереться в потолочную балку — придется дымоход изгибать, что нежелательно. Так что насчет расположения трубы — подумайте.
Еще в среде любителей бани постоянно ведутся споры: бак для нагрева воды в парилке — это хорошо или плохо… Одни регулируют влажность открывая/закрывая крышку бака. Их такой вариант устраивает. Другие говорят, что этот пар «тяжелый», и выносят бак в моечное отделение, а воду в нем греют, встроив в топку теплообменник и соединив его с баком трубами. Следующая схема — печь в баню из металла с баком для воды.

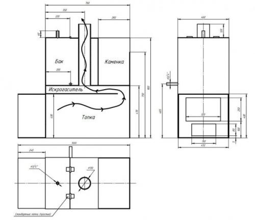
Чертеж печи для бани с баком для воды
Конструкция грамотная — при помощи «искрогасителя» путь прохождения дымовых газов длиннее, дольше он остается в топке, лучше нагревает стенки. Если вы не хотите бак, на его место можно уложить камни.
Интересный вариант с баком, который находится в задней части печи. Дымоход сдвинут назад, и проходит через бак. Высота бака большая, теплосъем будет эффективным — температура дымохода на выходе из бака большой не будет точно.

Вариант небольшой печи с большим баком
Интересно устроена каменка. Она не очень большая, но для небольших и средних парилок ее объема хватит. Закрывается она крышкой, что с одной стороны не очень удобно: закрывать крышку после подачи воды на камни будет проблематично. С другой стороны, это удобно в обслуживании.
