Милый дом
Море полезных идей для квартиры и дома
Main menu
Главная
Новости
Статьи
Главная
»
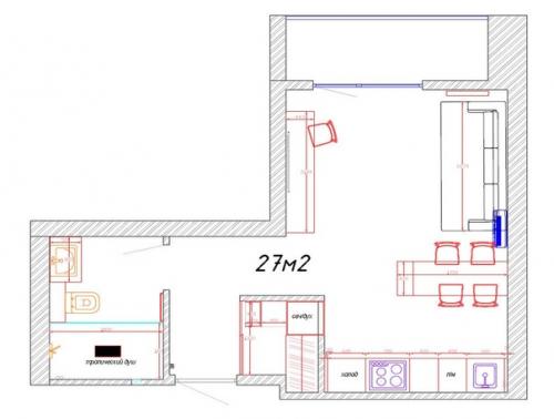
Вариант интерьера для студий площадью 27 кв.
Вариант интерьера для студий площадью 27 кв.
30.07.2021 в 14:49
м. в деловом стиле, без всего лишнего
.
Понравилось? Поделитесь с друзьями!
⇦
Вот, за одни выходные муж сделал нам симпатичный балкончик, вполне бюджетненько и со вкусом.
⇨
Немного подзаморочились, протюнинговали кладовку, чтобы максимально результативно можно было хранить там вещи.