Милый дом

Море полезных идей для квартиры и дома

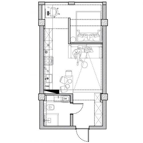
Вариант студии на 31 кв.

25.05.2021 в 14:46

м. для зонирования использовались перегородки из стеклянных блоков
Вариант студии на 31 кв..

Вариант студии на 31 кв. 01
Вариант студии на 31 кв. 02
Вариант студии на 31 кв. 03
Вариант студии на 31 кв. 04
Вариант студии на 31 кв. 05
Вариант студии на 31 кв. 06
Вариант студии на 31 кв. 07
Вариант студии на 31 кв. 08
Вариант студии на 31 кв. 09