Милый дом

Море полезных идей для квартиры и дома

Данный мини домик на просторах наше необъятной страны располагается.

01.07.2021 в 14:52

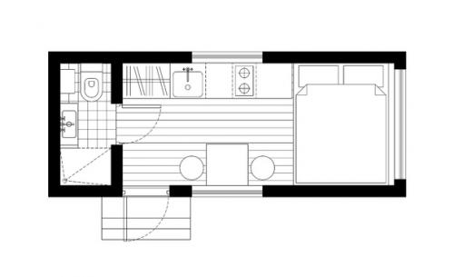
Площадь у него всего 11 кв. м., но при этом владелец смог разместить в нем все необходимое для комфортного проживания. Кухню, кровать, шкафы и туалет с душем
Данный мини домик на просторах наше необъятной страны располагается..

Данный мини домик на просторах наше необъятной страны располагается. 01
Данный мини домик на просторах наше необъятной страны располагается. 02
Данный мини домик на просторах наше необъятной страны располагается. 03
Данный мини домик на просторах наше необъятной страны располагается. 04