Бесплатные проекты домов с планировкой – экономьте на архитекторе
- Бесплатные проекты домов с планировкой – экономьте на архитекторе
- Связанные вопросы и ответы
- Где можно найти бесплатные проекты домов с планировкой
- Как выбрать подходящий проект дома с планировкой для моего участка
- Какие особенности бесплатных проектов домов с планировкой
- Могу ли я адаптировать бесплатный проект дома под свои нужды
- Как проверить, подходит ли проект дома к моему климату
- Какие программы лучше использовать для просмотра проектов домов с планировкой
- Включают ли бесплатные проекты дома внутреннюю планировку
- Какие документы необходимы для строительства по бесплатному проекту
Бесплатные проекты домов с планировкой – экономьте на архитекторе
Этой осенью, мы закончили строительство небольшого аккуратненько дома в 2 этажа ! Здесь я постараюсь принести немного пользы, тем кто захочет построить такой дом!
А именно, расскажу что в проекте интересного и выложу проект (все чертежи с конструктивом) чтобы вы могли использовать их для строительства!
Вот такой домик

84 м2
Два этажа
Построен по каркасной технологии
Отделка сайдингом
У дома просторная терраса
Вот собственно проект для скачивания, в ПДФ: Проект загородного каркасного дома 84 м2 в Иркутске
В Следующем посте обязательно смету выложу
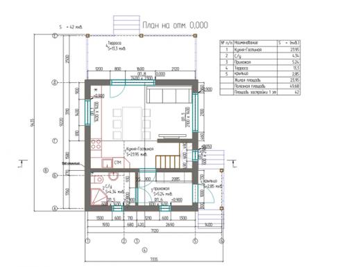
Вот обзор дома:
В доме довольно большое количество комнат. Но надо полагать, что на такую площадь приходятся совсем небольшие комнаты )

На первом этаже компактно расположили крыльцо, террасу. Кухня-гостиная в 24 м2, и здесь вы можете сказать, что у вас "туалет, гардероб, сан узел" больше, как это делают очень часто, но у всех разные возможности. Кто то в 500 квадратах чувствует себя очень не комфортно, кому и апарты в 21 м2 - зато свое!
К тому же на первом этаже обалденные панорамные окна с выходом на террасу )

Также на первом этаже есть холл под лестницу, тамбур и сан узел.

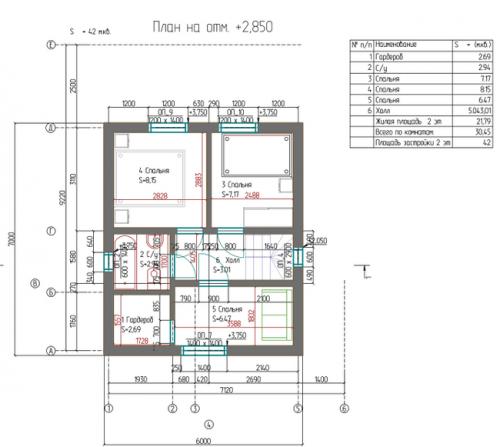
На втором этаже целых 3!! Три спальни! Гардероб и сан узел! И конечно холл под лестницу! Конечно такое количество объектов планировки в 42 м2 не могли пройти незаметно для площади каждого из них.

Но в итоге у дома: 2 холла, тамбур, 2 сан узла, гардеробная, кухня гостиная, 3 спальни ) Очень уютное и экономное жилье для обеспечения всех потребностей семьи ) И конечно если это рассматривать как второе жилье на природе, то претензий быть вообще не должно)

У дома просторная терраса

Строился дом на болотистой местности. У нас в Иркутске огромные территории Сибири простилаются на сотни км от одного города до другого) Но в самом городе течет несколько рек. Самая большая - Ангара, поменьше - Иркут, вот в его пойме и строился этот домик)
За счет того, что это черта города, место весьма популярно, хоть и на болоте. Называется Селиваниха, если кто то из Иркутска. От того и строился дом на сваях.

Это внешний вид фасада "с другой стороны". И здесь стоит наверное проговорить про отделку фасада. Обычный, но не самый дешевый садинг… Точнее надежный и хороший сайдинг, без большого количества вставок, углов, переходов обойдется вам не так дорого как кажется. Остается вопрос как сделать его более или менее привлекательным?
Самый лучший способ - сделать контраст на элементах: откосы, углы, сафиты - будут симпатичнее смотреться если вы сделаете на светлом сайдинге эти элементы темнее )

Домик строился с комплектом сантехники, электрики, чистыми полами. Теплым полом. Отделка финиша - это процесс отдельной истории, да и сейчас еще не выполнен. Но стены подготовлены под поклейку обоев.

Собственно после окончания работы строителей, поклеить обои - это совсем не сложная операция. И самое главное - не ответственная, от неё не упадут стены если накосячишь. По этому если остальные работы выполняли строители, то обои уже будут клеить хозяева.

Связанные вопросы и ответы:
Вопрос 1: Где можно найти бесплатные проекты домов с планировкой
Бесплатные проекты домов с планировкой можно найти в интернете, на специализированных сайтах, таких как архитектурные порталы, форумы и группы в социальных сетях. Многие сайты предлагают готовые проекты домов разных типов, включая планировки. Также можно обратиться к бесплатным онлайн-сервисам по проектированию домов, которые предоставляют шаблоны и инструменты для создания собственных проектов. Некоторые архитекторы и дизайнеры делятся своими работами бесплатно, чтобы привлечь клиентов. Перед использованием проекта важно убедиться, что он соответствует вашим потребностям и местным строительным нормам.
Вопрос 2: Какие плюсы и минусы использования бесплатных проектов домов с планировкой
Плюсы использования бесплатных проектов домов с планировкой включают экономию средств, возможностьного старта строительства и доступ к готовым решениям. Однако есть и минусы: такие проекты могут не учитывать индивидуальные пожелания, климатические условия или особенности участка. Также бесплатные проекты могут быть менее детализированы, что может привести к дополнительным расходам на корректировку. Кроме того, качество проектов может варьироваться, и не все из них соответствуют современным стандартам строительства. Поэтому важно тщательно проверять проект перед его реализацией.
Вопрос 3: Какие типы домов чаще всего представлены в бесплатных проектах с планировкой
В бесплатных проектах с планировкой чаще всего представлены небольшие дома, такие как однокомнатные, двухкомнатные или трехкомнатные коттеджи. Также популярны проекты дачных домиков, садовых домов и небольших загородных построек. Есть проекты и для более крупных домов, но они обычно менее детализированы. Кроме того, можно найти проекты домов из различных материалов, таких как деревянные, кирпичные или каркасные дома. Однако выбор проектов может быть ограничен, и не всегда можно найти проект, который идеально подходит под ваши потребности.
Вопрос 4: Нужно ли корректировать бесплатные проекты домов с планировкой перед строительством
Да, в большинстве случаев бесплатные проекты домов с планировкой требуют корректировки перед строительством. Это связано с тем, что проекты могут не учитывать специфические условия вашего участка, такие как рельеф, климат или местные строительные нормы. Также возможно, что проект не соответствует вашим личным предпочтениям или потребностям. Корректировка может включать изменение планировки, добавление или удаление комнат, а также адаптацию проекта к используемым материалам. Для этого рекомендуется обратиться к профессиональному архитектору или инженеру, который поможет внести необходимые изменения.
Вопрос 5: Как выбрать подходящий бесплатный проект дома с планировкой
Чтобы выбрать подходящий бесплатный проект дома с планировкой, необходимо учитывать несколько факторов. Во-первых, определите свои потребности: сколько комнат вам нужно, какой площадью должен быть дом, какие материалы вы хотите использовать. Во-вторых, обратите внимание на климатический регион, в котором вы живете, и убедитесь, что проект соответствует местным строительным нормам. В-третьих, проверьте качество проекта: он должен быть детализирован и содержать все необходимые разделы, такие как планы этажей, фасады и разрезы. Также важно убедиться, что проект соответствует вашему бюджету и возможностям строительства.
Вопрос 6: Можно ли использовать бесплатные проекты домов с планировкой для строительства большого дома
Да, можно использовать бесплатные проекты домов с планировкой для строительства большого дома, но с определенными ограничениями. Бесплатные проекты обычно предназначены для небольших и средних домов, и они могут не учитывать все нюансы, связанные с строительством большого дома. Например, такие проекты могут не предусматривать необходимую инфраструктуру, такие как система отопления, вентиляция и водоснабжение, для крупных построек. Также бесплатные проекты могут быть менее детализированы, что может привести к дополнительным расходам на проектирование и корректировку. Поэтому для строительства большого дома рекомендуется обратиться к профессиональным архитекторам, которые создадут индивидуальный проект, учитывающий все ваши потребности и пожелания.
Где можно найти бесплатные проекты домов с планировкой
Если у вас уже есть свой собственный земельный участок, оптимальным вариантом будет разработка индивидуального проекта коттеджа . Адаптировать уже готовый типовой проект к земельному участку всегда сложно. Бывают такие случаи, когда это и вовсе нереально. Например, в том случае, если участок слишком маленький, а заказчик хочет поместить на нем огромный дом. В принципе, это можно сделать, но тогда вокруг коттеджа практически не останется дворовой территории, негде будет построить гараж или другие необходимые нежилые пристройки. Бывают случаи, когда из-за соседних домов «вписать» в существующий земельный участок проект выбранного коттеджа просто нереально.
Именно поэтому наилучшим вариантом будет разработка индивидуального проекта с учетом абсолютно всех особенностей участка. Очень важен не только его размер, но еще и грунт. Бывают случаи, когда невозможно адаптировать типовой проект из-за особенностей грунта и глубины залегания вод по той причине, что он создавался по усредненным показателям, а реальные условия на местности кардинально отличаются от усредненных. Индивидуальное проектирование избавит от этих проблем, ведь все расчеты архитекторы будут делать относительно конкретных условий на земельном участке заказчика. В итоге дом будет идеально «вписываться» в окружающие его соседние постройки и ландшафт.
В среднем просчет площади дома относительно размера участка осуществляется по правилу 1:15. Что значит, что площадь дома должна быть, как минимум, в 15 раз меньше площади участка. Именно в этом случае хватит места и для дополнительных построек, например, летней кухни, гаража, сараев. Также будет возможность сделать ландшафтный дизайн , поставить скамейки, беседки, организовать зону отдыха, детскую площадку для игр при необходимости. При желании можно будет оставить место для огорода, если вам нравится выращивать всевозможные овощи.
Вот несколько примеров, которые наглядно вам покажут оптимальное соотношение площади участка и размеров коттеджа:
- Если площадь земельного участка около 6 соток, лучше всего на нем строить дом площадью не более 120 квадратных метров. Если в нем будет жить большая семья, его можно сделать двух- или даже трехэтажным, чтобы увеличить количество комнат.
- Если ваш участок размером 10-12 соток, то на нем можно строить коттедж площадью до 200 метров квадратных. Точно так же при желании его можно делать двухэтажным. Такой дом уже можно сделать на две семьи с двумя отдельными входами.
- Если вы хотите построить роскошный большой коттедж площадью 350-400 квадратных метров, для этого понадобится участок хотя бы от 15 соток, в идеале около 20 соток. Только на такой территории большой дом будет смотреться действительно солидно, а также останется место для двора и всех других необходимых построек. Согласитесь, что выглядит довольно странно, когда огромный дом пытаются «втиснуть» в миниатюрный участок.
Если вы желаете построить загородный дом, в котором не будете жить в холодное время года, то не стоит делать его огромным. В том случае, когда коттедж будет использоваться в качестве дачи в летнее время, а большую часть года в нем никто не будет жить, рекомендуемые размеры такого домика до 100 квадратных метров. За ним будет проще ухаживать и наводить там порядок, зато намного больше места останется под огород. Даже если вы не очень любите возиться с грядками, лучше посадить много фруктовых деревьев на территории, чем строить огромный дом, за которым будет довольно сложно ухаживать.
Как выбрать подходящий проект дома с планировкой для моего участка
Одним из преимуществ строительства нового дома является то, что вы можете начать с нуля с плана этажа. Новый план дома — это ваша возможность создать то, что идеально подходит для вашей семьи и образа жизни. Мы собрали для вас современные проекты одноэтажных домов бесплатно с чертежами и фотографиями.
Топ 10 проектов одноэтажных домов
1. Проект небольшого современного дома 60 м² для небольшой семьи.
Этот небольшой современный дом идеально подходит для небольшой семьи. Он имеет две спальни стандартного размера и общий туалет и ванну.
Небольшой современный дом общей площадью 60 м² может быть построен на участке площадью 164 кв.м. с шириной 11,5 метра и глубиной 14,3 метра.
Несмотря на то, что это небольшой дом, в его дизайне используются простые, но современные элементы. Он окрашен в оттенки оранжевого и белого, что придает ему более свежий и современный вид. В этом небольшом современном доме с акцентными стенами из кирпича.
Крыша, покрытая длинным пролетом из оцинкованного железа, отделана под черепицу.
В этой конструкции дома две спальни. Напротив гостиной находится большая спальня, которая может быть преобразована в главную спальню. Другая спальня меньшего размера расположена напротив обеденной зоны. Во всех спальнях есть встроенные шкафы.
2. Проект практичного одноэтажного дома в классическом стиле с террасой площадью 142 м²
Подробнее об этом проекте здесь .
3. Проект одноэтажного дома из кирпича площадью 100 м²
4. Проект одноэтажного дома с тремя спальнями площадью 121,5 м²

5. Проект одноэтажного дома с тремя спальнями и гаражом
6. Проект одноэтажного дома с четырьмя спальнями
7. Проект одноэтажного дома площадью 136 м²
8. Проект одноэтажного оригинального дома площадью 183 м²
9. Проект одноэтажного дома площадью 142 м²
10. Проект одноэтажного дачного дома с верандой
Проекты одноэтажных домов с гаражом: чертежи и фото
Обеспечить свой машине защиту — это обязанность каждого ответственного автолюбителя. Часто получается так, что хозяева начинают строить дом, и лишь после этого осознают, что место для машины не предусмотрено. Ставить её за воротами небезопасно и непрактично. Гараж может быть как отапливаемым, так и неотапливаемым, но он убережет автомобиль от перепадов температуры, града, веток и преступников.

Проекты одноэтажных домов с тремя спальнями: чертежи и фото
Для семей с двумя детьми идеально подойдут проекты, в которых предусмотрены три отдельные спальни. Таким образом все будут иметь своё пространство, а между детьми не будет возникать конфликтов. В отдельной комнате каждый сможет заниматься любимым делом. А у родителей не будет проблем с оформлением детских.
Также проект с тремя спальнями подойдет для тех людей, у которых часто остаются гости на ночь. Вы сможете с комфортом разместить всех задержавшихся допоздна, а утром угостить их завтраком.

Проекты одноэтажных домов с мансардой: чертежи и фото
Не хотите тратить деньги на второй этаж? Мансарда — это отличный выход из положения. Она поможет . К тому же придаст дому стильный вид, а внутреннему убранству — особую атмосферу. На верхнем уровне обычно располагают спальни. Стоит заметить, что мансарда увеличит стоимость проекта и потребует установки лестницы.
Какие особенности бесплатных проектов домов с планировкой
С готовым дизайном вы должны пойти в архитектурный офис. Адаптация проекта дома может быть выполнена архитектором с соответствующей квалификацией с сертификатом принадлежности к Палате архитекторов. В идеале, если это местный специалист. В такой ситуации консультации будут более удобными для инвестора. Кроме того, местный архитектор должен быть лучше ориентирован в местных условиях, связанных с расположением участка. Однако выбор местного архитектора не является обязательным условием для вас. Адаптация также может быть выполнена архитектором, который находится на другом конце региона, при условии, что он получит все необходимые документы.
Что должно быть представлено архитектору в дополнение к готовому проекту дома?
Он должен получить копию и план из местного плана (или решения по строительным условиям), текущую карту для целей проектирования, выдержку и участок из земельного кадастра, геологические изыскания, а также подтверждение доступа к дороге общего пользования и условия подключения к газовым, энергетическим и водопроводным сетям и канализации. Если в проект дома должны быть внесены изменения, согласие автора на их включение должно быть документально приложено к документам.
Основная адаптация заключается в правильном создании проекта с учётом местных условий, построение дома на конкретном участке и планирование его окружения.
Ответственность и задачи адаптивного архитектора
Как уже было сказано, адаптация является обязательной процедурой для всех готовых проектов. Поэтому архитектор должен всегда выполнять определенные задачи, независимо от того, какой проект ему был предоставлен, и в каком месте находится участок. Архитектор в первую очередь должен проверить соответствие проекта дома, всем положениям, содержащимся в местном плане (или в решении о строительных условиях).
Если окажется, что проект в одной из точек не соответствует требованиям, установленным местным законодательством, архитектор должен соответствующим образом адаптировать его. Задачи адаптационного архитектора также включают в себя проверку строительства здания с точки зрения его адаптации к местным климатическим условиям и нормативным нагрузкам. Он также должен проверять основы и, при необходимости, адаптировать их к местным условиям почвы и воды. Внутренние установки и соединения также должны быть сделаны с учётом всех особенностей местных условий. Выполняя эти задачи, архитектор сотрудничает со специалистами из отдельных отраслей промышленности (проектировщик, проектировщик сантехнической и электротехнической промышленности).
Могу ли я адаптировать бесплатный проект дома под свои нужды

При проектировке будущего дома особое внимание уделяется его планировке – это размещение комнат в здании, определение из размеров. При определении планировки важно учитывать климатическую зону – дом необходимо правильно расположить на участке с учетом сторон света чтобы обеспечить комфортную естественную освещенность и уменьшить затраты на обогрев.
Особенности планировки домов для холодного климата
При строительстве в холодном климате повышенное внимание уделяется энергоэффективности будущей постройки. Дом должен быть теплым и комфортным, а для этого важно соблюдение целого ряда условий:
- Обязательное наличие переходной буферной зоны между улицей и жилыми помещениями. Эту роль может играть небольшой тамбур , веранда или просто остеклённое крыльцо. Переходное помещение позволяет не пускать в дом уличный холод, в результате будет меньше затрат на отопление.
- Большие комнаты, которые будет проще обогреть, чем множество мелких помещений. Например, можно соединить гостиную, столовую и кухню, совмещаются санузлы и ванные комнаты. Такой принцип планировки издавна используется в скандинавских и финских интерьерах, при проектировке которых учитывалось максимальное сохранение тепла.
- Форма здания – квадратная или прямоугольная . Нежелательно строить дома с выступами и изгибами, так как все дополнительные архитектурные детали приведут к увеличению теплопотерь.
- Большие окна на южной стороне здания. Обычно именно с этой стороны располагаются общие помещения, которым требуется хорошая естественная освещенность. Солнечный обогрев снижает затраты топлива, поднимает настроение жильцов, создает ощущение комфорта. Чтобы дом не терял тепло через панорамное стекло, для остекления используются современные многокамерные стеклопакеты.
Деревянный дом для постоянного проживания должен строиться со строгим соблюдением требований противопожарной безопасности. Отопительной системе и электроснабжению придется работать в условиях постоянных высоких нагрузок, это требует повышенного внимания к соблюдению защитных нормативов.
Особенности строительства в южных регионах РФ
В южных регионах при планировке дома стоит противоположная задача – понизить температуру и влажность воздуха в комнатах, а также уменьшить затраты на работу систем кондиционирования и вентиляции. Правильное расположение комнат может в этом существенно помочь.
У домов в южных широтах есть несколько важных планировочных особенностей:
- Обязательная естественная вентиляция. Комнаты должны продуваться насквозь, чтобы нагретый воздух и избыточная влага не застаивались в помещениях. Это позволит избежать появления чувства духоты и образования плесени на стенах. При этом естественное проветривание за счет аэродинамики не потребует дополнительных затрат энергии.
- Открытые зоны для перехода между домом и улице. Это балконы, веранды, террасы, на которых можно с комфортом проводить время даже в сильную жару.
- « Второй свет ». Это интересное архитектурное решение, при котором убирается часть перекрытия между первым и вторым этажом. Такое решение частично сокращает полезную площадь, однако общие помещения со вторым светом получают высокие потолки, наполняются светом и воздухом. Такая планировка чаще всего сочетается с панорамным остеклением.
Продуманная планировка позволит сделать дом комфортным для жизни в любой климатической зоне. Здание в любом случае потребует постоянного ухода и заботы со стороны владельца. Его нужно будет защищать от вредителей, гниения, обрабатывать специальными составами для предотвращения возможного возгорания.
Как проверить, подходит ли проект дома к моему климату
Поиск плана частного дома — задача , с которой сталкивается каждый владелец недвижимости. Будь то перепланировка , ремонт или просто желание разобраться в устройстве своего жилища — план дома необходим ! Но где же его найти ? В этой статье мы разберемся с тонкостями получения плана и ответим на все ваши вопросы.
Для доступа к конкретному разделу перейдите по ссылке ниже:
Где найти план частного дома: путеводитель по документам
Владельцы частных домов часто сталкиваются с необходимостью получить план своего жилища. Это может быть нужно для оформления документов, проведения ремонта или даже просто для того, чтобы лучше понять планировку своего дома.
К счастью, получить план дома не так сложно, как кажется. Существует несколько проверенных способов:
1. Обращение в МФЦ: Многофункциональный центр – это удобное место, где можно получить множество государственных услуг, в том числе и план дома.
2. Заказ через портал госуслуг: Региональный портал государственных услуг позволяет заказать план дома онлайн, что значительно упрощает процесс.
3. Обращение в БТИ: Бюро технической инвентаризации – это специализированная организация, которая занимается составлением планов домов.
Важно помнить, что для получения плана дома вам потребуется предоставить документы, подтверждающие ваше право собственности.
Какой бы способ вы ни выбрали, помните, что получение плана дома – это важный шаг для официального оформления вашего имущества.
Какие программы лучше использовать для просмотра проектов домов с планировкой
Для того чтобы получить субсидию на строительство частного дома, необходимо подать заявление на портале «Госуслуги» или МФЦ. Необходимо подготовить пакет документов:
— документы, удостоверяющие личность всех членов семьи (паспорт и свидетельство о рождении);
— удостоверения и другие документы, подтверждающие льготный статус;
— справка с места работы, подтверждающая доход;
— документы об условиях проживания (выписка из реестра недвижимости, БТИ и земельных комитетов);
— документ, подтверждающий предоставление кредита или займа от банка или физического лица. Там должна быть указана точная сумма.
Отметим, что в зависимости от семейного положения и жизненных обстоятельств перечень документов может меняться. В каких-то случаях, например, может потребоваться свидетельство об усыновлении ребенка или трудовая книжка. С собой нужно взять как оригиналы всех этих документов, так и их копии. На месте специалист также предложит оформить соответствующее заявление.
В каждом отдельном регионе сроки рассмотрения могут отличаться, но, как правило, они варьируются от 10 до 30 дней. Решение будет отправлено на электронную почту.
В случае если ответ будет положительным, в течение 10 дней со дня принятия решения заявитель получит свидетельство о выдаче субсидии. За это время на его имя также будет открыт специальный счет, на который и будут переведены деньги. Использовать средства можно только в безналичной форме и на строго установленные цели в течение полугода.
Включают ли бесплатные проекты дома внутреннюю планировку
По нормативным актам градостроения для возведения и реконструкции частного жилья не выше трех этажей с площадью до 1500 кв. м., используемого для проживания одной семьи, проект не требуется. Разрешение же и на строительство, и на реконструкцию дома можно получить с эскизом, сделанным от руки. Да, это будет существенная экономия на дополнительных затратах: геодезические исследования участка, топографическая съемка, проект.
В дальнейшем строительство без проектной документации. может обернуться большим списком неприятностей:
- Быстрое разрушение строения. Причин множество: от неграмотного размещения здания из-за отсутствия геодезического и топографического исследования до неправильно подобранных материалов. Дорогая эксплуатация. Не заложена технология энергосбережения на этапах строительства и отделки;
- Проблемы с подрядной организацией. Хороший застройщик не возьмется возводить дом по картинке из интернета или нарисованному от руки плану. Поэтому за качество проводимых работ никто гарантии не даст. А в случае быстрого разрушения строения не с кого будет спросить. Нет утвержденной проектной документации – нет доказательств нарушения технологии строительства.
- Увеличение финансовых и временных затрат. Проектная документация позволяет существенно экономить на этих ресурсах, дает возможность контролировать подрядчика.
- Инженерные сети. Подвод воды, системы канализации, электроснабжение дома. Эта сфера имеет ряд тонкостей, с которыми простой обыватель обязательно столкнется. А для корректировки в момент строительства потребуются дополнительные временные и финансовые затраты.
Быстрое разрушение строения. Причин множество: от неграмотного размещения здания из-за отсутствия геодезического и топографического исследования до неправильно подобранных материалов.Какие документы необходимы для строительства по бесплатному проекту
При строительстве дома одна из больших статей расходов — это покупка земельного участка, особенно если речь идет о столичных или курортных регионах. Но есть способы, как сэкономить на этом этапе.
Во-первых,. На федеральном уровне претендовать на это могут граждане, имеющие государственные награды. Они имеют право на бесплатные земельные участки от 8 соток в городских поселениях и от 25 соток — в сельских. В регионах свои правила предоставления бесплатных земельных участков льготникам. «В большинстве случаев претендовать на это могут многодетные семьи, ветераны войн и участники боевых действий, ликвидаторы аварии в Чернобыле. По местным законам, это также могут быть молодые специалисты, работающие в сельской местности», — отметила председатель совета директоров сети «Миэль» Марина Толстик.
Во-вторых, получить землю бесплатно для строительства дома и ведения сельского хозяйства можно по региональной программе развития территорий. Одна из самых известных —, действующая с 2016 года. Узнать о подобной программе и ее требованиях можно на сайте регионального правительства или в МФЦ. В-третьих, можно попробовать оформить на себя почти бесплатно бесхозный участок. Как это сделать, читайте в
Кроме того, участок под строительство дома можно не только купить, но и взять в аренду у государства для целей строительства дома. Это поможет сэкономить от нескольких сотен тысяч до нескольких миллионов рублей, отмечает основатель юридического центра «10 Соток», автор подкаста об оформлении земельных участков «Пуп земли» Юлия Толстихина. Например, вместо покупки участка за полную рыночную стоимость можно оформить участок в аренду от государства и построить на нем дом. «После оформления собственности и на основании ст. 39.20 Земельного кодекса участок выкупается в собственность за цену от 3% до 15% кадастровой стоимости в зависимости от региона. Сама цена аренды обычно годовая и в десятки раз ниже рыночной стоимости самого участка», — рассказала юрист. Найти такой участок можно на торгах или купить по переуступке прав аренды, добавила она.
Кроме того, можно сформировать земельный участок самостоятельно — это самый сложный, но самый дешевый способ, продолжила Юлия Толстихина. «Нужно найти свободный участок, который никому не принадлежит и не стоит на кадастровом учете. Далее нужно подготовить схему расположения земельного участка и обратиться с ней с заявлением о предварительном согласовании предоставления участка в аренду в местную администрацию», — пояснила эксперт. После чего ждать решения.
Примеры расчетов от эксперта Юлии Толстихиной
Цена участка 1 млн руб. Арендовать его можно за 30–150 тыс. руб. в год. Если построить дом (например, каркасный) за два-три месяца, оплатить нужно будет только месяцы нахождения участка в аренде.
После строительства дома участок можно выкупить за 5% от кадастровой стоимости (процент выкупа в каждом регионе свой). То есть для участка с кадастровой стоимостью 1 млн руб. стоимость выкупа участка за 5% составит 50 тыс. руб. Таким образом, затраты на приобретение участка составят от 60 тыс. до 200 тыс. руб. вместо рыночной стоимости 1 млн руб., а экономия — около 800 тыс. руб.