Можно ли увеличить комнату за счет ванной. Расширение ванны за счет коридора
- Можно ли увеличить комнату за счет ванной. Расширение ванны за счет коридора
- Кухня вместо ванной. Увеличение кухни за счет ванной или санузла
- В данной статье разоберем аспект увеличения кухни за счет ванной.
- Законно ли увеличить кухню за счет ванной?
- При каких условиях можно получить разрешение на увеличение кухни за счет ванной?
- Пример проекта перепланировки в котором была расширена кухня за счет ванной.
- Коротко о документах и порядке согласования расширения кухни на ванную?
- Можно ли уменьшить площадь кухни. Расширение кухни за счет жилой комнаты
- Уменьшение ванной комнаты. Уменьшение санузла
- Увеличение площади квартиры за счет общего коридора. В коммунальной квартире соседи увеличили площадь своей комнаты за счет общего коридора.
- Видео расширение кухни за счет санузла и коридора
Можно ли увеличить комнату за счет ванной. Расширение ванны за счет коридора
Обычно ванну можно увеличить за счет объединения её с коридором, полностью или частично зависит от конкретной планировки. Вариант полного объединения возможен лишь в том случае, если коридор не является проходным.

Объединение типового санузла и его расширение за счет коридора
Чаще всего ванну можно расширить ненамного и для этого достаточно просто передвинуть одну стену. Иногда даже двадцать сантиметров могут существенно увеличить функциональность ванной комнаты, но необходимо помнить, что расширение ванны возможно лишь за счёт нежилых помещений, иначе возникнут серьёзны проблемы с согласованием перепланировки вашего санузла.
Объединение санузла и его расширение за счет коридора.

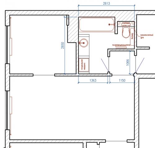
План до перепланировки

План после перепланировки
Перепланировка и объединение санузла за счет коридора в типовом панельном доме. Перенесен проход в кухню, центральная комната стала проходная.

План санузла до перепланировки и расширения

Любую перепланировку санузла необходимо официально согласовывать в надзорных органах! Помимо этого необходимо сделать качественную гидроизоляцую, причем силами квалифицированных рабочих, имеющих лицензию. А если вы планируете расширить туалет, а соответственно и «мокрую зону», то, как правило, необходимо получить еще и согласие жильцов снизу.
Сегодня многие стремятся размыть границы квартиры. Многие производят объединение комнат, за счет чего происходит расширение помещения. Важно получить для этого соответствующее разрешение, иначе все действия будут незаконными. Коридор – пространство, которое может иметь различную площадь. В соответствии с размерами его можно расширить или за счет него расширить другую комнату. Расширение коридора – ответственное дело, требующего предварительного планирования.
Кухня вместо ванной. Увеличение кухни за счет ванной или санузла
У каждого владельца квартиры свое представление о комфорте проживания.
Кто-то хочет получить после проведения перепланировки большую кухню, кто-то увеличить ванную, а кто-то и вовсе - вместо кухни и близ расположенной комнаты образовать одну большую кухню-гостиную.
В данной статье разоберем аспект увеличения кухни за счет ванной.


Законно ли увеличить кухню за счет ванной?
Прежде всего стоит обратиться к действующим нормативным документам. СП 54.13330.2016 Здания жилые многоквартирные. Актуализированная редакция СНиП 31-01-2003 пункт 9.25 сказано:
"Не допускается размещение уборной и ванной (или душевой) непосредственно над жилыми комнатами и кухнями. Размещение уборной и ванной (или душевой) в верхнем уровне над кухней допускается в квартирах, расположенных в двух уровнях".
Это означает, что проведение перепланировки, при которой наш санузел или ванная комната оказываются над жилыми помещениями или кухней соседей снизу не разрешена. Исключение составляют лишь первые этажи и этажи выше, но при условии, что ниже находятся нежилые помещения . (так как соответствнно ниже кухонь нет).
Однако, в рассматриваемом нами вопросе, ситуация «зеркальная» - мы планируем увеличить нашу кухню за счет ванной.
Казалось бы ответ однозначен: если нельзя провести увеличение ванной за счет кухни , то и кухню увеличить за счет ванной либо санузла также нельзя. Но не все так однозначно. Если в первой приведенной ситуации в нормативных документах есть прямой запрет, то на увеличение кухни за счет ванной либо санузла прямого запрета нет.
Так получается что можно? Такая трактовка тоже неверна.
Бывают отказы в увеличении кухни за счет ванной, опираясь на Постановление Правительства № 508-ПП, в котором есть форумулировка:
"Не допускается переустройство помещений, при котором ухудшаются условия эксплуатации дома и проживания граждан». Причем в бланках отказов жилищной инспекции такая формулировка и указывается.
Идя путем логики, можно понять, что ухудшаем в такой ситуации условия мы сами себе. То есть вследствии того, что после перепланировки, над нашей кухней будет расположена ванная соседей сверху мы ухудшаем себе жилищные условия, так как расположение ванн над кухнями запрещtно.
При каких условиях можно получить разрешение на увеличение кухни за счет ванной?
В основном только один вариант расширения кухни за счет ванной возможен - в случае если квартира находится на последнем этаже . Здесь мы не ухудшаем жилищные условия себе, так как не "залезаем" под чужой санузел либо ванную. И кроме того, в нормативных документах нет ни слова о каком либо запрете расширения кухни на ванную либо санузел соседа снизу. Поэтому данная перепланировка согласуема.
Либо есть еще один вариант, но он больше из теории а не из практики - у собственника вышерасположенной квартиры уже согласовано расширение кухни за счет ванной. И теперь вы сможете также расширить кухню, так как над вашей кухней ванны уже нет. Но мы говорили в самом начале, это больше теоритеческое предположение, так как в нашей практике подобного совпадения не было.
Заметим, что существуют и другие способы увеличить кухню при перепланировке. На нашем сайте есть специальная статья , посвященная этой теме, а в разделе " Завершенные объекты " вы можете ознакомиться с некоторыми интересными проектами, один из которых может подойти и вам.


Пример проекта перепланировки в котором была расширена кухня за счет ванной.


Коротко о документах и порядке согласования расширения кухни на ванную?
Так как расширение кухни на ванную комнату предполагает изменение конструкции полов и перенос перегородок, то потребуется разработка проекта перепланировки с предварительным инженерным обследованием квартиры и выпуском технического заключения о допустимости планируемых работ. Будем признательны, если проектную документацию вы закажите в нашей компании. Мы имеем все необходимые допуски СРО .
Если Вы решите выбрать нашу компанию, то мы гарантируем согласование разработанных нами технического заключения и проекта перепланировки, мы проведем авторский надзор над строительными работами, заполним акты на скрытые работы и если необходимо дадим полную бесплатную консультацию , если вы решите согласовать перепланировку самостоятельно .
Звоните, ждем Вас.
Можно ли уменьшить площадь кухни. Расширение кухни за счет жилой комнаты
Что является основной проблематикой данной статьи? Очень популярный вопрос расширения кухни за счет другого помещения. А в нашем случае расширение кухни за счет жилой комнаты .
Данная тема часто всплывает при рассмотрении минусов квартиры, расположенной в панельном или кирпичном доме, что является особенностью некоторых серий таких домов.
Есть много мероприятий по увеличению кухонной зоны, при проведении которых собственники порой нарушают действующие нормы:
- за счет демонтажа вентиляционных коробов (обязательной части любой кухни. Кстати, не согласуемое мероприятие);
- устройство кухни-ниши (популярный вариант, когда кухню переносят в коридор, сносят ненесущую перегородку прилегающей жилой комнаты, тем самым образовывая гостиную и столовую);
- присоединение балкона (мероприятие, возможное лишь при установке между кухней и балконом специальной перегородки).
Недопустимые случаи расширения кухни за счет жилой комнаты
На самом деле перепланировка квартиры с увеличением кухни — вопрос деликатный. Жилищное законодательство ограничивает собственников в возможностях.
Согласно государственным нормативам расширение кухни за счет жилой зоны ЗАПРЕЩЕНО в случаях:
- когда в кухне установлена газовая плита. Объясняется это тем, что расширение кухни над или под жилыми помещениями — запрещено;
- наличие в кухне электрической плиты. В этом случае запрет действует по той причине, что размещение кухни над жилыми помещениями - в принципе мероприятие не согласуемое, но при определённых условиях бывают исключения.
Возможные случаи расширения кухни за счет жилой комнаты
Однако варианты, при которых владельцы квартир могут совершить вышеуказанную перепланировку, существуют.
В случае, если у вас электрическая плита и если:
- вы являетесь жильцом квартиры, расположенной на первом этаже, соответственно под вами нежилые помещения (вроде подвальных );
- ваша квартира расположена на втором этаже над нежилыми помещениями, то есть помещениями офиса, либо магазина, либо какой-либо другой организации (в данном случае вам необходимо будет предоставить план БТИ ваших «соседей» снизу, либо справку от главы организации.
Остальные случаи расширения кухни за счет жилой комнаты
Должны вас предупредить, что в домах с планировкой, где кухня и комната являются смежными, при этом их разделяет несущая стена — демонтаж части несущей стены — ЗАПРЕЩЕН, так как это грозит возникновением аварийной ситуации.
Несущая стена между кухней и жилой комнатой:
на примере дома серии П-3 на примере дома серии II-49Д


В крайнем случае можно провести резку дверного проема в несущей стене , данная процедура является допустимой.
Уменьшение ванной комнаты. Уменьшение санузла
Добрый день, в малогабаритной квартире застройщик спроектировал огромный санузел.
1. Под какие решения можно согласовать уменьшение санузла? (знаю, что под кухню точно нельзя - а если под кабинет? Или шкаф?).
2. Кухня примыкает к санузлу, можно ли согласовать уменьшение санузла в пользу барной стойки? Или кухонных шкафов без техники (для хранения)?
3. Можно ли перенести кухню в гардеробную 2,9 м2 (на схеме слева от входа), объединив ее с коридором 2,5 м2, (что в сумме даст пространство 5,4 м2)?
Заранее благодарю за ответ!
Ответ на вопрос
Добрый день Жанна.
Увеличение площади квартиры за счет общего коридора. В коммунальной квартире соседи увеличили площадь своей комнаты за счет общего коридора.
Что можно сделать в этой ситуации и куда обращаться?
Здравствуйте, Валентина.
Многоквартирный жилой дом – сложная система, благополучие которой зависит от того, насколько все жильцы соблюдают нормы и правила, в том числе строительные. Порой собственники квартир даже не задумываются, что перенесенная в другую часть квартиры ванная или пробитая несущая стена не только нарушают интересы соседей, но могут угрожать их жизни. Пожаловаться на незаконную перепланировку можно в несколько инстанций.
1) Любая перепланировка должна быть согласована с местной администрацией и целым рядом других инстанций. У того, кто радикально переустраивает свое жилье, должен быть и проект. Сложность заключается в том, что собственник жилья имеет полное право не пускать соседей в свою квартиру, даже если у тех есть веские доказательства, что их права нарушены. Поэтому действовать нужно через официальные инстанции.
2)Для начала обратитесь с жалобой в орган местного самоуправления . Напишите, какие у вас основания полагать, что сосед сделал незаконную перепланировку своей квартиры. Если нарушитель живет в муниципальной квартире, этим дело может и ограничиться, поскольку собственником является муниципалитет, который и несет ответственность за действия нанимателей. Местная администрация уже без вашего участия обратится в надзорные и судебные органы.
3)Обратиться в муниципалитет имеет смысл и в том случае, если нарушитель живет в приватизированной квартире. Вы можете получить информацию, узаконена или нет перепланировка, поскольку проект согласовывается именно в органах местного самоуправления. Обращаться нужно в приемную или общий отдел. Ответ вам дадут через месяц, но письмо должны зарегистрировать в момент его подачи.
4)Добиться справедливости можно и через Государственную жилищную инспекцию. Обращение можно направить в любой форме, предусмотренной российским законодательством. Инспекция проведет проверку с учетом всех требований закона. Она может применить к нарушителю меры административного воздействия, обязать его узаконить перепланировку, а если она представляет опасность для других жильцов, то и вернуть квартиру к прежнему состоянию. В некоторых случаях можно обратиться и в Архитектурный надзор – например, если собственник перестроил балкон здания, являющегося архитектурным памятником.
5)По поводу незаконной перепланировки можно обратиться и в прокуратуру. Прокурор инициирует проверку, добьется возможности обследовать квартиру нарушителя через суд и выдаст предписание устранить нарушения. Судебную процедуру может инициировать и прокуратура, и другие надзорные органы, и администрация. Если суд вынесет решение вернуть квартиру в прежнее состоянии, а собственник его не исполнит, может быть возбуждено исполнительное производство.