План 3х комнатной квартиры. С чего начать
- План 3х комнатной квартиры. С чего начать
- Удачные планировки 3 комнатных квартир. Дизайн 3-х комнатной квартиры в панельном доме
- Планировка 3 комнатной квартиры улучшенной планировки. Планировка 3 комнатной квартиры 60 кв. м
- Удачные планировки трехкомнатных квартир. Стандартная планировка «трешки»
- Планировка 3 комнатной квартиры 97 серии. Этажность и планировки квартир [1]
- Планировка 3-х комнатной квартиры в 5 этажном панельном доме. Можно ли улучшить брежневку
- Видео перепланировка 3-х комнатной квартиры. 9 вариантов!
План 3х комнатной квартиры. С чего начать
Разумеется, прежде чем начинать чертить чертежи самостоятельно или прибегать к помощи специалистов, стоит определиться с тем, что же вы хотите получить в результате.
Расширить кухню? Изменить внешний вид коридора? Получить дополнительную спальню, которую можно было бы выделить подрастающему ребёнку или пожилым родителям, решившим переехать к вам? Тщательно продумайте, а нужно ли вам вообще начинать ремонт в своей квартире? Ведь начав, бросить дело на полпути уже не получится. И работа может растянуться на многие недели и даже месяцы; это будет действительно тяжелое испытание и для ваших нервов, и для семейного бюджета.

Когда решение окончательно принято, можно начинать составлять план. Конечно, если вы можете себе это позволить, то лучше доверить работу специалистам. Ведь зачастую перепланировка квартиры сопровождается переносом или даже сносом стен.

первоначальный план 3-комнатной квартиры

вариант перепланировки трехкомнатной квартиры со сносом стен коридора
Только опытные специалисты смогут учесть все нюансы, гарантируя, что в результате вы получите совершенно безопасное и уютное жилье. Они учтут, какие стены в квартире являются несущими (а значит, с ними стоит работать только в крайнем случае), а какие – самонесущие. Учтут и материал, из которого построен дом.
Разумеется, у них есть планы различных домов со всеми характеристиками: толщиной стен, постоянными нагрузками, несущими конструкциями и так далее. Поэтому они смогут выполнить всю работу максимально качественно, независимо от того, в каком доме находится ваша квартира – 83 серии или 137 серии.
планировка трехкомнатной квартиры в домах 137 серии
Перенос или снос капитальных стен – очень важный процесс. И выполнять его можно только после получения разрешения в соответствующих органах.

Эту работу точно лучше доверить специалистам. Да, придется заплатить за их помощь. Зато в результате нужные документы будут собраны за считанные дни. В противном случае процесс их сбора вполне может затянуться на несколько недель или даже месяцев. Служащие контор будут отправлять вас из одного кабинета в другой, требовать всё новые и новые справки и разрешения. Тем, кто проходил эту процедуру, она вспоминается только в страшных снах.
Вы можете сами выбрать подходящий для вас проект:
- Стандартный проект. Он имеет относительно невысокую цену. Но не всегда может полностью удовлетворить требования владельца квартиры, так как был разработан по желанию другого заказчика.
- Уникальный проект. Обойдется вам довольно дорого, зато здесь вы будете вольны в своих фантазиях. Ваша квартира может быть преображена до полной неузнаваемости. Стандартная 3-хкомнатная квартира в панельной пятиэтажке может превратиться в роскошные апартаменты, отвечающие всем вашим требованиям.
Какой вариант выбрать? Решайте сами!
Как правильно снести стену в квартире.
Удачные планировки 3 комнатных квартир. Дизайн 3-х комнатной квартиры в панельном доме
Жилье в панельных домах отличается не только небольшой площадью, но и рядом ограничений, которые предстоит учитывать во время ремонта. Главное из них – невозможность масштабной перепланировки, поскольку стены и перекрытия монолитны и демонтировать или существенно их изменить очень сложно.
Высота потолков и площадь функциональных помещений (прежде всего кухни и санузла) также диктуют условия будущего дизайна. Увеличить площадь кухни возможно за счет коридора, ведущего к ней, и кладовой. Для хранения полезных или лишних на кухне предметов лучше выделить отдельную нишу в кухонной зоне.

Убрав, казалось бы, небольшую кладовую, вы получите дополнительные сантиметры площади, которых раньше не хватало для размещения более удобного мягкого уголка, шкафчиков или широкого холодильника.

Если кладовая находится в одной из жилых комнат, то оборудовать в ней гардеробную или расположить вместительный встроенный шкаф будет отличной идеей. Так площадь комнаты не пострадает, а спальня станет более удобной и практичной.

Дизайн от Екатерины Нечаевой и Ирины Маркман
Если у вас подрастает несколько детей, каждому из которых необходимо создать собственное личное пространство, а комната для этого одна, стоит использовать полную или частичную перегородку для разделения комнаты на две зоны. Аналогичный прием можно использовать для разделения комнаты на спальню и кабинет или рабочую зону. Для увеличения площади, можно присоединить балкон или лоджию к жилой комнате, оформив там домашний офис или дополнительную зону для отдыха.

Интерьер от студии Ariana Ahmad Interior Design
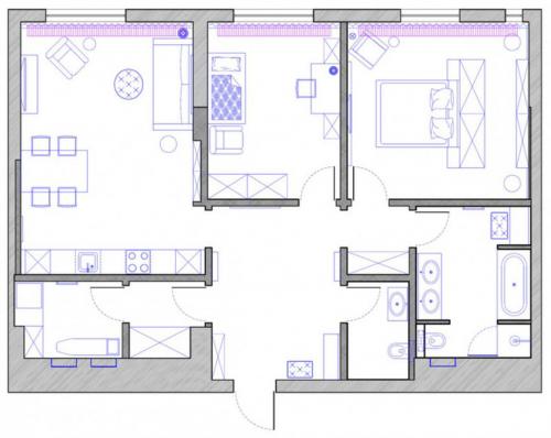
Проект квартиры № 1 (100 кв. м)
Трехкомнатная квартира принадлежит молодой паре с ребенком.








Планировка 3 комнатной квартиры улучшенной планировки. Планировка 3 комнатной квартиры 60 кв. м
Планировка 3 комнатной квартиры 60 кв. м: площадь помещений уменьшается; кухня 6–7 м2, комнаты соответственно 17,14 и 9 м2, отсутствует кладовая, общее решение напоминает квартиры постройки 60 годов прошлого века. Основное достоинство планировки — компактность, она же — и беда, так как для систем хранения приходится жертвовать метры жилой площади, которых и так недостаточно.
Планировку 3 комнатной квартиры 60 кв. м вряд ли можно исправить, не прибегая к помощи профессионального дизайнера. Один из предлагаемых вариантов — организация входа в кухню из смежной комнаты, которая превращается в гостиную, увеличение площади ванной за счет закрытого прохода в кухню. Перегородка между гостиной и прихожей можно демонтировать, образовав большое помещение. Между двумя спальнями возможно встроить кладовую или два встроенных шкафа — по одному для каждой из комнат. Планировка 3 комнатной квартиры 60 кв. м может быть осовременена.
Планировка трехкомнатной квартиры 63 кв. м в доме брежневской постройки предполагала одну проходную комнату, чем напоминала хрущевку, но здесь мы видим один или два балкона, чуть более просторную кухню и раздельный санузел. Такая планировка без переделок устроит семью без детей или с одним взрослым ребенком.
При помощи дизайнера планировка трехкомнатной квартиры 63 кв. м может быть легко приспособлена для нужд небольшой семьи из 3–4 человек минимальной переделкой: достаточно убрать дверь в проходную комнату, между комнатами выполнить кладовую или два встроенных шкафа. Правда, пробивка отверстия в капитальной стене потребует согласования и разработки проекта.
Планировка 3 комнатной квартиры 64 кв. м полностью повторяет жилье площадью 60 и 63 м кв., разница в площади образуется только за счет разных привязок стен — кирпичных или панельных. Планировка 3 комнатной квартиры 64 кв. м встречается в домах разного времени постройки, начиная с 50-х и кончая 70-ми. Не отличается от них и планировка 3 комнатной квартиры 65 кв. м того же времени постройки.
Планировка 3 комнатной квартиры 66 кв. м отличается только наличием огромного углового балкона.
Удачные планировки трехкомнатных квартир. Стандартная планировка «трешки»
Имеет несколько вариантов размещения жилых помещений типичная 3-комнатная квартира. Планировка здесь может быть удобной или доставлять определенный дискомфорт своим жильцам. Так, например, две комнаты маленькие, а одна большая. В некоторых жилищах наблюдаются два смежных помещения и одно изолированное, но маленьких размеров. Иногда комнаты располагаются по обеим сторонам здания. Такая схема расположения называется «самолетом» и часто встречается в московских домах. Лучшими считают 3-комнатные квартиры (серии планировки характеризуют положение комнат, высотность здания, размеры помещений и многое другое), в которых все помещения изолированные.
Обычно в стандартной трехкомнатной квартире имеется хотя бы одна кладовка. Большинство дизайнеров рекомендуют и из неё сделать гардеробную. В небольших помещениях за счет кладовки можно решить проблему недостающего пространства.
Обычно в квартире из трех комнат одну определяют для гостиной, вторую - для спальни, а третью отводят под детскую, если в семье есть дети.
Почти все «трешки» имеют раздельный санузел, а многие из них - угловое расположение. Находятся на максимальном удалении от лестницы и лифта. Стандартные размеры такой квартиры колеблются от 56 до 80 кв. м. Самая большая комната - от 15 кв. м, обычно это зал или гостиная; спальня - от 12 кв. м, а на детскую комнату приходится от 10 кв. м. Размеры кухни - около 7-9 кв. м.
Трехкомнатная квартира дает определенную свободу в использовании жилого пространства. Места здесь хватит всем - и взрослым, и детям.
Планировка 3 комнатной квартиры 97 серии. Этажность и планировки квартир [1]
Дома 111-97 серии строились в основном этажностью в пять и девять этажей. Иногда встречается этажность в шесть, семь, десять и одиннадцать этажей. Планировка квартир в пяти-(шести-)этажном доме отличается от планировки этажностью семь и выше из-за наличия лифта. Лифт строился только в зданиях, где было семь этажей и выше. Пяти- и шестиэтажные подъезды строятся по двое, остальные типы планировок - по одному подъезду, что позволяет создавать свечки.
| 5 этажей | 9 этажей | ||
|---|---|---|---|
| Тип подъезда | Кол-во квартир на этаже | Тип подъезда | Кол-во квартир на этаже |
| По два подъезда в секции | В одном подъезде 3, в одной секции 6 | Один подъезд в секции | 3 |
| Угловой (90°) | 4 | Угловой (90°) | 4 |
| Угловой (30°) | 3 | Угловой (30°) | 4 |
| — | Малосемейка (Z) | На первом этаже 7, на остальных 8 | |
| Малосемейка (I) | 8 (?) | — |
Рассмотрим каждый тип отдельно:

Дома стандартной планировки используются чаще всех остальных планировок, так как это самый оптимальный вариант для расселения жителей. Условно можно разделить эти планировки на малоэтажные здания (например, пять этажей) и многоэтажные здания (например, девять этажей). В многоэтажных зданиях три квартиры на этаже, среди которых двухкомнатная, трёхкомнатная и четырехкомнатная. Иногда на первом этаже двухкомнатная квартира заменяется однокомнатной, а одна комната уходит либо под электрощитовую, либо под запасной выход. В малоэтажных домах планировка отличается. В перовом подъезде квартиры одно-, двух- и трёхкомнатные, во втором одна однокомнатная и две двухкомнатные. Иногда в малоэтажных домах стоят не три квартиры на этаже, а две. В таком случае квартиры трёх и четырех комнатные в обоих подъездах. В квартирах стандартной планировки, как правило, строятся балконы во всех квартирах, кроме перового этажа. В четырёхкомнатных квартирах, как правило, два балкона. Иногда бывают исключения. Планировкой многоэтажного здания могут построить малоэтажное здание. На это, обычно, две причины. Первая - не хватило денег на строительство еще четырёх этажей, либо на строительство лифта; вторая - "дизайнерское" решение планировщика квартала. В таком случае шахта лифта закрывается. Жители таких домов используют её в качестве кладовой.
Планировка 3-х комнатной квартиры в 5 этажном панельном доме. Можно ли улучшить брежневку
Несмотря на все плюсы брежневки, многих людей утомляют те минусы, которые не были искоренены. И в первую очередь это малая площадь кухни. Всё-таки 6-7 квадратных метров это не тот показатель, о котором мечтают многие домохозяйки.
Поэтому нередко даже люди, в чьем распоряжении находится роскошная четырехкомнатная брежневка, всерьёз задаются вопросом – можно ли сделать её ещё лучше?
Лучше можно сделать практически всегда. Но для этого следует быть максимально осторожными и внимательными. Вообще, лучше всего доверить работу специалистам. Да, придется заплатить за их услуги. И заплатить немало. Зато они легко смогут достать план вашего дома, чтобы изучить его и составить оптимальный план работ, который гарантированно не навредит несущим конструкциям и не поставит вашу жизнь и жизнь ваших соседей под угрозу.
простые небольшие варианты перепланировки кухни в брежневке, которые можно сделать самостоятельноДело в том, что в панельных брежневках почти все стены являются несущими. Поэтому затрагивать их при ремонте не желательно, а если всё же приходится, то делать это следует максимально осторожно. Тем более что в некоторых случаях можно обойтись без этого. Итак, какие же варианты существуют?

пример дизайна интерьера кухни, совмещенной с балкономЕсли вам хочется визуально увеличить площадь кухни, но шкафов и балкона на кухне нет, а ваша не позволяет выкроить несколько лишних метров, чтобы присоединить их к кухне, можно сделать проём в стене, отделяющей кухню от комнаты.

Это весьма удобно функционально и в то же время позволяет сделать площадь обоих помещений визуально больше.
Иногда оправданным будет полный снос стены между кухней и комнатой. В результате вы получаете . Освобождается довольно много места.
Остается только качественно зонировать комнату и кухню, разделяя их цветом или используемыми отделочными материалами.
Кухня остается кухней, жилая комната – жилой комнатой, а на их границе можно расположить столовую – владельцы 1 комнатной квартиры в большинстве случаев могут только мечтать о такой роскоши.
Кстати, ещё один случай, который может доставить дискомфорт обитателям брежневки, это крайне малый размер санузла. Да, санузел в большинстве брежневок раздельный. Но даже в 2-3 комнатных квартирах его площадь крайне мала. Иногда даже невозможно установить стиральную машину , что, конечно, не нравится обитателям.
Единственный способ исправить это, который позволит планировка 2 комнатной брежневки, это объединение санузла. Разумеется, это может доставить определенные сложности, особенно если в квартире живет 3-4 человека. Зато в результате вы получаете достаточно свободного места, чтобы установить нужную технику, экономя место на кухне и в то же время делая жизнь более комфортной.
Пример объединенного санузлаИногда после объединения санузла оправданным является его полная перепланировка – унитаз и ванная меняются местами или разворачиваются, чтобы с максимальной пользой использовать имеющуюся площадь.
Вообще, критически подходя к дизайну квартиры, почти всегда можно сделать его оптимальным и подходящим именно для вас. Иногда оправданным является снос или перемещение встроенных шкафов, снос перегородок. Тогда из любой можно создать настоящее произведение искусства.
Планировки.
Однокомнатные квартиры.
Двухкомнатные квартиры.

Трехкомнатные квартиры.
«Хрущевки»
Термин «хрущевка» слышал каждый, но не все могут дать этому типу квартир точную характеристику. Давайте попробуем разобраться вместе, для этого нам необходимо окунуться в историю.
В далеком 1955 году, а именно 31 июля, Совет Министров СССР, во главе с Хрущевым, принял постановление «О развитии жилищного строительства в СССР», в связи с массовым недостатком жилых площадей. Вследствие этого и был разработан проект «Хрущевка», получивший свое название от участия в нем генсека. Строительство началось в середине 50-х годов. Проект по техническому решению представлял собой панельный либо кирпичный дом в три, пять этажей с присутствием высоких потолков (2,5м), но с отсутствием лифта и мусоропровода. Стилистика таких домов была строгая, с отсутствием каких–либо украшений, даже остекленение балконов в «хрущёвке» считалось на тот момент большой роскошью. На одном этаже располагались четыре квартиры, в которых размещались одна, две комнаты, со смежными стенами и слабой звукоизоляцией, совмещенным санузлом и маленькой кухней. Но даже в таких непростых условиях люди находили верные решения бытовых проблем. Возьмем, к примеру, сооружение встроенного шкафа для хранения продуктов. Толщина стенок была примерно в полкирпича, и это в холодное время являлось хорошим заменителем холодильника.