Дизайн интерьера однокомнатной квартиры.. Нестареющая классика
- Дизайн интерьера однокомнатной квартиры.. Нестареющая классика
- Дизайн 1-комнатной квартиры 36 кв м. Дизайн однокомнатной квартиры площадью 36 кв.м
- Дизайн однокомнатной квартиры с отдельной кухней 30 кв. Проекты однокомнатных квартир с отдельной кухней - 3 проекта с примерами планировок
- Дизайн однокомнатной квартиры с отдельной кухней. Планировки однокомнатной квартиры
- Дизайн однокомнатной квартиры 40 кв.м с отдельной кухней. Есть несколько замечательных способов справиться с проблемой нехватки площади в «однушке»
- Дизайн 1 комнатной квартиры 30 кв м. Современный интерьер квартиры
Дизайн интерьера однокомнатной квартиры.. Нестареющая классика
- Современный ремонт однокомнатной квартиры в сталинке
Английский классический стиль идеально подходит для 1-комнатной квартиры. Он помогает рационально оформить помещения любой площади. Для интерьера однокомнатной квартиры в классическом стиле характерны:
- Дорогие декоративные материалы (лучшие сорта древесины, натуральный мрамор, ткани с ручной вышивкой);
- Ванная в однокомнатной квартире с полом из натурального мрамора
- Геометрическая четкость линий;
- Как обустроить малогабаритную квартиру в классическом стиле
- Теплая палитра пастельных тонов;
- Дизайн ванной комнаты в теплых тонах
- Красивая лепнина, хрустальные люстры в лучших традициях английских домов, драпировки и шелковые обои для комнаты;
- Как отделить диваны в комнате с помощью драпировки
- Дорогие паркетные полы.
- Обстановка квартиры с паркетом: сколько стоит обставить однушку по-королевски
В классических интерьерах часто используются белые, кремовые, коричневые, бежевые, шоколадные и зеленые цвета. В приоритете находятся матовые и дымчатые оттенки. Они хорошо сочетаются между собой.
- Пример ремонта однокомнатной квартиры в серо-дымчатой цветовой гамме: стенка в нише, кровать и журнальный столик
Дизайн однокомнатной квартиры в светлых тонах смотрится элегантно и красиво вне зависимости от площади помещения. Ключевыми формами стиля являются круг и овал средних размеров. Дальнейшая фотогалерея содержит ряд интерьерных решений для студии и однушки в классическом стиле с 2017 по 2020 годы.
Дизайн 1-комнатной квартиры 36 кв м. Дизайн однокомнатной квартиры площадью 36 кв.м

Если площадь квартиры не очень большая, то это вовсе не значит, что не нужно продумывать ее дизайн. Как раз наоборот, владельцы скромных однокомнатных квартир как никто другой знают, насколько важно грамотно составить проект помещения. Ведь от него напрямую зависит то, насколько уютно будет в доме. А также и то, как будет использован каждый сантиметр драгоценного пространства. Сегодня мы подробно поговорим об особенностях дизайна современной квартиры площадью 36 кв. м.


Какой стиль подойдет для малогабаритного пространства?
Разумеется, вас никто не ограничивает в выборе направления дизайна. Вы можете создать дома маленький дворец в стиле барокко. Или же уютный провансальский интерьер. Однако независимо от того, какой вариант вы выберете, важно помнить, что лучше иметь отсылку к минимализму. Ведь если и без того небольшое пространство будет заставлено громоздкой мебелью или многочисленными декоративными предметами, едва ли кто-то сможет там долго комфортно находиться.
Какая должна быть мебель?
Идеальным решением для квартиры площадью 36 квадратных метров станет мебель-трансформер. Это может быть все, что угодно. Например, шкаф, который раскладывается и превращается в кровать. Или же диван, который заменит кровать. Также очень рекомендуем вам обратить внимание на столы-книжки или откидывающиеся столешницы. Они станут отличным решением как для столовой, так и для кабинета, если таковой вам необходим.
На кухне не должно быть габаритных гарнитуров, к которым все так привыкли. Кстати, многие вместо обеденного стола и рабочей поверхности используют барную стойку, если хотят сэкономить пространство.


Как разделить пространство на зоны?
Главное, что нужно помнить при оформлении малогабаритной квартиры – ее дизайн должен быть легким и воздушным. Поэтому для разделения пространства на несколько функциональных зон следует использовать тонкие матовые полупрозрачные перегородки. Чаще всего они выполняются из ударопрочных материалов. Таким образом вы получите легкую, но при этом довольно надежную стену. Также отличной идеей для эффективного зонирования квартиры может стать игра света или подходящая цветовая гамма.
К примеру, если пол в и стены в кухонной зоне будут выполнены из материала другого цвета и фактуры, нежели основная часть квартиры. Или даже потолок в этих зонах будет отличаться по своему оформлению.


Еще можно разграничить отдельные области при помощи яркости освещения или различных осветительных приборов. Кстати, отличным решением для функционального разделения пространства станет использование стеллажа или шкафа. С его помощью вы не только эффективно разграничите комнаты, но и сможете использовать мебель по назначению. Обязательно возьмите на заметку такой совет, если хотите как можно рациональней обставить свою небольшую квартиру.
Какая цветовая гамма подойдет лучше всего?
Когда дело касается небольших квартир, то о темных оттенках лучше сразу забыть. Ведь ни для кого не секрет, что светлые тона визуально расширяют пространство. В то время как темные, наоборот, существенно скрадывают и без того драгоценные квадратные метры. Выберите основной светлый цвет и используйте его более темные вариации, чтобы расставить акценты или разделить площадь. Также можно сделать более темным пол.
Главное помнить, что абсолютно все выбранные вами цвета должны гармонично сочетаться между собой. Это касается всего: мебели, декора, текстиля и прочего.
Перечислим несколько полезных советов, которые помогут вам обставить малогабаритную квартиру наилучшим образом:
- Для визуального увеличения небольшого пространства используйте зеркала. Такой простой прием позволит эффективно расширить границы квартиры, сделать ее более легкой и просторной. К тому же благодаря данной хитрости помещение станет выглядеть более стильно и красиво.
- Используйте дверцы на рельсах, вместо традиционных распашных конструкций. Так вам не придется предусматривать дополнительное свободное пространство для открытия дверей, будь то створки шкафа или межкомнатные двери. К тому же в современных магазинах довольно большой выбор бюджетных и стильных шкафов-купе.
- Задействуйте пространство под потолком. Там, к примеру, можно удачно разметить телевизор или акустическую систему. Это очень удобно, и техника не будет занимать лишнего места.
- Откажитесь от массивных штор. Если в маленькой квартире повесить толстые занавески или тюль с объемным ламбрекеном, то интерьер от этого точно не выиграет. Гораздо разумнее предпочесть такому варианту современные и компактные римские шторы.
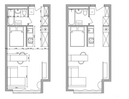
Дизайн однокомнатной квартиры с отдельной кухней 30 кв. Проекты однокомнатных квартир с отдельной кухней - 3 проекта с примерами планировок
Всего двадцать лет назад все мы считали очевидным, что кухня в квартире – это то помещение, которое обязательно должно быть отделено и изолировано. Однако, в последние годы идеи объединения кухни и гостиной в общее пространство или размещать все зоны маленькой квартиры в рамках общего студийного пространства стала настолько популярной, что отдельная кухня встала редкостью.
На данной странице мы собрали несколько проектов «однушек», планировка которых предполагает отделение кухни в отдельную комнату. Причём в каждом конкретном проекте – эта задача реализована по-своему.
1. Однокомнатная квартира 38 кв. м, кухня отделена глухой перегородкой
В этой квартире поместилось очень много функций: прихожая, кухня, столовая, спальня, гостиная, рабочая зона для двоих, санузел и даже гардеробная комната.
Цветовая гама очень сдержанная., на стенах мы использовали декоративную штукатурку, которая приятно бликует на свету. Обилие природных фактур, таких как дерево и камень, в сочетании с синими акцентными элементами гармонично дополняют и подчеркивают друг друга, а тёмные детали придают графичности пространству.
.
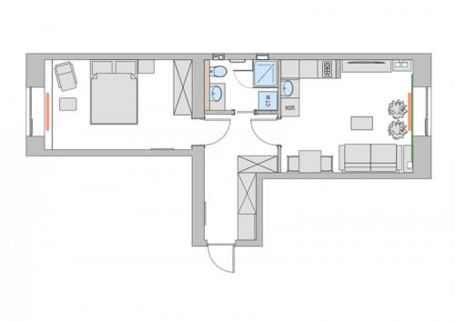
Дизайн однокомнатной квартиры с отдельной кухней. Планировки однокомнатной квартиры
Чтобы при ремонте однокомнатной квартиры подобрать оптимальный дизайн, нужно учитывать и ее тип. На данный момент распространено несколько основных разновидностей, каждая из которых имеет свои характерные особенности:
- Хрущевка. Квартиры советской постройки, которым уже несколько десятков лет. Их отличительная особенность – крошечная площадь, часто она не превышает 30 квадратов. Небольшая кухня и комната, совмещенный санузел и прихожая в несколько квадратных метров. Тут очень важно продумать все до мелочей, использовать каждый доступный уголок для систем хранения. Планировка стандартная, каждое помещение нужно оформлять отдельно.

- Студия. Более современные решения с объединенным пространством, которые строятся не так давно, площадь на несколько метров больше, чем в хрущевках. Планировка более свободная, кухонная и жилая зоны чаще всего разделяются мебелью, чтобы не занимать пространство. Что касается расстановки, тут есть свобода выбора: проще всего посмотреть фото дизайна однокомнатных квартир-студий.

- Среднегабаритная квартира. Обычно площадь составляет около 40 квадратов, что обеспечивает намного больше возможностей при оформлении. Планировка чаще всего стандартная – прихожая, из которой двери идут в комнату, кухню, ванную и туалет. Нередко есть и достаточно большая ниша, в которой можно оборудовать гардероб или даже сделать спальное место. Расположение и компоновка помещения при этом могут быть разными.

- «Распашонка». Название обусловлено особенностями планировки. Обычно после входа есть коридор среднего размера, из которого в одну сторону расположена дверь в комнату, в другую – кухня, а спереди – туалет и ванна. Ширина помещений обычно не очень большая, что также является особенностью этого типа. Помещения длинные, что требует использования приемов по визуальному расширению пространства.

Есть квартиры в новостройках с площадью более 45 кв м. Это самые лучшие варианты, в которых места достаточно для воплощения любого замысла.
Дизайн однокомнатной квартиры 40 кв.м с отдельной кухней. Есть несколько замечательных способов справиться с проблемой нехватки площади в «однушке»
Главная трудность в маленькой однокомнатной квартире — это организация пространства. Его нужно разделить таким образом, чтобы каждая из частей была самостоятельной и выглядела полноценно. Конечно, в разных семьях потребности могут отличаться, но, не делая серьезный ремонт, выделить в небольшой квартире место для приема гостей, сна и работы требуется всем. Предлагаем несколько способов, как сделать удобный и комфортный дизайн однокомнатной квартиры 40 кв.м.
Max Kasymov Interior/Design Сохранить фото
Для экономии места лучший дизайн однокомнатной квартиры 40 кв.м (на фото) — разделить пространство на две зоны: гостевую и приватную
Corynne Pless Сохранить фото
Четко разделите комнату на зоны
С помощью мебели вы можете создать удобные зоны для встречи гостей, работы и сна. Для таких целей отлично подходят стеллажи (ширмы лишь занимают место), секретеры (а не письменные столы), а также комоды: в некоторые из них вещей входит больше, чем в средних размеров шкаф — проверено.
Мария Дадиани Сохранить фото
Правильная планировка однокомнатной квартиры 40 кв.м (как на фото) визуально увеличит небольшое пространство
Откажитесь от того, что не нужно
Некоторые традиционные предметы мебели, такие как диван (помимо спального места), кресла или «стенка» могут быть обременительны для интерьера квартиры 40 кв.м, стесняя и без того небольшое пространство.
Откажитесь от габаритных и не всегда нужных вещей. Если вы любите смотреть телевизор на диване, избавьтесь от лишних кресел. Место для сидения гостей найдется всегда, к примеру, на удобных подушках, которые потом можно сложить и убрать в шкаф.
А уж если вы предпочитаете работать с ноутбуком на кухне, поближе к холодильнику, вам точно не нужен отдельный рабочий стол.
BAM Design Lab Сохранить фото
Поставьте диван спинкой к кровати
Таким образом вы сможете сэкономить место в интерьере, а заодно организовать отдельный спальный уголок, какой бы ни была планировка квартиры 40 кв.м. Эти предметы мебели можно как разнести по комнате, так и поставить спина к спине, вплотную.
Сохранить фото
Разные цвета совмещайте на небольших элементах
Если вы хотите оживить комнату яркими оттенками, следует воздержаться от злоупотребления цветами в больших масштабах. Лучше выплесните творческий порыв на дизайн мелких предметов декора, текстиль иди малогабаритную мебель — прикроватные тумбы, изголовье кровати, панно (хорошая идея красивого цветного панно — на фото) или постеры.
Nichole Loiacono Design Сохранить фото
Дизайн однокомнатной квартиры 40 кв.м (на фото) в стиле фьюжн позволил «спрятать» обеденную зону в зоне гостиной
Перенесите столовую в комнату
Если на кухне совсем не хватает места, подумайте об организации столовой в единственной комнате. Место для стола можно найти либо у окна, либо у самого входа в комнату. Заодно он может сыграть и роль письменного стола.
Совет: Круглый стол в маленьком помещении будет смотреться более изящно, чем квадратный или прямоугольный.
OlgaL Сохранить фото
Делая ремонт в однокомнатной квартире 40 кв.м, заранее продумайте нестандартные места для хранения мелочей, например, как на фото этого интерьера
Используйте стену с окном
Если удлинить подоконник и сделать одну столешницу-полку над радиаторами, под ней еще найдется место для хранения разных предметов (книг, документов или пары коробок с мелкими вещами)
Совет: При покупке мебели, сделанной на заказ, вы сможете использовать каждый полезный сантиметр комнаты. Типовые предметы мебели часто не слишком удобны в маленьких пространствах.
Tommy Chambers Interiors, Inc. Сохранить фото
Оформите кровать
Хорошо декорированная кровать в единственной жилой комнате, к примеру, студии — мечта многих владельцев однокомнатной квартиры. Легче всего реализовать такой вариант при угловом размещении, создав изголовье из двух стенок, а также украсив кровать разнообразным текстилем — несколькими видами подушек разных размеров.
Black and Milk | Interior Design | London Сохранить фото
Используйте мебель-трансформер
Вместо того, чтобы спать на диване, купите откидную кровать, которая будет днем превращаться в небольшой стеллаж у стены. И к тому же такой вариант визуально разгрузит интерьер квартиры 40 кв.м (на фото) и освободит столь необходимое место в центре комнаты.
ARCHIFORMS studio Сохранить фото
Используйте пространство над кроватью
Для организации хранения можно повесить здесь несколько открытых или закрытых полок, небольших шкафчиков. Но не каждый будет способен психологически выдержать данный вариант: сначала следует проверить свою реакцию, повесив на время небольшую полку.
ВАША ОЧЕРЕДЬ…
С какими трудностями вы сталкивались, создавая дизайн интерьера однокомнатной квартиры 40 кв.м? Какие решения принимали? Поделитесь вашим опытом в разделе комментариев!
Дизайн 1 комнатной квартиры 30 кв м. Современный интерьер квартиры
Чаще всего, площадь 30 кв. м имеют стандартные однокомнатные «хрущевки». Многие думают, что выбор дизайна в этом случае ограничен и скуден, но это не так. Помещение можно выгодно оформить, сделав ремонт в современном стиле, разместив в нем всю нужную мебель и отделив функциональные зоны. Правильно подобрав дизайн квартиры, можно наполнить ее уютом.
Прихожая
В каждой квартире есть небольшая прихожая. Если квартира в 30 кв. м – «хрущевка», то в ней имеется и кладовка, которая часто заменяет шкаф для одежды. В кладовку можно установить удобные двери-купе, которые не требуют места для открывания. Таким образом, в помещении будет иметься уже встроенный шкаф, занимающий минимальное количество места. Кроме того, нужно правильно спланировать его наполнение: полки, вешалки, ящики.
В маленькой прихожей также можно повесить крючки и сделать стойку для обуви: качественная и плотная, она заменит стул для переобувания. В маленькой прихожей нужно разместить большое зеркало на стене, которое будет зрительно расширять помещение.
Если в такой прихожей нет встроенного шкафа-кладовки, то прекрасным решением будет установка углового шкафа, однако его может заменить и шкаф-купе.


В дверцах также можно установить зеркала, очень модно интересно смотрится такая мебель с дополнительной подсветкой. Она прекрасно освещает маленькую прихожую и, к тому же, дополнительное освещение позволяет расставить световые акценты и наполнить прихожую легкостью. В квартире с маленькими прихожими ни в коем случае не следует использовать системы хранения открытого типа, поскольку они будут загромождать помещение.
Мебель лучше приобретать не слишком крупную, узкую и светлую. Глянцевые и стеклянные поверхности – то, что нужно. Важно подобрать очень яркие и качественные источники освещения, они помогут прихожей казаться не слишком маленькой,


Кухня
В современной 1-комнатной квартире площадью 30 кв. м примерно 6 кв. м приходится на кухню, но даже при столь небольших габаритах кухню можно сделать уютной . Мебель здесь должна быть оснащена встроенной техникой. Таким образом, вы сможете использовать место на кухне максимально рационально. В таких случаях даже прибегают к расширению подоконника. Там можно организовать рабочее место хозяйки или разместить кухонные принадлежности, посуду, мелкую бытовую технику и другие вещи. Под подоконником можно сделать полки и выдвижные ящики. В них хранят столовые приборы, кастрюли и даже некоторые продукты, например, крупы.
Дизайн кухни должен создавать атмосферу наполненности светом и простора. Лучше расположить всю мебель вдоль одной стены, а с противоположной стороны сделать обеденную зону. Таким образом, дизайн станет более современным и модным, а помещение – функциональнее. Оформляя помещение в минималистическом стиле, можно поставить туда только самые важные кухонные предметы, совершенно избавившись от обеденного стола. Его роль может выполнять расширенный подоконник или узкая и функциональная барная стойка.
В таком помещении лучше использовать табуретки, поскольку их можно легко задвинуть под стол, и они освободят дополнительное место в помещении.
Комната
Комнаты в современных квартирах площадью 30 кв. м – это единственное жилое пространство. Его нужно оформить, разделив на зоны. Сделать это можно с помощью различных цветов или перегородок. При выборе мебели и отделочных материалов важно обращать внимание на модели, дизайн которых будет легким и светлым. Стена должна быть оформлена в пастельных оттенках, а окна – в светлых.
В качестве занавесок лучше приобретать только шифоновые модели, которые являются отличным решением для дизайна и отделки такой комнаты. Интерьер не должен быть роскошным и вычурным – важно не перегружать обстановку лишними деталями и аксессуарами.
Для обустройства интерьера лучше использовать стильную и функциональную мебель трансформируемого типа. Она может складываться и изменяться. Это относится как к столам, так и к спальным местам.

В современных квартирах площадью 30 кв. м. важно учитывать наличие балкона. Таким образом, лоджию лучше утеплить, чтобы можно было разместить там удобную систему хранения, например, шкаф с закрытыми полками. Подобный дизайн выбирают с целью «разгрузить» интерьер. На балкон часто переносят зону отдыха, ставится туда и журнальный столик.

