100 вариантов зонирования однокомнатной квартиры в 2022 году. Современный дизайн квартиры студии в 2022 году
- 100 вариантов зонирования однокомнатной квартиры в 2022 году. Современный дизайн квартиры студии в 2022 году
- Как обустроить однокомнатную квартиру для двоих. Практичные и оригинальные стили обустройства однокомнатных квартир
- Дизайн однокомнатной квартиры с отдельной кухней 30 кв. Проекты однокомнатных квартир с отдельной кухней - 3 проекта с примерами планировок
- Как обставить однокомнатную квартиру недорого. Фото 200+ дизайна однокомнатной квартиры 2022-2023
- Дизайн однокомнатной квартиры с отдельной кухней. Популярные планировки и идеи для перепланировки однокомнатной квартиры
- Дизайн однокомнатной квартиры 2022. Зонирование комнаты
- Зонирование однокомнатной квартиры. Основные правила зонирования
100 вариантов зонирования однокомнатной квартиры в 2022 году. Современный дизайн квартиры студии в 2022 году

Квартиры-студии имеют ряд нюансов, которые необходимо учитывать, выбирая современный дизайн для такого жилья. Тренды дизайна интерьеров постоянно меняются и, если у вас квартира-студия, в 2022 году предлагаются интересные идеи для её оформления, которыми вы можете воспользоваться.
Современный дизайн квартиры-студии в 2022 году


Продуманный подход к дизайну квартиры-студии может сделать её не только компактной, но и стильной. Если именно такой вы хотите видеть свою квартиру, следует придерживаться следующих правил:
- Подумайте, каким вы хотите видеть пол в своей квартире-студии? Что выберете: ламинат или плитку?
- Как планируете выделить кухонную зону? Барная стойка станет здесь отличным решением.
- Каким будет ваше спальное место? Что предпочтёте: кровать или диван? Считается, что кровать – более подходящий вариант для сна.
- Для сохранения свободного пространства в маленькой квартире-студии рекомендуется пользоваться встроенной мебелью. Это также позволит поддерживать порядок дома.
- Следует обратить внимание на вентиляцию – в такой квартире наиболее остро ощущается духота.
- Стиральную машину целесообразно поставить в ванную комнату. Очень часто саму ванну заменяют душевой кабиной облегчённого типа.
- Оформляйте свою студию в современном стиле. Классика здесь будет смотреться неуместно.
- Приветствуется применение естественных цветов и оттенков. Акцент на всё натуральное. Допускается применение ярких оттенков в малых количествах.
- Перегородку лучше делать кирпичной или из газосиликатных блоков.
Пол в квартире-студии
Лучшим материалом для пола в квартире-студии считается ламинат. Причём это покрытие укладывается в прихожую и в кухню. Современный ламинат изготавливают хорошего качества и с большим сроком эксплуатации. Не рекомендуется состыковывать плитку с покрытием из ламината – в места стыков будет попадать грязь и влага.
Можно постелить и паркет, но только в комнате. Его не рекомендуют применять в качестве напольного покрытия в кухню и в прихожую. Паркет можно стыковать с плиткой.
Зонирование
Перед выбором дизайна квартиры-студии следует подумать о зонировании пространства. Как вы хотите совместить комнаты? Это можно сделать следующими способами:
- Прихожую можно отгородить мобильной перегородкой. Для верхней одежды и обуви применяйте шкафы-купе, они вместительны, функциональны, хорошо смотрятся в пространстве прихожей.
- Спальня. Спальное место можно приподнять на своеобразный подиум. Чтобы его отгородить, используется ширма или штора. Такая спальная зона может служить и местом для хранения вещей.
- Кухня. Кухонным гарнитуром можно отгородить участок, оставив место для рабочей зоны. Кухонная техника должна быть встраиваемой, вытяжка обязательна.
- Стулья, столы. Желательно наличие складывающихся стульев и откидных столов, чтобы их легко можно было убрать после трапезы.
- Подоконник может использоваться как столешница или письменный стол.
- Окна закрывают жалюзи или шторами.


Зона гостиной
Чтобы отделить зону гостиной применяют шкаф, стеллаж, диван. Телевизор размещают на стене или в шкафу. Если позволяет пространство, можно поставить ещё кресло с кофейным столиком.

В квартиры-студии хорошо вписываются раскладные диваны. Это позволяет из гостиной сделать спальню в пару движений.
Спальная зона
Лучшей спальной зоной традиционно считается угол квартиры. Это место может отгораживаться шторой, ширмой, перегородкой. Уместно наличие тумбочки, стеллажей на стенах при достаточном пространстве. В таких маленьких студиях можно использовать кровати, которые днём можно убрать в стену.
Зона санузла
В квартирах-студиях часто санузел совмещён с ванной. Идеальна здесь малогабаритная сантехника: душевая кабина, встроенная раковина и т. п. Сушилка располагается над стиральной машиной в целях экономии пространства. Отлично вписываются в интерьер встроенные шкафы, полки для хранения вещей.



Освещённость
В квартире должно быть много источников света, независимо от того, светлая комната сама по себе или тёмная. Свет способен сделать интерьер ещё лучше, интереснее.
Как обустроить однокомнатную квартиру для двоих. Практичные и оригинальные стили обустройства однокомнатных квартир
Рассмотрим варианты для типичной малосемейки:
Минимализм

Создать безупречную картинку небольшого интерьера можно, используя всего 2-3 крупных колор-блока. В качестве базового лучше пусть будет белый, бело-ясенный или другой высветленный тон.
Замените блоки со сложными принтами и узорами светлой отделкой – и вы ощутите, насколько свободнее может стать типичная квартира.
Еще одна изюминка минимализма – умное применение лаконичной вместительной мебели и минимальный неутомительный декор. Специально подбираются гарнитуры с открытыми полками и отсеками для встраивания техники. Каждый предмет сливается с обстановкой, всё выглядит упорядоченно.
Скандинавский стиль
Второе название этого стиля – скандинавский минимализм. Он более аскетичен в сравнении с привычным минимализмом (западноевропейским).

Его базис – бело-желтая или бело-серая отделка и древесные фактуры. Мебель – только необходимая, с самым простым или колониальным дизайном, с текстурой дерева или черная. Прикроватную тумбу может заменить сундук или корзина.
На первый взгляд, стиль сканди отображает небогатую и скромную жизнь. Однако он вселяет ощущение легкости и новизны в маленькую квартиру с советской историей и старыми раритетами.
Сейчас популярны квартиры в новостройках со свободной планировкой. Рассмотрим примеры и для этого типа жилья.
Баухауз
Баухауз – это, по сути, тот же минимализм, но реализованный в просторной комнате. Универсальный стиль для новых квартир с улучшенной планировкой и для комфортной непоказной жизни.

Его базовые оттенки – ахроматические, преимущественно светлые. Применять их нужно крупными блоками, чтобы комната выглядела просторной и сдержанной.
Мебель простых форм, максимально качественная и адаптированная под изгибы тела и удобная для отдыха. Она может ярко-красной, синей или черной, выделяться на общем фоне. Картины и аксессуары – абстрактные, несложные, сливающиеся с интерьером. А усиливает ощущение гармонии обильная подсветка.

Американский, или нью-йоркский стиль
Однокомнатные просторные квартиры-студии появились и даже стали массовыми в США. Там же возник и особый стиль оформления такого жилья, уличный, доступный для среднего слоя, но оригинальный.

В нью-йоркском рядовом интерьере обычно сумбурно смешаны элементы баухауза, лофта, гламура, этно.
В отделке могут равноправно комбинироваться светлые тона (белый, дымчатый) и цвета индиго, алый, фактура красного кирпича. Чаще всего темной делается одна контрастная стена, и она задает настроение интерьера.
Кроме этого, сочетается простая минималистичная мебель и гламурная дизайнерская, то есть этнические пуфики, кресла-шезлонги.
А лучший декор для такого интерьера – рисунки-граффити, фото звезд и картины «с улицы», с мостами или ресторанными вывесками, урбанистические фотообои. Старый ковер с яркими восточными узорами тоже будет уместен на полу.

Еще одна фишка – локальная подсветка, привлекающая внимание к интересным деталям.
Бразильяно (бразильский)
Это уже – самый популярный стиль оформления типичных небольших южноамериканских домов. И его можно удачно применить для «хрущевской» квартиры с переделанной открытой планировкой.

Дизайн однокомнатной квартиры с отдельной кухней 30 кв. Проекты однокомнатных квартир с отдельной кухней - 3 проекта с примерами планировок
Всего двадцать лет назад все мы считали очевидным, что кухня в квартире – это то помещение, которое обязательно должно быть отделено и изолировано. Однако, в последние годы идеи объединения кухни и гостиной в общее пространство или размещать все зоны маленькой квартиры в рамках общего студийного пространства стала настолько популярной, что отдельная кухня встала редкостью.
На данной странице мы собрали несколько проектов «однушек», планировка которых предполагает отделение кухни в отдельную комнату. Причём в каждом конкретном проекте – эта задача реализована по-своему.
1. Однокомнатная квартира 38 кв. м, кухня отделена глухой перегородкой
В этой квартире поместилось очень много функций: прихожая, кухня, столовая, спальня, гостиная, рабочая зона для двоих, санузел и даже гардеробная комната.
Цветовая гама очень сдержанная., на стенах мы использовали декоративную штукатурку, которая приятно бликует на свету. Обилие природных фактур, таких как дерево и камень, в сочетании с синими акцентными элементами гармонично дополняют и подчеркивают друг друга, а тёмные детали придают графичности пространству.
.
Как обставить однокомнатную квартиру недорого. Фото 200+ дизайна однокомнатной квартиры 2022-2023
Интерьер однокомнатной квартиры

Принято считать, что обладателями однокомнатной квартиры являются люди одинокие, не обремененные семейными заботами и обязанностями. Однако реалии сегодняшней жизни таковы, что в малогабаритной квартире могут проживать молодые пары с детьми или несколько различных по возрасту поколений одной семьи.
В последнем случае наиболее остро встает вопрос обустройства небольшого по площади жилого помещения. На первый взгляд задача может показаться практически неразрешимой.

На самом деле, практика показывает, что однушку вполне возможно сделать достаточно уютным и многофункциональным жилым пространством, способным удовлетворить потребности всех членов семьи. При правильном планировании всего интерьера квартиры, включая мебель, освещение, текстиль и различные аксессуары, вполне реально создать наиболее комфортные для всех и каждого условия для проживания.

Особенности дизайна квартиры
Первое что необходимо сделать, это определиться со стилем оформления жизненного пространства. Дизайнерских стилей существует великое множество, в этой сфере, как и мире моды одежды, появляется что-то новое, более соответствующее современным реалиям.

Так сегодня популярен стиль минимализм, который подразумевает использование в интерьере только самого необходимого, отсекая все лишнее. Классический стиль был популярен во все времена, не является исключением и 20-ые года XXI столетия. При выборе стиля оформления интерьера обязательно должны учитываться его размеры.
Невозможно воплотить в жизнь классический стиль в малогабаритном жилье. Зато здесь будет уместен модерн или все тот же минимализм. Если по жизни человек отдает предпочтение определенным цветам, например, при покупке одежды, домашнего текстиля, то это предпочтение должно обязательно учитываться при выборе дизайнерского стиля, так как в каждом направлении принято использовать определенную цветовую гамму.
Планировки однокомнатной квартиры
Чтобы при ремонте однокомнатной квартиры подобрать оптимальный дизайн, нужно учитывать и ее тип. На данный момент распространено несколько основных разновидностей, каждая из которых имеет свои характерные особенности:
- Хрущевка. Квартиры советской постройки, которым уже несколько десятков лет. Их отличительная особенность – крошечная площадь, часто она не превышает 30 квадратов. Небольшая кухня и комната, совмещенный санузел и прихожая в несколько квадратных метров. Тут очень важно продумать все до мелочей, использовать каждый доступный уголок для систем хранения. Планировка стандартная, каждое помещение нужно оформлять отдельно.

- Студия. Более современные решения с объединенным пространством, которые строятся не так давно, площадь на несколько метров больше, чем в хрущевках. Планировка более свободная, кухонная и жилая зоны чаще всего разделяются мебелью, чтобы не занимать пространство. Что касается расстановки, тут есть свобода выбора: проще всего посмотреть фото дизайна однокомнатных квартир-студий.

- Среднегабаритная квартира. Обычно площадь составляет около 40 квадратов, что обеспечивает намного больше возможностей при оформлении. Планировка чаще всего стандартная – прихожая, из которой двери идут в комнату, кухню, ванную и туалет. Нередко есть и достаточно большая ниша, в которой можно оборудовать гардероб или даже сделать спальное место. Расположение и компоновка помещения при этом могут быть разными.

- «Распашонка». Название обусловлено особенностями планировки. Обычно после входа есть коридор среднего размера, из которого в одну сторону расположена дверь в комнату, в другую – кухня, а спереди – туалет и ванна. Ширина помещений обычно не очень большая, что также является особенностью этого типа. Помещения длинные, что требует использования приемов по визуальному расширению пространства.

Есть квартиры в новостройках с площадью более 45 кв м. Это самые лучшие варианты, в которых места достаточно для воплощения любого замысла.
Зонирование однокомнатной квартиры
Перед тем как начать обустройство однокомнатной квартиры, лучше всего сразу определиться с тем, каковы будут масштабы предстоящих строительных работ. Для этого нужно решить, как будет проходить необходимое для увеличения полезной площади зонирование помещения. Решений может быть несколько.

Демонтаж встроенных помещений
Чтобы увеличить полезную площадь небольшого коридора, достаточно разобрать имеющуюся кладовку или встроенный стенной шкаф. Это оставшееся от архитекторов прошлого сооружение уже потеряло свою актуальность. На место демонтированных старых объектов можно поставить современный угловой шкаф или вместительный шкаф-купе.

Объединение соседних комнат
Чаще всего, создавая интерьер 1 комнатной квартиры, декораторы советуют объединить между собой различные помещения. Наиболее популярным вариантом является объединение жилой комнаты с кухней. Однако следует учесть, запах приготовленного блюда будет распространяться по всей квартире.

Дизайн однокомнатной квартиры с отдельной кухней. Популярные планировки и идеи для перепланировки однокомнатной квартиры
Обустраивая свою маленькую квартиру, каждый владелец рано или поздно задумывается о перепланировке, так как архитектурный замысел вашего дома не всегда соответствует образу идеальной квартиры.
Представляем вашему вниманию самые оптимальные варианты перепланировок для однокомнатных квартир площадью от 23 до 40 кв. метров.
- Планировка однокомнатной квартиры 23 квадратных метра
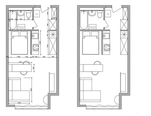
В дизайне этой малогабаритной квартиры площадью всего лишь 23 квадратных метра планировка просто восхищает своей рациональностью. Кухня расположилась в прихожей, гостиная – в зоне бывшей кухни, а спальня – на месте жилой комнаты. Ванная комната была тоже увеличена за счет жилой комнаты. - Планировка квартиры-студии в 30 квадратных метров
Планировка квартиры-студии обычно вмещает только диван или только кровать, но при достаточной квадратуре (например, 30 кв. метров) вы можете позволить себе и то, и другое.
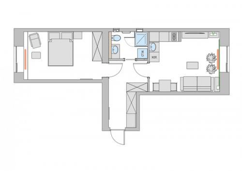
Посмотрите, как удачно на планировке выше ванная комната перенесена из зоны с прихожей вбок, чтобы кухня расположилась наиболее удачным образом. - Планировка однушки 38 квадратных метров
Когда ваша однокомнатная квартира имеет площадь 38 квадратных метров (без учета лоджии), то вы можете позволить себе даже отдельную гардеробную. В данном случае дизайнер решил оставить кухню отдельной комнатой, но в гостиной есть и диван, и раскладное кресло, а на лоджии обустроен кабинет. - Планировка однокомнатной квартиры 40 квадратных метров
Дизайн квартиры площадью 40 квадратных метров может быть достаточно труден. С одной стороны, площади достаточно для жизни двоих человек, но с другой стороны – здесь всего лишь два окна. Как быть?
На плане квартиры выше вы увидите, что не стоит жертвовать ни кухней, ни столовой, ни гостиной при оформлении квартиры в 40 кв. метров. - Планировка однокомнатной квартиры с отдельной спальней
Если вы решаетесь на перепланировку однокомнатной квартиры, чтобы получить отдельную спальню, посмотрите на эту прекрасную планировку.
Здесь на месте кухни расположилась спальня, на месте жилой комнаты образовалась гостиная, а в коридоре – кухня открытой планировки.
Дизайн однокомнатной квартиры 2022. Зонирование комнаты
Какой бы ни была площадь однокомнатных квартир, единственное жилое помещение необходимо оформить максимально функционально. В нем должно быть комфортно отдыхать перед телевизором, заниматься любимым хобби, работать, принимать гостей днем и восстанавливаться ночью. Каждое из занятий требует отдельной, пусть и небольшой, зоны.
В рамках дизайн проекта однокомнатной квартиры с особой тщательностью прорабатывает умное зонирование жилья. С его помощью вы сможете разграничить помещение на визуально отдельные участки, при этом оставив общее пространство комнаты единой территорией.
Для выделения зональных сфер используют множество приемов в дизайне:
- зонирование перегородками
Конструкции, служащие разделителями комнаты, могут быть изготовлены из листов гипсокартона. Его применяют для радикального деления комнаты и создания фактически комнаты в комнате. Этот метод часто используют для оборудования обособленной спальной зоны в гостиной или разделения одной комнаты на две.
Реечные системы в зависимости от их плотности позволяют визуально разделить пространство и являются гармоничным акцентом в интерьерах в скандинавском стиле, в лофте и минимализме.
Роскошные перегородки из стеклянных полотен в технологичных и минималистичных однокомнатных квартирах делают зонирование невесомым в то же время надежно защищая обособленные территории от постороннего шума и запахов.
Раздвижные конструкции представляют собой полотна, которые в случае необходимости закрывают часть комнаты от остального пространства. При выборе такого варианта зонирования, отдавайте предпочтение вариантам с матовым стеклом или зеркалами, так как они визуально легче глухих полотен.
- зонирование предметами мебели
С помощью сквозных стеллажей можно удачно выделить зону для работы в общей комнате. Диван, расположенный спинкой к рабочему или обеденному столу, отгораживает лаундж-территорию, а дизайнерское кресло с высокой спинкой, размещенное поодаль от остальных предметов мебели, обосабливает место для чтения или занятия хобби.
С помощью мобильной ширмы в необходимой ситуации можно создать зону, невидимую остальным присутствующим.
Расположив конструкцию для телевизора на границе обустроенных участков спальни и гостиной в однокомнатной квартире, вы разделите комнату и, в зависимости от потребности, сможете проводить время за просмотром фильмов как на диване, так и отдыхая в кровати.
Барная стойка отделяет кухонную зону от гостиной.
- зонирование светом
Разделение территории в квартире с помощью источников света позволяет визуально выделять и подсвечивать отдельные участки комнаты. Расположенные над диваном бра, уютный торшер возле отдельностоящего кресла, потолочный светильник над обеденным столом, спущенные подвесы для барной стойки или прикроватных тумбочек, трековый свет, направленный на рабочий стол - способы зонирования. В условиях небольшой жилой площади они являются наиболее востребованными, так как не утяжеляют пространство, но придают ему объем и делят его на отдельные участки.
- зонирование с помощью отделки
Интересным решением в дизайне является выделение зон в однокомнатной квартире с помощью сочетания различных цветовых участков, текстур и фактур отделочных материалов.
Можно выделить более насыщенным оттенком на стенах зону рабочего стола или расположения обеденной группы. Изголовье кровати оформляют контрастными обоями, реечной конструкцией, стеновыми панелями. Зону кухни подчеркивают керамикой и мрамором на фоне паркета или ламината в гостиной.
С помощью потолочных конструкций можно оригинально зонировать жилое пространство. Тут применяют и цветовые контрасты и различие в уровнях. Таким способом можно выделить область кровати в комнате или территории кухни. Опустив уровень потолка на границе зон, вы визуально подчеркнете их разделение.

Спешим обрадовать, что в нашей дизайн-студии можно заказать разработку интерьера квартиры . Команда профессиональных дизайнеров иполнит самые изысканные фантазии в ваших владениях!
Зонирование однокомнатной квартиры. Основные правила зонирования
Прежде чем приступить к самим способам зонирования и их примерам в интерьере, стоит рассказать об главных правилах, которые помогут сделать комнату визуально просторнее и комфортнее. Вот основные из них:
1. Светлые тона при отделке. Пастельные, светлые оттенки добавляют объемности и воздушности. Отличную иллюзию просторности можно создать сделав стены немного темнее, чем потолок и используя потолочные светильники.
2. Практичные стройматериалы и готовые варианты. Замечательным выбором для разделения на функциональные зоны станут арки, ширмы, подиумы, раздвижные перегородки, стеллажи.
3. Функциональная мебель. В условиях ограниченных квадратных метров лучше всего использовать функциональную, мобильную и компактную мебель. Пригодятся скрытые контейнеры для вещей, выдвижные кровати, кресла и диваны с раскладным механизмом, желательно оснащенные нишами для хранения постельного белья.
4. Зеркала. В небольшом помещении зеркала позволят создать оптическую иллюзию отзеркаливания и визуального расширения комнаты.
5. Лоджии и балконы, если таковые имеются можно легко использовать для создания различных функциональных зон либо же для расширения жилого пространства.

Серия разделов будет посвящена зонированию однокомнатной квартиры. В каждом мы рассмотрим разные варианты совмещения различных функциональных зон в одной комнате, что позволит подобрать оптимальный интерьер каждому владельцу однокомнатной квартиры.
В дизайне этой малогабаритной квартиры площадью всего лишь 23 квадратных метра планировка просто восхищает своей рациональностью. Кухня расположилась в прихожей, гостиная – в зоне бывшей кухни, а спальня – на месте жилой комнаты. Ванная комната была тоже увеличена за счет жилой комнаты.
Планировка квартиры-студии обычно вмещает только диван или только кровать, но при достаточной квадратуре (например, 30 кв. метров) вы можете позволить себе и то, и другое.
Когда ваша однокомнатная квартира имеет площадь 38 квадратных метров (без учета лоджии), то вы можете позволить себе даже отдельную гардеробную. В данном случае дизайнер решил оставить кухню отдельной комнатой, но в гостиной есть и диван, и раскладное кресло, а на лоджии обустроен кабинет.
Дизайн квартиры площадью 40 квадратных метров может быть достаточно труден. С одной стороны, площади достаточно для жизни двоих человек, но с другой стороны – здесь всего лишь два окна. Как быть?
Если вы решаетесь на перепланировку однокомнатной квартиры, чтобы получить отдельную спальню, посмотрите на эту прекрасную планировку.