Милый дом

Море полезных идей для квартиры и дома

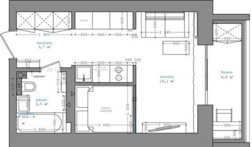
Студия на 30 кв м сделанная под стиль лофт.

15.05.2021 в 14:46

Кровать огорожена и создает вид отдельной комнаты
Студия на 30 кв м сделанная под стиль лофт..

Студия на 30 кв м сделанная под стиль лофт. 01
Студия на 30 кв м сделанная под стиль лофт. 02
Студия на 30 кв м сделанная под стиль лофт. 03
Студия на 30 кв м сделанная под стиль лофт. 04
Студия на 30 кв м сделанная под стиль лофт. 05
Студия на 30 кв м сделанная под стиль лофт. 06
Студия на 30 кв м сделанная под стиль лофт. 07
Студия на 30 кв м сделанная под стиль лофт. 08
Студия на 30 кв м сделанная под стиль лофт. 09