Милый дом

Море полезных идей для квартиры и дома

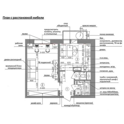
Еще один дизайн проект для однокомнатной квартиры.

21.04.2022 в 14:46

В том случае, если вы хотите оформить свою квартиру в современном стиле без всяких заморочек, то что то можно почерпнуть из данного проекта
Еще один дизайн проект для однокомнатной квартиры..

Еще один дизайн проект для однокомнатной квартиры. 01
Еще один дизайн проект для однокомнатной квартиры. 02
Еще один дизайн проект для однокомнатной квартиры. 03
Еще один дизайн проект для однокомнатной квартиры. 04
Еще один дизайн проект для однокомнатной квартиры. 05
Еще один дизайн проект для однокомнатной квартиры. 06
Еще один дизайн проект для однокомнатной квартиры. 07
Еще один дизайн проект для однокомнатной квартиры. 08
Еще один дизайн проект для однокомнатной квартиры. 09