8 удачных способов зонирования в однушке. Зонирование однокомнатной квартиры (однушки и студии): классные примеры разделения комнаты на две зоны, спальню и гостиную
- 8 удачных способов зонирования в однушке. Зонирование однокомнатной квартиры (однушки и студии): классные примеры разделения комнаты на две зоны, спальню и гостиную
- Как переделать одну комнату в две. Готовые схемы проектов переделки однокомнатной квартиры в двухкомнатную разной площади
- Зонирование квартиры. Правила зонирования
- Перегородка в однушке. Как зонировать однокомнатную квартиру
- Зоны в однокомнатной квартире. Основные способы зонирования
- Комната с нишей зонирование. Особенности зонирования и планировки с нишей
- Отделение спальной зоны в однокомнатной квартире. Зонирование гостиной спальни в однокомнатной квартире
- Дизайн однокомнатной квартиры с перегородкой. Зонирование
8 удачных способов зонирования в однушке. Зонирование однокомнатной квартиры (однушки и студии): классные примеры разделения комнаты на две зоны, спальню и гостиную
Грамотное зонирование позволяет сделать из однокомнатной квартиры многофункциональное пространство. Оно одновременно может совмещать гостиную со спальней, детской комнатой или кабинетом.

Грамотная планировка позволит сделать пространство максимально полезным, при этом не перегрузить его мебелью.
Преимущества зонирования однокомнатной квартиры
К преимуществам зонирования относятся:
- Функциональность пространства. Для сна создается своя зона, для приема гостей своя, для работы третья. При этом помещение не перегружается и каждый метр используется эффективно;
- Экономия на услугах дизайнера. Придумать концепцию и стиль для однокомнатной квартиры довольно просто, поэтому в дополнительных услугах нет необходимости;
- Большое количество солнечного света. Поскольку при зонировании не используются капитальные перегородки, доступ к окну и естественному освещению не закрывается. Значит владельцу квартиры не придется ставить дополнительные осветительные приборы.
Недостатки зонирования однокомнатной квартиры
К минусам зонирования можно отнести:
- Визуальное уменьшение площади. Поскольку комната, поделенная на зоны будет обставлена плотно, может появиться ощущение маленького пространства;
- Сложности в оформлении нестандартных квартир. Например, если комната имеет вытянутую форму могут возникнуть трудности с установкой перегородок или подиума. В таком случае предпочтение лучше отдать зонированию при помощи цвета или света;

Перегруженность. Если у владельца квартиры очень много вещей, для их хранения понадобятся дополнительные шкафы и комоды, которые перегрузят пространство.

Правила зонирования 1-к квартиры
При зонировании однокомнатной квартиры следует учитывать не только назначение требуемых зон, но и возраст и вкусы всех жильцов.

Поэтому существует ряд правил, на которые нужно опираться при составлении дизайн-проекта.
- Чтобы комната не казалось маленькой, в отделке предпочтение стоит отдать светлым тонам. Натяжной потолок, мебель и пол лучше выбрать глянцевыми. Тогда свет будет отражаться на всех поверхностях и зрительно увеличивать пространство.
- Рекомендуется использовать как можно больше зеркал. Они также делают комнату шире.
- Если в квартире низкие потолки, лучше выбирать обои с вертикальным рисунком.
- Для узкого помещения рисунок на обоях должен быть горизонтальным.
- Дополнительный объем создадут световые акценты. Освещение должно быть тщательно спланировано.
- В небольшую квартиру лучше приобретать мебель-трансформер из современных легких материалов.
- Большие шкафы будут загромождать пространство. Для хранения предпочтительнее использовать комоды.
- Если используются полки, они должны быть открытыми. Дверцы будут визуально перегружать пространство. Как альтернативу можно использовать зеркальные двери.
- Если в квартире есть балкон или лоджия, их нужно задействовать. На утепленной лоджии можно сделать рабочий кабинет или зону отдыха.
- В маленькой квартире можно применить вертикальное зонирование, разместив кровать или детский уголок под потолком.
Как переделать одну комнату в две. Готовые схемы проектов переделки однокомнатной квартиры в двухкомнатную разной площади
При перепланировке в 38 кв м учитывается все до мелочей. Для такой квартиры лучше всего подойдут такие стили, как хай-тек, скандинавский или кантри. При использовании одного из стилей в квартире будет уютно и просторно. Важно заранее все распланировать, как из однушки сделать двушку и постепенно начать перестройку. Главное, выбрать подходящий вариант и тем самым можно преобразить свою жилплощадь.

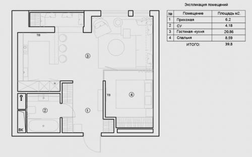
Спальная зона выделена в небольшую, но отдельную комнату. Большая часть пространства досталась кухне-гостиной, в которой раскладной диван служит дополнительным местом для сна
При 40 кв м комнаты могут быть открытыми, что придаст квартире неповторимый вид. При перепланировке в любой интерьер можно внести “изюминку” и тогда все будет смотреться изящно и красиво. Каждому хозяину квартиры можно создать индивидуальный проект и решить как из однушки сделать двушку 40 кв. Разграничивая помещения в квартире нужно сделать так, что все было компактно расставлено.

Приватное место для ночного отдыха размещено за стеклянной перегородкой, что позволило сохранить в спальне естественное освещение
При 43 кв м будет уютно, если разграничить основную комнату перегородкой. У тех, у кого есть дети сделать для них игровую комнату. Если владелец проживает один, то ему можно создать уютное офисное помещение. Все гармонично сочетаться в соответствие с установленными правилами.

Комната с двумя окнами разделена на спальную и гостиную зоны, последняя отделена от кухни барной стойкой
При 45 кв м в одной комнате можно установить кровать и диван без потери основного стиля. Вторая половина может быть занята кухней в американском стиле. Здесь можно все разграничить так, чтобы уместились:
- напольные вешалки;
- небольшие шкафчики;
- напольный торшер;
- столик;
- диван и т.д.

Благодаря перепланировки удалось организовать просторную кухню-гостиную и уютную спальную зону с небольшим гардеробом
При 50 кв м может получиться в одной половине уютная спальня, а в другой отдельный уголок отдыха. В качестве перегородки можно поставить прозрачные. Это придаст помещению современный, презентабельный вид. В квартире может быть объединена кухня с гостиной и отдельная спальня. Все это может быть удобным вариантом для семейной пары.

Функциональный интерьер с достаточно большой спальной комнатой, кухне-гостиной и рабочим кабинетом на утепленной лоджии
При перепланировке 55 кв м можно сделать интерьер в швейцарском стиле, использовав светлые оттенки. Интерьер лучше не перегружать лишними деталями, а повесить украшения на стены и потолок. Если даже дизайн простой, то интерьер может получиться стильный и современный.

Зонирование квартиры. Правила зонирования

Чтобы интерьер выглядел гармонично, а жильцам было удобно, при зонировании следуют этим правилам:
✓ Выбирают стиль и цветовую гамму, которые используют везде. Это «собирает» интерьер.
✓ Оставляют место для передвижения. В идеале проходы между мебелью должны быть не менее 70 см. Если покупают шкаф с распашными дверцами, учитывают их ширину.
✓ Хранение организуют в каждой зоне: полки над рабочим столом, тумбочки у кровати, стеллаж или комод в игровой зоне для ребенка. Так всё будет под рукой.
✓ В каждой зоне выделяют и украшают визуальный центр. Визуальный центр — это место, куда человек чаще всего смотрит. Например, в гостиной ставят интересную тумбу под телевизор, в спальне над кроватью вешают картину, а в рабочей зоне над столом закрепляют полки или пробковую доску.
✓ Учитывают форму помещения. Длинную комнату не делят на зоны вдоль, иначе она будет выглядеть, как вагон. В помещениях с низкими потолками редко делают второй уровень или опускают потолок. А в комнатах с несколькими окнами зоны располагают, ориентируясь на них.
✓ Комбинируют зоны, если площадь не позволяет их разделить. Вместо дивана и кровати заказывают мебель-трансформер, а рабочий стол используют для нанесения макияжа. Зато комната не выглядит захламленной.
Чтобы распределить зоны, составляют план. Для этого нужно замерить помещение, начертить его на бумаге и «расставить» мебель — нарисовать ее внутри комнаты, соблюдая масштаб. Если в квартире много свободного места, вооружитесь малярным скотчем и рулеткой и разметьте с их помощью будущую обстановку прямо на полу.
Если не уверены в своих силах, обратитесь к дизайнеру: он начертит план расстановки мебели и поможет с внешним оформлением.
Перегородка в однушке. Как зонировать однокомнатную квартиру
Зонирование — один из популярных дизайнерских приемов для создания разных функциональных зон. Своего рода палочка-выручалочка, приходящая на помощь владельцам небольших квартир. Если нужно зонировать одну комнату для семьи из трёх человек, на помощь придут реальные фото интерьеров с примерами.
Итак, какие существуют способы зонирования пространства в однокомнатной квартире.
Ширма
Изначально ширмы использовались для барышень, дабы те могли переодеться, спрятавшись от посторонних глаз. Затем этот элемент интерьера был надолго забыт (наверное, виной всему эмансипация). А ведь, ширма является самым простым вариантом перегородки, мобильным и практичным.
Если нет желания или возможности возводить стационарные перегородки, и при этом хочется простора, ширма идеально подойдёт для разделения комнаты на две зоны. Подобрав ширму по стилю, ее можно в любой момент убрать, сделав пространство комнаты единым.


Шторы
Еще один вариант зонирование открытого пространства однокомнатной квартиры. Так же, как и ширму, шторы можно закрыть в любой момент, создав уютную зону для отдыха и релакса.
Будет ли это легкая полупрозрачная занавеска или плотная портьера — зависит от возраста и предпочтений проживающих. Если малыш ещё совсем маленький, то его кроватку можно поставить за воздушной занавеской, которая придаст помещению легкости. Ну а при наличии подросшего ребёнка для разделения стоит выбирать все же портьеры из плотного материала.
В любом случае отдавайте предпочтение светлым оттенкам текстиля.

Мебель
Расположение мебели вдоль стен — популярное решение у наших жителей. А вот дизайнеры рекомендуют для разделения комнаты ставить массивные шкафы и стеллажи перпендикулярно стене.
Чаще всего для зонирование используют стеллажи со сквозными полками, которые можно заполнить книгами или ящиками для хранения, декорированными под стиль всего помещения.

Зоны в однокомнатной квартире. Основные способы зонирования
Владельцы однокомнатных квартир могут гордиться своим жильем, так как открытое пространство, наподобие квартир-студий, сегодня пользуется огромной популярностью. В них количество перегородок сведено к минимуму, в то время как акцент делается на просторе и свободе.
Но чтобы гармонично организовать интерьер, необходимо прибегнуть к зонированию. Это своеобразная волшебная палочка в мире дизайна, которая позволяет разделить помещение на видимые жилые зоны, при сохранении его функциональности. Для этого можно использовать все, что угодно: от ткани до мебели.
Ширмы
Традиционно за ширмами прятались дамы, чтобы сменить наряд и сохранить достоинство. Долгое время этот элемент был забыт - то ли потому, что даже в самой маленькой квартире можно найти место для переодеваний, то ли из-за изменчивости нравов. А зря, ведь это самый простой вариант перегородки.
Ширмы идеально подходят для тех случаев, когда нужно разделить пространство на две площади. При этом они мобильные, не требуют сложной установки, не занимают много места в собранном виде. Можно приобрести изделия, которые впишутся в любую стилистику, скроют от посторонних глаз часть помещения или создадут легкие очертания, украсив интерьер.


Шторы и занавески
Чтобы избежать четкого деления комнаты на зоны, можно использовать занавески. Они лучше всего подходят для ограждения спальни, создавая внутри интимную, уютную обстановку, способствующую крепкому сну.
Впрочем, эффект зависит от материала. Например, легкий тюль лишь визуально отделит область от остальной части помещения, зато подарит ему ощущение воздушности. Более массивные шторы отлично справятся с задачей зонирования, но для небольших пространств лучше отдать предпочтение текстилю светлых оттенков.
Установить штору-перегородку можно на обычный карниз внутри комнаты или создать конструкцию по типу держателей для балдахинов.


Перегородки из гипсокартона
Визуально зонировать однокомнатную квартиру можно и с помощью гипсокартонных перегородок. Их проблематично убрать в случае необходимости, как, например, мобильную ширму, зато по виду не отличишь от капитальной стены.
Конструкция из гипсокартона дешевая, легкая, не вызовет сложностей при монтаже и обладает хорошей звукоизоляцией. Она может быть ровной, округлой, арочной, помогая создать уникальный дизайн. В зависимости от потребностей пространства, ее делают ярким акцентом в интерьере или незаметной частью стены, которая в любом случае отлично справится с миссией зонирования.


Стеллажи и шкафы
Мы привыкли ставить книжные шкафы и стеллажи вдоль стены, «забирая» тем самым огромную часть комнаты. Чтобы сэкономить пространство и разделить его на две зоны, достаточно поставить такую мебель перпендикулярно стене.
Для этого больше подойдут шкафы со сквозными полками, но в случае с закрытой конструкцией - заднюю сторону можно сделать зеркальной или использовать в качестве грифельной доски, покрыв специальной краской. Предметы, соединяющие в себе сразу несколько функций - современное решение не только для маленьких квартир, но также и для просторных помещений.


Подиумы
Небольшой подиум - еще один отличный способ зонирования однокомнатной квартиры. Обладатели высоких потолков могут разместить на нем гостиную, столовую или кабинет. А вот с низкими потолками можно позволить себе разве что спальню, которая предполагает минимальное передвижение.
Подобная возвышенность может послужить дополнительным местом для хранения вещей, благодаря выдвижным ящикам. Для очень высоких подиумов рекомендуется соорудить ступеньки. Плюс подиумов в том, что они не занимают лишнее место и помогают выделить какую-то зону.



Раздвижные перегородки
Созданные по принципу раздвижных дверей такие перегородки позволяют полностью отделить область или сделать ее открытой. Современные изделия в открытом виде занимают минимум пространства, а благодаря разным материалам, помогают создавать нужную атмосферу.
Например, если в образовавшейся зоне нет окон, лучше выбрать полупрозрачную поверхность, которая обеспечивает приватность, но пропускает немного света. Идеально такое решение впишется в японский стиль или минимализм.


Комната с нишей зонирование. Особенности зонирования и планировки с нишей
В традиционной «однушке» особо остро стоит вопрос грамотного зонирования площади. Но планировка единственного помещения с нишей даёт много преимуществ. Её конструкция уникальна: получается что-то среднее между открытым и замкнутым пространством. Это сразу притягивает взор и создаёт уютную атмосферу. Если в “ однушке ” ниши нет ее можно обустроить иначе.
Но стоит также упомянуть о небольшом минусе обустройства ниши. О вкусах ведь не спорят, поэтому кому-то может показаться, что такая планировка ограничивает свободу перемещения по квартире. К тому же ниша диктует определенное расположение мебели, и внезапное желание что-то изменить, переставить в квартире, может нарушить целостную композицию. Вот почему так важно тщательно продумать наиболее оптимальный способ размещения зон, мебели и создать нескучный интерьер, который не надоест в скором времени. Вообще зонирование однокомнатной квартиры нужно продумывать очень детально. В таком случае можно прибегнуть в онлайн-программам для проектирования своей квартиры. Это сэкономит время и даст больше вариантов для продумывания своего будущего жилища.

Существуют определённые правила для дизайна помещений с нишами:
- Нишу лучше оформить в едином стиле либо в одной цветовой гамме с общим пространством.
- В этой зоне должно быть хорошо продуманное искусственное освещение и отделка в светлых тонах, особенно в случае миниатюрного «закутка».
- Площадь квартиры необходимо разграничить на функциональные зоны.
- Всё пространство с нишей должно смотреться органично, как целостная композиция с функциональными зонами.
- Дизайн интерьера обусловлен формой ниши и непосредственно влияет на выбор атрибутов мебели.

Отделение спальной зоны в однокомнатной квартире. Зонирование гостиной спальни в однокомнатной квартире
Зная основные правила зонирования помещений, можно эргономично вместить все необходимое. Ниже представлены основные методы и примеры.
Зонирование с помощью перегородок
Несмотря на то, что однушки чаще всего не могут похвастаться большим количеством квадратных метров, решить проблему с размещением всего необходимого вполне реально.

В однокомнатной квартире без разграничения пространства чаще всего не обойтись.
Способы:
- Ширмы и перегородки – наиболее «чистый вариант» для разделения пространства на две части. В крупных сетях магазинов можно найти изделия любых текстур, узоров и оттенков. Главное, чтобы выбранная ширма и перегородка обладала мобильностью и имела практичную составляющую.
- Этажерки – решат сразу несколько проблем, которые связаны с недостатком места для хранения и зонированием.
С готовыми вариантами можно ознакомиться на фото. Специалисты собрали наиболее практичные решения для разделения пространства небольших спальных помещений.
Правильное распределение зон в маленькой квартире
Перед проведением ремонтных процедур важно заранее подготовить проект, который поможет эргономично занять даже драгоценные сантиметры. Владельцы должны помнить, когда речь идет об ограниченном пространстве – точность превыше всего. С примером разделения на спальную, гостиную, кладовые зоны можно ознакомиться на фото.

Спальное место можно отгородить шторой или ширмой.
Как поделить рационально пространство
Все зависит от того, живет ли человек один или с небольшой семьей. Одинокие владельцы однушек могут спроектировать план на основании только собственных предпочтений. Однако если в квартире будет жить несколько человек, то для каждого придется выделить отдельное пространство. Наличие своего места играет важную роль.

Хотя в квартирах уделяется много внимания открытому пространству, стоит иметь отдельный спальный уголок — тот, который служит ночному отдыху и где нет беспорядка.
Разделение спальни элементами декора
В качестве разделителя может быть как визуальное оформление, с использованием текстур, оттенков, так и сам декор. Например, уединиться помогут горшки с высокими растениями или же дизайнерские шторы.

Чаще всего кровати снабжены удобными полочками, выдвижными ящиками, что дает возможность разместить постельные принадлежности и другие вещи.
Дизайн однокомнатной квартиры с перегородкой. Зонирование
Существует множество способов разделить пространство визуально на разные зоны, и каждый из них имеет плюсы и минусы.
Перегородка из гипсокартона идеально подходит для зонирования просторной комнаты, позволяет правильно разбить помещение на зоны. Визуально она не будет отличаться от бетонной капитальной стены. При этом можно получить две полноценные раздельные комнаты. Монтажные работы не отнимут много сил и средств, при этом фальшстена будет обладать отличной звукоизоляцией.
Перегородка может быть ровной сплошной, с арочным или округлым проемом, уникальным дизайном. Все зависит от пожеланий: перегородку можно сделать незаметной или яркой, броской.
Установка перегородки не требует согласования перепланировки, что является неоспоримым плюсом. Среди современных дизайнеров такой прием считается устаревшим, хотя он не теряет своей популярности. Нехватку естественного освещения в более темной части помещения можно компенсировать искусственным светом.
Важно помнить, что такую перегородку проблематично демонтировать в случае необходимости, для этого придется проводить весь комплекс ремонтных работ в комнате.
Самый простой тип перегородки – ширма , при помощи которой без труда можно разделить пространство на две части. Она не требует сложной установки, занимает минимум пространства и позволяет в любое время без особых усилий сделать перестановку. Материал ширмы может быть разным (бамбук, дерево, металлическая сетка, текстиль и другие варианты). Можно подобрать стильную и лаконичную модель, которая дополнит интерьер комнаты.
Раздвижные перегородки , установленные по принципу шкафа-купе, позволяют полностью скрыть отдельную зону. Они могут иметь от двух до шести дверей. Если отделяемое пространство не имеет окон, лучше выбирать стеклянную перегородку с матовым покрытием. Так можно создать приватную обстановку и наполнить пространство светом.
Стеклянная перегородка от пола до потолка называется французским окном. Расположенная между кухней и комнатой, она сохранит легкость в интерьере и сократит количество запахов в комнате во время приготовления пищи.
Отлично смотрятся перегородки, выполненные в японском стиле, когда одно полотно «накладывается» на другое.
Романтическую атмосферу в комнате создадут шторы , с их помощью можно скрыть от посторонних глаз часть комнаты, создать легкие очертания и украсить интерьер. Это самый простой и доступный вариант, если позволяет выбранный интерьерный стиль.
Шторами или балдахином можно создать интимную обстановку, оградить зону спальни и создать все условия для комфортного отдыха. При этом лучше выбирать плотные и светлые материалы. Хотя легкий полупрозрачный тюль также неплохо справится с задачей, но не создаст уединенную обстановку.
Отлично обыграть зонирование помогут бамбуковые занавески или шторы-нити: главное, чтобы они гармонично вписывались в общую стилистику квартиры.
Ниши и стеллажи отлично подходят для зонирования помещений, при этом становятся дополнительным местом хранения книг, сувениров и других ценных вещиц. С помощью вертикальных полочек можно сэкономить пространство и поделить помещение, не перегрузив его. Для этого идеально подходят шкафы со сквозными полками, стеллажи с зеркальной стенкой.
Особого внимания заслуживают мобильные подвижные стеллажи на колесиках, которые можно перемещать в комнате. При помощи такой конструкции можно скрыть рабочую зону или спальню.
Наиболее современный и необычный прием разделить комнату – приподнять одну из зон подиумом . Такой способ отлично подходит, если необходимо выделить зону для гостиной и спальни, спальни и кабинета. Дополнительную возвышенность можно оборудовать вместительными выдвижными ящиками и использовать в качестве вместительной системы хранения. Каждая функциональная зона должна быть хорошо освещена. Искусственный и естественный свет может выполнять роль ограждающей конструкции.


Зонировать помещение можно визуально.
Для этого можно выбирать разные по цвету и фактуре настенные покрытия для каждой зоны. Стены спальни лучше выполнить в пастельных оттенках, для гостиной и кухни стоит подобрать более яркие и насыщенные тона. Для детской подойдет спокойная, но не тусклая цветовая палитра.
Важно не забывать, что выбранные цвета должны сочетаться и дополнять друг друга в интерьере. Лучше, если оттенки будут относиться к одной палитре.