Милый дом
Море полезных идей для квартиры и дома
Main menu
Главная
Новости
Статьи
Главная
»
Статьи
»
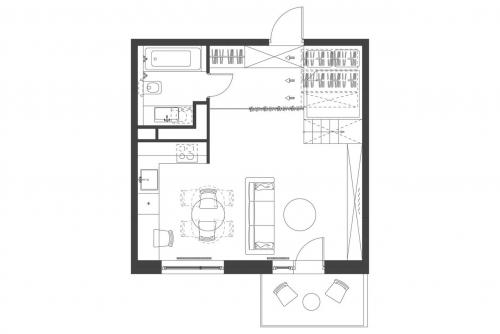
Квартира площадью 35 кв. метров
Квартира площадью 35 кв. метров
11.03.2020 в 21:46
Статьи
Понравилось? Поделитесь с друзьями!
⇦
Маленькая, но супер удобная кухонька 4, 5 кв.
⇨
Квартира в спокойных тонах