План квартиры 3 х комнатной квартиры. С чего начать
- План квартиры 3 х комнатной квартиры. С чего начать
- Удачные планировки 3 комнатных квартир. Дизайн 3-х комнатной квартиры в панельном доме
- План 3-х комнатной квартиры в панельном доме. Типовые планировки квартир Чтв, Ап. 2011
- Дизайн 3 х комнатной квартиры 60 м2. Дизайн квартиры 60 кв. м. Стили дизайнов и их применение.
- Перепланировка 3 комнатной квартиры 60м2. Планируйте с осторожностью
- Планировка 3 х комнатной квартиры брежневка. Серия дома II-49
- Перепланировка 3-х комнатной квартиры в панельном доме чешка. Возможна ли перепланировка 3-х комнатной чешки?
- Видео дизайн интерьера 3-х комнатной квартиры
План квартиры 3 х комнатной квартиры. С чего начать
Разумеется, прежде чем начинать чертить чертежи самостоятельно или прибегать к помощи специалистов, стоит определиться с тем, что же вы хотите получить в результате.
Расширить кухню? Изменить внешний вид коридора? Получить дополнительную спальню, которую можно было бы выделить подрастающему ребёнку или пожилым родителям, решившим переехать к вам? Тщательно продумайте, а нужно ли вам вообще начинать ремонт в своей квартире? Ведь начав, бросить дело на полпути уже не получится. И работа может растянуться на многие недели и даже месяцы; это будет действительно тяжелое испытание и для ваших нервов, и для семейного бюджета.

Когда решение окончательно принято, можно начинать составлять план. Конечно, если вы можете себе это позволить, то лучше доверить работу специалистам. Ведь зачастую перепланировка квартиры сопровождается переносом или даже сносом стен.

первоначальный план 3-комнатной квартиры

вариант перепланировки трехкомнатной квартиры со сносом стен коридора
Только опытные специалисты смогут учесть все нюансы, гарантируя, что в результате вы получите совершенно безопасное и уютное жилье. Они учтут, какие стены в квартире являются несущими (а значит, с ними стоит работать только в крайнем случае), а какие – самонесущие. Учтут и материал, из которого построен дом.
Разумеется, у них есть планы различных домов со всеми характеристиками: толщиной стен, постоянными нагрузками, несущими конструкциями и так далее. Поэтому они смогут выполнить всю работу максимально качественно, независимо от того, в каком доме находится ваша квартира – 83 серии или 137 серии.
планировка трехкомнатной квартиры в домах 137 серии
Перенос или снос капитальных стен – очень важный процесс. И выполнять его можно только после получения разрешения в соответствующих органах.

Эту работу точно лучше доверить специалистам. Да, придется заплатить за их помощь. Зато в результате нужные документы будут собраны за считанные дни. В противном случае процесс их сбора вполне может затянуться на несколько недель или даже месяцев. Служащие контор будут отправлять вас из одного кабинета в другой, требовать всё новые и новые справки и разрешения. Тем, кто проходил эту процедуру, она вспоминается только в страшных снах.
Вы можете сами выбрать подходящий для вас проект:
- Стандартный проект. Он имеет относительно невысокую цену. Но не всегда может полностью удовлетворить требования владельца квартиры, так как был разработан по желанию другого заказчика.
- Уникальный проект. Обойдется вам довольно дорого, зато здесь вы будете вольны в своих фантазиях. Ваша квартира может быть преображена до полной неузнаваемости. Стандартная 3-хкомнатная квартира в панельной пятиэтажке может превратиться в роскошные апартаменты, отвечающие всем вашим требованиям.
Какой вариант выбрать? Решайте сами!
Как правильно снести стену в квартире.
Удачные планировки 3 комнатных квартир. Дизайн 3-х комнатной квартиры в панельном доме
Жилье в панельных домах отличается не только небольшой площадью, но и рядом ограничений, которые предстоит учитывать во время ремонта. Главное из них – невозможность масштабной перепланировки, поскольку стены и перекрытия монолитны и демонтировать или существенно их изменить очень сложно.
Высота потолков и площадь функциональных помещений (прежде всего кухни и санузла) также диктуют условия будущего дизайна. Увеличить площадь кухни возможно за счет коридора, ведущего к ней, и кладовой. Для хранения полезных или лишних на кухне предметов лучше выделить отдельную нишу в кухонной зоне.

Убрав, казалось бы, небольшую кладовую, вы получите дополнительные сантиметры площади, которых раньше не хватало для размещения более удобного мягкого уголка, шкафчиков или широкого холодильника.

Если кладовая находится в одной из жилых комнат, то оборудовать в ней гардеробную или расположить вместительный встроенный шкаф будет отличной идеей. Так площадь комнаты не пострадает, а спальня станет более удобной и практичной.

Дизайн от Екатерины Нечаевой и Ирины Маркман
Если у вас подрастает несколько детей, каждому из которых необходимо создать собственное личное пространство, а комната для этого одна, стоит использовать полную или частичную перегородку для разделения комнаты на две зоны. Аналогичный прием можно использовать для разделения комнаты на спальню и кабинет или рабочую зону. Для увеличения площади, можно присоединить балкон или лоджию к жилой комнате, оформив там домашний офис или дополнительную зону для отдыха.

Интерьер от студии Ariana Ahmad Interior Design
Проект квартиры № 1 (100 кв. м)
Трехкомнатная квартира принадлежит молодой паре с ребенком.








План 3-х комнатной квартиры в панельном доме. Типовые планировки квартир Чтв, Ап. 2011
Описание и типовые планировки квартир. От "сталинок" до современных.
| Сталинки 1954-1961 | 1955-1960 г.г. | 1955-1960 г.г. | 1954-1961 г.г. | |||
| 2-, 3-этажные кирпичные дома
| 4-, 5-этажные кирпичные дома | 4-этажные кирпичные дома | ||||
| Хрущевки 1958-1967 | 1960-1967 г.г. | 1963-1967 г.г. | 1958-1964 г.г. | 1959-1960 г.г. | ||
| 5-этажные панельные дома | 5-этажные панельные дома | 4-,5-этажные кирпичные дома | 4-,5-этажные блочные дома | |||
| 1964-1967 г.г. | 1964-1967 г.г. | |||||
| 5-этажные кирпичные дома | 5-этажные блочные дома | |||||
| Брежневки 1966-1975 | 1966-1973 г.г. | 1966-1970 г.г. | 1967-1977 г.г. | 1966-1967 г.г. | ||
| 5-этажные панельные дома | 5-этажные панельные дома | 5-этажные кирпичные дома | 5-этажные панельные дома (для малосемейных) | |||
| 1967-1970 г.г. | ||||||
| 5-этажные панельные дома (блок-комнаты) | ||||||
| Стандартные 1968-1999 | 1970-1976 г.г. | 1968-1977 г.г | 1970-1977 г.г. | |||
| 9-этажные панельные дома | 9-этажные панельные дома | 9-этажные кирпичные дома | 5-этажные панельные дома (блок-комнаты) | |||
| 1977-1998 г.г. | 1973-1975 г.г. | 1972-1977 г.г. | ||||
| 9-этажные панельные дома (для малосемейных) | 9-этажные панельные дома (для малосемейных) | 9-этажные панельные дома (блок-комнаты) | ||||
| 1973-1985 г.г. | ||||||
| 12-этажные панельные дома | ||||||
| Улучшенные | 1976-1983 г.г. | 1977-1985 г.г. | 1976-1994 г.г. | 1977-1996 г.г. | ||
| 16-этажные панельные дома | 9-этажные панельные дома | 9-этажные панельные дома | 9-этажные панельные дома | |||
| 9-этажные панельные дома | 12-этажные панельные дома | |||||
| 1983-1998 г.г. | ||||||
Дизайн 3 х комнатной квартиры 60 м2. Дизайн квартиры 60 кв. м. Стили дизайнов и их применение.
На сегодняшний день стилей интерьера много. Поэтому подобрать дизайн квартиры 60 кв. метров, будет не просто. Этому вопросу необходимо уделить достаточное количество времени. В первую очередь стоит прислушаться к своему мнению, выбрать предпочтения и пожелания в дизайне, а после обратиться к профессиональным дизайнерам, которые занимаются разработкой дизайнов интерьера.
Дизайн квартиры 60 кв. м можно разделить на три основных вида, так как вообще стилей достаточно много и все их описать понадобится достаточно много времени. Итак, стили в дизайне интерьеров можно разделить на исторический стиль, этнический стиль и современный стиль.
К историческому стилю относятся такие виды интерьеров, как Модерн, Ренессанс, Классицизм, Барокко, Романский стиль и много других вариантов стилей. Исторический стиль смело можно называть «классическим», как в принципе это многие и делают. Классические стили отличаются, как правило, богатым и роскошным интерьером, натуральностью материалов дорогой мебелью.

Этнический стиль. Исходя из самого названия, уже можно понять, что речь идёт о видах интерьера, которые сопоставляются с той или иной страной или культурой. Наиболее популярные этнические стили это Прованс, Скандинавский стиль, Английский стиль, Японский стиль, Египетский стиль. Каждый из этих стилей интерьера был сформирован согласно предпочтениям и культуре определенного общества в конкретном регионе. Этнический стиль можно смело применять в любой дизайн квартиры 60 кв. м.

К современным стилям относятся минимализм, лофт, кантри, постмодернизм, гранж и много других интересных вариантов стилей. Особенность этих стилей заключается в смелости решений, которые они предлагают.
Перепланировка 3 комнатной квартиры 60м2. Планируйте с осторожностью
Наиболее частой проблемой «хрущёвок» являются очень маленькие санузлы, потому при тотальном ремонте хозяева зачастую планируют расширение этих зон. Однако при этом не стоит забывать о санитарных нормах, которые гласят, что расширять туалет и ванную нельзя за счёт пространства кухни и жилых комнат.
Внимание! Увеличение этой зоны должно производиться лишь за счёт коридора, кладовки и других свободных пространств.

Увеличить площадь туалета и ванной можно только за счет коридора
Хозяйкам квартир в «хрущёвках» особое неудобство доставляет маленькая площадь кухни. Поэтому расширение её площади часто выходит на первый план при реализации масштабного ремонта.

Чаще всего при перепланировке встает вопрос увеличения кухонного пространства
И в этом вопросе вас могут ждать «подводные камни», ведь в большинстве квартир предусмотрена газопроводная система, что не позволит расширить пространство кухни за счёт санузла или жилых комнат. Чтобы реализовать свои идеи, можно пойти следующими путями:
- заменить газовую плиту электрической;
- совершить отделение кухонной зоны от жилой при помощи раздвижной перегородки;
- сократить площадь коридора либо кладовки.

Объединение кухни с жилой комнатой
Перепланировка помещений 3-комнатной «хрущёвки» даёт гораздо больше простора, нежели квартиры с меньшим количеством жилого пространства. Чтобы совершить удачную перепланировку «хрущёвки» 3 на комнаты, ознакомьтесь с фото готовых проектов.
Планировка 3 х комнатной квартиры брежневка. Серия дома II-49
Брежневки», в основной своей массе имеют этажность 9 — 17 этажей, в то время, видимо, все устремления были поближе к космосу, в результате появилось много серий домов в виде одно-двух подъездных «башен». Крыша у домов этой планировки плоская, водоотвод, обычно, внутренний. Планировка квартир в панельных «брежневках» имеет подоконники шириной до 30 см., а кирпичная до 45см. И самое серьезное из этого, это маленькая площадь кухни. Всё-таки семь кв м это не подходящий показатель, об этом не мечтают. Поэтому часто даже граждане, в чьем распоряжении находится прекрасная четырехкомнатная квартира, серьезно задаются вопросом – можно ли все исправить?
На лестничной площадке «брежневки» располагаются 3-4 квартиры. Впервые лифты и мусоропроводы в подъездах появились именно в таких домах. Еще одним плюсом панельных домов стало наличие двух лифтов – пассажирского и грузового, при этом их механизмы находятся под крышей, а лестницы и мусоропровод максимально отдалены от квартир, что значительно сокращает слышимость. В «брежневских» домах появились изолированные комнаты в двух-, трех- и даже четырехкомнатных квартирах, комнаты которых выходят на разные стороны здания. В прихожих предусмотрено место для встроенного шкафа, совмещенные санузлы допускаются только в 1-комнатных квартирах. Название хронологически не совсем правильное, поскольку возводились такие дома и во времена строительства «хрущевок». Итак, это панельные дома, как правило, пятиэтажные, с плоской крышей, с виду похожие на перевернутые коробки из-под спичек. Такими домами, за редким исключением, изобилует каждый район нашего города. Фактически использована планировка хрущевки – остались маленькие кухни и прихожие.
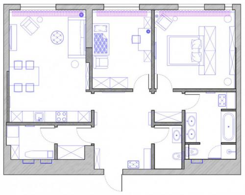
Перепланировка 3-х комнатной квартиры в панельном доме чешка. Возможна ли перепланировка 3-х комнатной чешки?
Перед тем, как осуществлять перепланировку чешки в панельном или кирпичном доме, необходимо обратиться к специалисту из БТИ. Он подскажет, какие стены можно сносить, а какие являются несущими и не могут быть частично или полностью изменены. Грамотная перепланировка чешки позволяет максимально эффективно использовать полезную площадь жилья, а также визуально делает квартиру больше и просторнее. Рассмотрим основные варианты перепланировки 3-х комнатной квартиры, которая построена по чешскому проекту.
Совмещение кухни и гостиной
Многие хозяйки жалуются на неудобство маленькой кухни – особенно это актуально для семей, где приготовлением пищи занимается несколько человек одновременно. Чтобы решить эту проблему, можно разрушить стену между кухней и ближайшей комнатой. Таким образом, вы получаете столовую или гостиную, в которой есть отдельная зона для комфортного приготовления пищи. Визуально разделить большое помещение на две функциональные зоны можно с помощью цвета коврового покрытия, ламината или обоев.
Совмещение балкона с другой комнатой
Часто в харьковских девятиэтажках увеличивают пространство комнаты за счет балкона или лоджии. Утепление балкона, а также разрушение совмещенной с комнатой стены позволяет сделать комнату просторнее. К примеру, в спальне свободный «пятачок» может превратиться в комфортное место для отдыха – для этого можно поставить небольшой диван или уютное кресло с журнальным столиком. Совместив балкон с кухней, вы сможете увеличить небольшую площадь комнаты, а также сделать ее светлее и просторнее.
Совмещение двух комнат
Перепланировка трехкомнатной чешки может включать в себя разрушение стен между двумя комнатами. Таким образом, вы можете получить просторную гостиную, которая также может выполнять функции столовой. Если для вас актуальна перепланировка чешки с двумя спальнями, вы можете сделать большую комнату с двумя функциональными зонами. Это может быть спальня и гостиная или спальня, совмещенная с рабочим кабинетом. Таким образом, вы получаете большую просторную комнату вместо двух компактных.