Простой ремонт в однокомнатной квартире: DIY-вариант
- Простой ремонт в однокомнатной квартире: DIY-вариант
- Связанные вопросы и ответы
- Что нужно знать перед началом ремонта в однокомнатной квартире без дизайнера
- Как выбрать цветовую палитру для ремонта в однокомнатной квартире
- Как создать оптимальную планировку в однокомнатной квартире
- Какие материалы лучше использовать для ремонта в однокомнатной квартире
- Как выбрать подходящие мебель и аксессуары для однокомнатной квартиры
- Как сделать ремонт в однокомнатной квартире на бюджет
- Какие особенности нужно учитывать при ремонте в однокомнатной квартире
Простой ремонт в однокомнатной квартире: DIY-вариант
Я хотел сделать ремонт дешево и красиво, а значит, сначала мне нужно было понять, как будет выглядеть мой дом. Для создания проекта не обязательно быть дизайнером, достаточно прокачать насмотренность.
Примерно год я собирал красивые интерьеры в сети. Я сохранил триста пятьдесят картинок и скриншотов из фильмов, Google и Pinterest. В какой-то момент я понял, что, даже смотря фильм, я оцениваю убранство комнат на экране.
Все сохраненные изображения я не просто смотрел, а разбирал: как сделан интерьер, из каких материалов, что за цветовые и композиционные решения использованы.

Связанные вопросы и ответы:
Вопрос 1: Что необходимо сделать перед началом ремонта в однокомнатной квартире без дизайнера
Ответ: Перед началом ремонта необходимо разработать план работ и определиться с бюджетом. Следует также выбрать стиль и цветовую палитру, которые будут соответствовать вашему вкусу и потребностям. Не забывайте о необходимости провести замеры помещения, чтобы точно знать размеры и выбрать мебель и другие элементы интерьера, которые будут вписываться в пространство.
Вопрос 2: Как выбрать цветовую палитру для ремонта в однокомнатной квартире без дизайнера
Ответ: Выбор цветовой палитры зависит от вашего вкуса и предпочтений. Однако, следует учитывать размер помещения и количество естественного света. Если квартира маленькая и нет много света, лучше выбрать светлые тона, чтобы создать ощущение большего пространства. Если же квартира большая и светлая, можно смело экспериментировать с более насыщенными цветами.
Вопрос 3: Как выбрать мебель для однокомнатной квартиры без дизайнера
Ответ: Выбор мебели зависит от ваших потребностей и стиля интерьера. Важно выбирать мебель, которая будет соответствовать размерам помещения и не загромождать пространство. Также следует учитывать функциональность мебели и ее удобство. Если пространство ограничено, можно выбрать мебель-мультифункционал, которая будет выполнять несколько функций, например, кровать-диван или стол-лампа.
Вопрос 4: Как выбрать светильники для однокомнатной квартиры без дизайнера
Ответ: Выбор светильников зависит от стиля интерьера и ваших потребностей. Важно выбирать светильники, которые будут соответствовать общему дизайну и не выглядят слишком громоздкими или не вписываются в пространство. Также следует учитывать функциональность светильников и их освещенность. Если вам нужно много света, выбирайте светильники с высокой световой эффективностью.
Вопрос 5: Как выбрать ковры для однокомнатной квартиры без дизайнера
Ответ: Выбор ковров зависит от стиля интерьера и ваших потребностей. Важно выбирать ковры, которые будут соответствовать общему дизайну и не выглядят слишком громоздкими или не вписываются в пространство. Также следует учитывать функциональность ковров и их удобство. Если вам нужно много света, выбирайте ковры с высокой световой эффективностью.
Вопрос 6: Как сделать ремонт в однокомнатной квартире без дизайнера максимально эффективным
Ответ: Чтобы сделать ремонт максимально эффективным, важно планировать все работы и выбирать материалы и мебель, которые будут соответствовать вашим потребностям и бюджету. Также следует учитывать размеры помещения и количество естественного света, чтобы выбрать оптимальные решения для каждой части квартиры. Не забывайте о необходимости провести замеры помещения и выбирать мебель и другие элементы интерьера, которые будут вписываться в пространство.
Что нужно знать перед началом ремонта в однокомнатной квартире без дизайнера

Базовый дизайн-проект для небольшой квартиры стоит в среднем от 20 тыс. рублей
До начала ремонта в квартире важно понять, к какой конечной цели мы стремимся. Для этого нужно определиться: каким должен быть стиль интерьера, цвета, материалы для отделки полов, стен и потолков? Какую мебель, сантехнику и декоративные элементы использовать?
Дизайн-проект как раз и создает четкий образ будущего интерьера квартиры.
Помимо «картинки» дизайн-проект — это техническая документация и детальная инструкция для мастеров.
Техническая документация описывает:
- пошаговые этапы технических работ;
- черновые и чистовые материалы;
- размеры отступов для мебели;
- расположение розеток, сантехники, выключателей, вентиляционных решеток;
- схемы раскладки напольных покрытий в комнатах;
- организацию освещения и эргономики пространства.
«Когда делаете ремонт, нужно заранее посчитать, сколько материалов понадобится. Это поможет сэкономить деньги. Даже если вы опытны в ремонте, сложно угадать, сколько нужно купить плитки для кухни или ламината для комнат. Идеально иметь запас чистовых материалов — примерно плюс 10%. Больше не нужно, это лишняя трата денег».
Как выбрать цветовую палитру для ремонта в однокомнатной квартире
Виктор Войс
22320
Получить образец дизайн-проекта
Рассказываем, как выбрать цветовую гамму для интерьера малогабаритной квартиры.
Если вы хотите сделать вашу квартиру визуально более просторной, первое, с чего нужно начать, это выбор доминирующих оттенков. Считается, что небольшие пространства лучше всего оформлять в белых тонах, но это вовсе не обязательно: если вам кажется, что белые стены — слишком скучно и примитивно, обратите внимание на цвета из нашей подборки. А если, то специалист сам подберет нужные оттенки именно для вашего жилища.
Правила подбора цветов для оформления маленького помещения
Прежде чем переходить к списку подходящих цветов, предлагаем ознакомиться с правилами работы с цветовой гаммой для небольших квартир.
Используйте два-три цвета. При этом основной цвет должен быть базовым — светлым, и он может занимать до 60% интерьера. Второй цвет может быть оттенком базы, но он должен быть значительно ярче. А третий цвет послужит акцентом — он может найти отражение в деталях: полках, картинах, панно или небольших ковриках.
В небольших помещениях с низким потолком оформите стены при помощи нескольких оттенков базового цвета. Для того чтобы визуально приподнять потолок, нижняя часть стены должна быть более темной, а верхняя, соответственно, светлее.
Используйте любые оттенки белого в сочетании с умеренно яркими цветами, в том числе светло-желтым, светло-зеленым, приглушенным оранжевым, лиловым.
Не стоит оформлять маленькую квартиру в черно-белой, желто-синей или красно-зеленой цветовой гамме — такие комбинации смотрятся выигрышно только в просторных помещениях.
1. Темно-синий
Темные насыщенные оттенки могут быть нам на руку, когда речь идет об отделке стен в небольших помещениях. Например, темно-синие стены создают ощущение глубины, благодаря чему эта гостиная выглядит более просторной.
2. Темно-серый
Как и в случае с глубоким синим, темно-серый в сочетании с белыми акцентами способен визуально сделать комнату глубже. Серый весьма дружелюбен, он сочетается со всеми основными цветами, что открывает возможность для экспериментов.
Бежевый цвет — классическое решение для маленькой квартиры, поскольку он не относится ни к холодным, ни к теплым оттенкам. С его помощью можно создать спокойную обстановку и в то же время визуально увеличить пространство, например, при помощи комбинации с белыми акцентами.
4. Пыльный розовый
Пыльный розовый в интерьере маленькой квартиры применяется не первый год. Он отлично сочетается с насыщенными синими, черными, коричневыми акцентами, позволяя сделать пространство более объемным.
5. Желтый
Любой интерьер станет светлым, если добавить в него немного желтого. Для маленьких помещений желательно выбирать прохладные оттенки желтого, комбинировать его с белым, зеленым. Важно не переусердствовать: насыщенные желтые оттенки сделают интерьер перегруженным.
6. Светло-голубой
Рассчитайте точную стоимость ремонта на онлайн-калькуляторе
и бесплатно получите подробную смету на ремонт
РассчитатьСветло-голубые оттенки — идеальное решение для оформления маленьких помещений. Небесный цвет гармонично сочетается со всем цветовым спектром и применим в любой комнате: бледные оттенки голубого лучше сочетать с мягкими пастельными оттенками. Благодаря этому цвету помещение выглядит светлым и просторным, со спокойной атмосферой.
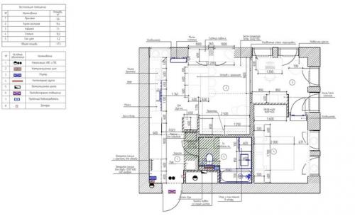
Как создать оптимальную планировку в однокомнатной квартире
Чтобы сделать имеющуюся жилплощадь максимально уютной, комфортной и функциональной, следует выполнить планировку однокомнатной квартиры. Создание проекта – серьезная работа, поэтому ее стоит доверить профессионалам, которые подберут оптимальный дизайн интерьера.
Чаще всего однокомнатная квартира небольшая, в ней одна жилая комната, кухня, а туалет совмещен с ванной. Но даже если у вас миниатюрное жилище, за счет правильной планировки получится создать уютное пространство, разделив его на функциональные зоны.

Планировка однокомнатной квартиры
То, насколько вам комфортно будет жить в квартире, зависит не от ее размера, а от правильной планировки, оптимального цветового решения, а также минимального количества декора, с помощью которого получится сделать интерьер уютным.
За счет грамотной планировки однокомнатной квартиры, 40 кв. м. в ней или 25 кв. м., можно:
- визуально расширить имеющуюся жилплощадь;
- рационально расставить меблировку;
- сделать зонирование площади оптимальным образом.
Планировка однокомнатной квартиры для семьи с ребенком будет значительно отличаться от такого же проекта для одного человека, поэтому так важно учитывать индивидуальные особенности каждого отдельного случая.
В открытом доступе только до 6 января
10 критических ошибок в ремонте, которые делают смету дороже на 100%
В открытом доступе только до 6 января
10 критических ошибок в ремонте, которые делают смету дороже на 100%
Ремонт в кризис: 5 лайфхаков на чем можно сэкономить
20 важных шагов, которые облегчат процесс ремонта
10 советов, чтобы сохранить нервы, время и деньги
Перепланировка бывает основательной, тогда для реализации задуманного придется сделать капремонт. Иногда достаточно просто сменить дизайн интерьера, не затрагивая основные конструктивные элементы помещения.
В небольших квартирах чаще всего живут студенты либо семьи без детей, поэтому наиболее популярное решение планировки – студия.
Но в квартире-студии не получится уединиться, поскольку в ней не будет отдельной комнаты. Прежде чем решиться на такую планировку, оцените все достоинства и недостатки данного варианта.
Какие материалы лучше использовать для ремонта в однокомнатной квартире
Косметический ремонт своими руками может быть выполнен качественно даже при условии использования недорогих строительных материалов. При этом квартира будет выглядеть нисколько не хуже, а может, даже и лучше, чем если бы была отделана дорогостоящими аналогами. Чтобы сделать косметический ремонт самостоятельно, не обязательно быть профессиональным строителем-отделочником или нанимать бригаду рабочих. Качественный ремонт требует тщательного продумывания, наличия небольшого опыта и знаний в деталях, как выполнять те или иные виды внутренних работ. В настоящее время не составляет труда освоить базовые навыки, чтобы суметь освежить отделку в квартире, – можно смотреть обучающие
Зачастую начинающие ремонтники заблуждаются, считая, что чем дороже строительные материалы, тем качественнее. Это не всегда так. Даже среди бюджетных вариантов есть такие, качество которых вполне достойное, и их смело можно приобретать для ремонта своей квартиры. К примеру, альтернативой гипсовой лепнине являются более дешевые пластиковые узоры. После установки разница между ними почти незаметна. А вот экономия получается существенной.
Приобретать материалы лучше в крупных сетевых магазинах или на торговых площадках-оптовиках. Как правило, цены у них оптимальные, обслуживание на высоте, а на продукцию предоставляется гарантия. Кроме того, крупные компании часто проводят выгодные акции и делают скидки на товар. Если ваш заказ достаточно большой, то вы вполне можете потребовать более выгодные условия – зачастую магазины соглашаются на скидку и доставляют покупку за свой счет.

Кроме того, чтобы сэкономить, можно отказаться от использования рельефной штукатурки, которая сейчас в моде. Однокомнатная квартира будет отлично выглядеть и после покраски. Стены комнат можно оклеить фотообоями. Еще один оригинальный вариант украшения стен – панно. С помощью краски либо больших фото можно выгодно сделать акцент на какой-либо зоне помещения.
Задачу повышения функциональности и разделения помещения на зоны отлично выполнит стенка-шкаф из гипсокартона. Сделать ее не составит труда: с одной из сторон гладкую стену заменяют нишей с полками. Такой прием обеспечивает актуальное зонирование пространства. При этом его функциональность не теряется. Перегородку в комнате можно сделать также из искусственного кирпича. Она будет смотреться стильно и придавать помещению уют.
Как выбрать подходящие мебель и аксессуары для однокомнатной квартиры
Как это ни печально, но площадь большинства предложений средней и бюджетной ценовой категории на рынке недвижимости составляет 15-25 м2. Поэтому, однокомнатные квартиры и студии площадью в сорок квадратных метров – это вполне достойный вариант на сегодняшний день.
Если подойти к организации пространства с выдумкой, воспользоваться рекомендациями опытных дизайнеров и доступными фото с лучшими примерами, то интерьер квартиры в 40 кв. м. получится не только практичным, но и очень приятным для жизни.
Планировка и создание проекта однокомнатной квартиры
Что нужно сделать, чтобы небольшая однушка или студия заиграла новыми гранями, став не просто местом для проживания, но теплым, уютным домом со своей, особенной, атмосферой?
Маленькая жилплощадь диктует собственные условия:
- Необходимо четко представлять конечный результат;
- Учесть комфорт и увлечения всех членов семьи, включая домашних любимцев;
- Нельзя приобретать мебель и предметы декора просто «чтобы было» или пленившись рекламой и стильным дизайном. Вся обстановка должна выдерживаться в предельно лаконичном стиле, и выполнять определенные функции;
- Грамотно разработанный дизайн проект квартиры 40 кв. м. – половина успеха. Помещение делится на функциональные зоны, не должно быть пустых, неиспользованных участков, ниш.
Если есть возможность, стоит до начала ремонта согласовать перепланировку. Обычно убирают перегородку между комнатой и кухней, объединяя их в одну гостиную-столовую. Но данное решение неоднозначно: постоянная суета, шум, запахи при работе на кухне, с невозможностью от них отгородиться, негативно сказываются на психологическом комфорте домочадцев.
Если речь идет о студии, торекомендуют отделять от остального пространства, выносить ее в ближе к прихожей.
Преобразования внутреннего пространства, которые позволят расширить площадь единственной комнаты могут быть следующими:
- Демонтаж дверей и окна на лоджию или балкон. Их тщательно утепляют, устанавливают стеклопакеты, проводят свет и отопление. Получается уютная комнатка, которую используют как душе угодно. Ее можно сделать полностью закрытой с помощью стеклянных раздвижных дверей, повесить портьеры, или оставить открытой;
- Вместо неудобного закутка-кладовой делают просторную гардеробную, демонтировав стену, и установив двери и перегородки из легких конструкций. Также освободившуюся площадь используют в качестве небольшой спальни , кабинета;
- Объединяют раздельный санузел, устанавливая компактную душевую кабину или современную перегородку из закаленного стекла. Таким образом появляется место для размещения стиральной машинки, водонагревателя.
Примеры гармоничного и эффективного зонирования небольших комнат можно найти в интернете. В данной статье также представлены фотографии наиболее удачных идей по планировке студий и однушек, которые уже проверены жизнью.
Разработать собственный дизайн-проект можно с помощью специальных программ-редакторов. Либо просто начертить план от руки, соблюдая масштаб, и «поиграть» с расстановкой мебели, обустройством необходимых функциональных зон.


Как сделать ремонт в однокомнатной квартире на бюджет
Стоимость ремонта в однокомнатной квартире в новостройке определяется состоянием жилья при сдаче дома. Различают:
- просторное жилье с черновой отделкой, где предполагается свободная планировка;
- помещения с предчистовой отделкой;
- квартиры с чистовым ремонтом.
В первом случае это просторная квартира с голыми неотделанными несущими стенами — кирпичными, бетонными или блочными. Пол представляет собой бетонную плиту без стяжки, потолок — нижнюю поверхность плиты без отделки. В таких помещениях, как правило, установлены окна с двойным стеклопакетом и недорогая ненадежная входная дверь.
В однокомнатных квартирах новостроек предусмотрено электричество. Есть небольшой щит с одним автоматом. Сделана разводка отопительной системы, установлена батарея и запорно-регулирующая арматура. Лишь данная коммуникация полностью подготовлена к эксплуатации.
В однокомнатных квартирах новостроек есть стояки холодной и горячей воды с отводами, на которых установлены опломбированные счетчики и краны. Есть канализационный стояк с отводом, закрытый на заглушку. Ремонт однокомнатной квартиры такого плана в новостройке потребует немало вложений, так как все работы нужно проводить с нуля. Но есть и положительный момент: можно сделать высококлассную отделку в полном соответствии со своими пожеланиями.
В домах, где будут установлены газовые плиты, сделан ввод газа и установлен счетчик. Новым владельцам придется не только делать ремонт в квартире, но и на начальном этапе проводить полную планировку помещения с разводкой всех коммуникаций.
В однокомнатных квартирах новостроек с предчистовой отделкой нужно лишь выполнить финишные работы, поскольку там уже сделана стяжка пола, а стены отштукатурены. В них имеется определенная планировка, установлены батареи и сантехника.
В отремонтированную квартиру в новостройке можно заезжать и жить. В таких помещениях уже сделан ремонт, установлено недорогое простое сантехническое оборудование и батареи. Все, что нужно сделать, это позаботиться об освещении и поставить мебель.
Надо сказать, покупка однокомнатной квартиры в новостройке с ремонтом — не всегда удачное решение. Нередко застройщики используют дешевые и, соответственно, низкокачественные материалы для ремонта и отделки. Из-за этого цена на однокомнатную квартиру в новостройке существенно и неоправданно возрастает.
Какие особенности нужно учитывать при ремонте в однокомнатной квартире
Скромная площадь однокомнатного жилья не позволят реализовать в процессе ремонта все дизайнерские идеи. Выполняя реконструкцию такой квартиры, хочется не просто освежить интерьер, но и более рационально использовать имеющуюся жилплощадь, а также сделать ее более комфортной для проживания.
Решить задачи, которые стоят при выполнении ремонта однокомнатной квартиры, помогут некоторые описанные ниже приемы.
Расстановка мебели
Учитывая компактную площадь однокомнатного жилья, необходимо еще при планировании ремонта продумать расположение предметов мебели и убрать всё лишнее (вещи, которые используются крайне редко).
Расставаться с привычной обстановкой может быть непросто, но, если какой-либо предмет не используется почти год, не стоит уговаривать себя, что он пригодится в будущем. Если на небольшой площади хранить ненужную мебель или старые вещи, то квартира превратится в свалку.
Избавляясь от ненужного, вы делаете жилье более просторным и освобождаете место для полезных предметов.
Расстановка мебели в однокомнатной квартире выполняется по следующим правилам:
- По углам комнаты можно расположить шкафы.
- На поверхности стены над диваном установите полки.
- Размещение полок в коридоре – практичное решение, которое позволит более рационально использовать свободное пространство в однокомнатной квартире. На освободившемся месте в комнате можно поставить габаритные предметы мебели.
Не оставляйте без внимания и такое решение, как обустройство шкафов-купе. Сегодня это лучший способ расширить полезную площадь жилища и эффективно распорядиться дефицитными квадратными метрами. Современные системы таких шкафов могут комплектоваться механизмами, позволяющими развесить одежду на нескольких уровнях, вплоть до потолка.
Перед установкой новых шкафов-купе и мебельных гарнитуров рекомендуем провести хотя бы косметический ремонт однокомнатной квартиры. В противном случае новая мебель только проявит все недостатки интерьера квартиры. Изношенная поверхность пола, блеклые стены и несвежий потолок будут сильно контрастировать с новым мебельным гарнитуром, который только подчеркнет имеющиеся изъяны. В результате удовольствие от обновления мебели будет сведено на нет, как только вы увидите дисбаланс после ее установки.
Перед тем как обновить обстановку в однокомнатной квартире, проведите косметический ремонт, который позволит создать интерьер, гармонирующий с современными мебельными изделиями.
Правильное зонирование
Однокомнатная квартира часто становится первым собственным жильем молодых семейных пар. Если это достаточно старая постройка, то для создания комфорта чаще всего необходимо выполнить грамотную перепланировку жилплощади. Правильное зонирование и современный дизайн сделают однокомнатную квартиру более уютной и стильной.
В процессе переделки можно убрать все перегородки, что расширит полезное пространство и создаст основу для формирования популярного современного дизайна квартиры-студии. Грамотное зонирование значительно повысит уровень комфорта вашего проживания на конкретной жилплощади.
В современной планировке небольшой квартиры может остаться только две двери (входная и дверь в совмещенный санузел). Элементы мебели для такого жилья следует подбирать, руководствуясь дизайном интерьера и функциональностью определенной зоны. Такой подход позволит создать в отдельных открытых зонах уютную спальню, привлекательную гостиную и т. д.
Выделение отдельных зон внутри однокомнатной квартиры студии осуществляют с помощью ширм, перегородок или элементов мебели.

Современные решения в области дизайна также могут использоваться для визуального разграничения отдельных зон в открытом пространстве жилья. Реализовать такую задачу в ходе ремонта однокомнатной квартиры можно, используя различные отделочные материалы и покрытия (ламинат, ковролин, кафельная плитка на кухне и др.).