Милый дом
Море полезных идей для квартиры и дома
Main menu
Главная
Новости
Статьи
Главная
»
Новости
»
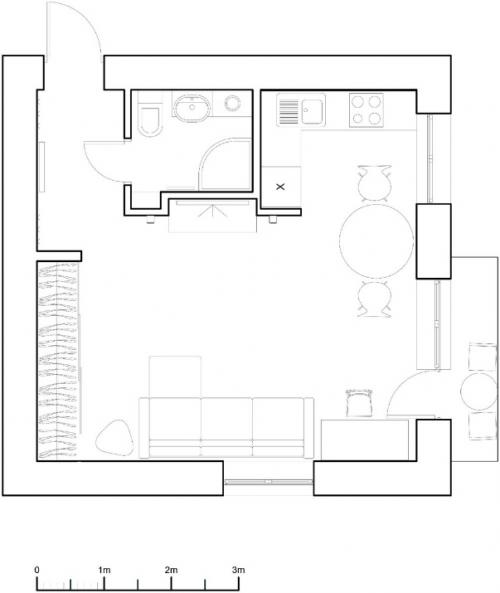
Дизайн интерьера однокомнатной квартиры 30 м2
Дизайн интерьера однокомнатной квартиры 30 м2
18.01.2020 в 21:46
Новости
Понравилось? Поделитесь с друзьями!
⇦
Шлаковая вата. Состав и технология производства минваты
⇨
Дизайн квартиры 47 м2