Как распланировать двухкомнатную квартиру.. Дизайн двухкомнатной квартиры: проект
- Как распланировать двухкомнатную квартиру.. Дизайн двухкомнатной квартиры: проект
- Планировка двухкомнатной квартиры хрущевка. Типовые планировки хрущевки 1,2,3,4 -комнатных квартир с размерами
- Планировка двухкомнатной квартиры 54 кв м. Интерьер двухкомнатной квартиры 54 кв.м. в современном стиле
- Планировка 2-комнатной квартиры в панельном доме. Плюсы и минусы планировки в двухкомнатной квартире
- Планировка 2-х комнатной квартиры в 9 этажном панельном доме. 7 вариантов планировки 2-комнатной квартиры (53 кв. метра) в панельном доме серии П-3
- Планировка 2-х комнатной квартиры в 5 этажном доме. Варианты планировки
- Планировка двухкомнатной квартиры с размерами. Особенности планировки двухкомнатной квартиры
- Двухкомнатная квартира планировка. Планировка двухкомнатной квартиры: как выбрать и реализовать самый лучший проект? 125 фото-идей
Как распланировать двухкомнатную квартиру.. Дизайн двухкомнатной квартиры: проект
Современный дизайн двухкомнатной квартиры разрешает реализовать любой замысел, позволяет создать все основополагающие зоны. Разработка любого проекта начинается из выяснения главных вопросов: для кого оборудуется жилплощадь, сколько персон будет проживать. Не стоит забывать о самом важном — возрасте жильцов, возрасте, увлечениях, хобби. Двухкомнатные квартиры популярны у семейных пар, семейных пар с детьми или одним ребенком. Не редко в таких апартаментах могут обитать холостяки, любящие свободное пространство. Уже исходя из ответов на вопросы, можно представить будущий вид обители, ее функциональное зонирование в перепланировке. Для семьи с одним ребёнком — одна часть соответственно становится детской территорией, другая — будет совмещать спальню для родителей с гостевой одновременно. В такой спальне уже не будет полноценной кровати, но есть масса других интересных вариантов. Как вариант можно использовать круглую кровать, или трансформер.
Гостиная совмещенная с кухней и столовой
Обустройство детского пространства зависит от возраста, количества детей. Если владельцы имеют парочку маленьких детишек, не составит проблемы создать для каждого отдельную территорию. Ней может является комната, разделенная пополам, или это может быть лишь визуальное разделение. Ситуация выглядит проще, когда ребенок один. Решающими фактами являются возраст, предпочтения, увлечения ребенка. Если в доме будет жить один человек — разумно будет разделить ее на две части — прихожая и спальня.
Планировка двухкомнатной квартиры хрущевка. Типовые планировки хрущевки 1,2,3,4 -комнатных квартир с размерами
Особенности «хрущевок»
Строительство таких домов началось в 1958 году и продолжалось до 1985 года. В то время остро стояла проблема обеспечения жильем огромного количества людей по всей стране. Нужен был простой проект, который мог бы решить эту проблему в кратчайшие сроки.
Компактные жилые дома строились быстро и не требовали больших затрат. Впоследствии они получили прозвище «хрущевки», так как были построены в то время, когда главой государства был Никита Сергеевич Хрущев.
Квартиры в этих домах отличались небольшой площадью квадратных метров, проходными комнатами, низкими потолками, совмещенными санузлами и подъездами без лифта. Было несколько наборов типовых планировок квартир в хрущевских домах, отличавшихся:
- материал стен;
- расположение кладовой;
- варианты расположения комнат относительно гостиной;
- площади кухни и комнат.



Выделяют четыре серии типовых домов типа «хрущевки:
- 1-464 серия (годы постройки 1960—1967);
- 1-335 серии (1963—1967 годов постройки);
- 1-434 серии (1958—1964 годов постройки);
- серия 1-434С (1958—1964 годов постройки).

Изначально дома этого типа считались временным жильем. Они были построены для быстрого решения жилищной проблемы и рассчитаны на срок не более 25 лет. Впоследствии срок был увеличен до 50 лет и более.

На данный момент «хрущевки» столицы и Санкт-Петербурга сносят, но в других регионах продолжают активно эксплуатировать. Особой популярностью пользуются кирпичные постройки. У них толстые стены, удобные холодильники под подоконником, просторные кладовые.

Планировки кирпичных квартир «Хрущевки» легко меняются, превращая стандартные квартиры в современные и стильные.

Характеристика планировки
Планировка хрущевки очень неудобная и непропорциональная. В типовых панельных, кирпичных или блочных многоквартирных домах бывают узкие пролеты, узкие коридоры и тонкие стены, для которых характерна плохая звукоизоляция. Из-за ряда недостатков и небольших размеров современные постройки того времени получили другое название — Krusciobs.

Функции:
- На каждом этаже по 3 квартиры — однокомнатные, двухкомнатные и трехкомнатные.
- Также существует измененная конструкция с четырьмя планировками комнат.
Типовые серии хрущевок
В России представлены проекты многоэтажных кирпичных или панельных домов высотой от 2 до 5 этажей, которые были построены во времена правления Никиты Сергеевича Хрущева, а точнее в 1959-985 годах.
Планировка двухкомнатной квартиры 54 кв м. Интерьер двухкомнатной квартиры 54 кв.м. в современном стиле
Квартира находится в тихом районе Санкт-Петербурга. Предназначена для матери и дочери 26 лет. По пожеланиям заказчиц перепланировка в квартире не требовалась. Необходимо было выполнить интерьер в современном стиле.
Кухня
Кухня представляет собой помещение квадратной формы и выполнена в белых тонах. Белые глянцевые фасады кухонного гарнитура, белая стеклянная столешница обеденного стола, белые стулья создают ощущение воздушного, легкого пространства. Несомненным акцентом являются обои с рисунком под мрамор. Кухню и прихожую разделяют вертикальные деревянные ламели, что визуально помогает увеличить высоту потолка, разграничить два помещения, не выстраивая при этом глухую стену. Керамогранит под бетон добавляет интерьеру строгость.
Гостиная
Интерьер гостиной выполнен в нейтральных цветах. Светло-серые стены, серый диван, серо-белый ковер с активным геометричным рисунком выразительно сочетаются с теплым цветом паркетной доски, бежевыми глянцевыми фасадами корпусной мебели и молочным цветом штор. Дизайнерским решением было выполнить стену за телевизором деревянными ламелями и панелью с подсветкой.
Стену за диваном украшают картины, подчеркивающие общее настроение интерьера. Необычная люстра с перламутровыми подвесками создает роскошные переливы света и тени. Стильные металлические элементы эффектно дополняют общий облик светильника. Мягкий приглушенный свет способствует релаксации и доверительной беседе.
Спальня
Спальня, предназначенная для молодой девушки, выполнена в современном стиле в серо-голубых тонах. Голубой в сочетании с серым создает обстановку, наполненную такими природными символами, как небо и море, что благоприятно воспринимается человеческим подсознанием. Стена за кроватью декорирована 3d панелями и зеркалами, что зрительно расширяет пространство. Футуристичный светильник выигрышно контрастирует с прямыми линиями мебели и геометричным рисунком на стене.
Прихожая
В интерьере прихожей нет ни чего лишнего. Из предметов мебели только пуф и консоль для хранения необходимых мелочей с зеркалом. Стены отделаны шелковой штукатуркой, на полу керамогранит под бетон, что несомненно является очень практичным решением для данного помещения. Белые двери выигрышно подчеркивают простоту интерьера.
Коридор
В коридоре предусмотрен большой зеркальный шкаф, что избавляет от ощущения зажатости узкого пространства.Планировка 2-комнатной квартиры в панельном доме. Плюсы и минусы планировки в двухкомнатной квартире
Квартира, в которой есть две комнаты, подойдет для семьи из двух или трех членов семьи, но и тут нужно учитывать удобство проживания в ней всех жильцов. Какие есть «подводные камни» в проживании на такой площади и как отличается различная планировка квартир одна от другой и в каком варианте намного удобнее проживать.

Двушки представляют собой жилье, более или менее доступное по цене и достаточное по квадратуре
Нужно всегда стараться создавать комфорт для проживания в своем собственном жилье, но к сожалению стандартные и шаблонные квартиры предоставляют мало возможностей к достижению этой цели и имеют много минусов. Это может выражаться в разных деталях: длинный, короткий или узкий коридор, совмещенный санузел, небольшое помещение кухни, низкий потолок, маленькие жилые комнаты.
Всегда можно найти плюсы в квартире, которые можно обыграть и сделать свое жилье оригинальным, модным, стильным, комфортным, но недостатки нужно стараться убирать и в этом может помочь перепланировка.
Планировка 2 комнатной квартиры может отличаться в зависимости от того, в какое время был разработан архитектурный проект дома, в котором находится данная жилплощадь. Так как основное проживание жителей нашей страны проходит в домах, построенных при СССР, и в таком помещении можно найти больше минусов, чем плюсов, тогда тут особое внимание нужно уделить отдельным деталям, каждой комнате в отдельности и другим бытовым помещениям.

Планировка 2-х комнатной квартиры в 9 этажном панельном доме. 7 вариантов планировки 2-комнатной квартиры (53 кв. метра) в панельном доме серии П-3
Для справки: типовая серия многоэтажных домов П-3 – разработана АО МНИИТЭП (популярна с 1971–1988 г. и по настоящее время).
Панельная постройка имеет 16 или 17 этажей. Квартиры – 1-, 2-, 3-, 4-комнатные. Несущие стены из железобетонных плит (толщина 14–18 см), наружные стены из керамзита (32 см).
Дома из серии П-3 считаются самыми удачными с точки зрения планировки и площади. Комнаты в домах – изолированные, а кухня – большая (9 кв. метров). Модифицировать пространство 2-комнатного жилья посредством планировки — задача сложная, но выполнимая.
Типовая двушка П-3 – квартира, ограниченная несущими стенами, что отрицает возможность кардинальной перепланировки. Единственная возможная модификация – согласование переноса проёма двери в стену, разделяющую кухню и гостиную, хотя здесь тоже есть свои сложности. Итак, рассмотрим несколько вариантов планировки.

1 вариант
Квартира с двумя комнатами сегодня считается малогабаритной, но достаточно приемлемой для семьи из 2-х человек. Комнату с большей квадратурой легко обозначить, как помещение зала и расположить в нём стеллажи с книгами и мягкий угловой модуль.
В маленькую комнату переместить спальню, например с просторной кроватью Кинг-сайз, и установить платяной гардероб.
Кухонное пространство займёт мягкий гарнитур Г-образной формы и стол с раздвижной столешницей для приёма гостей.
В маленькой ванной встанет угловая душевая кабинка или мини-джакузи. В помещении гардероба есть место для бытовой техники, расположенной на полках друг над другом (стиральная и сушильная машинки), а ещё для хранения домашнего скарба.

2 вариант
Для пары, один из супругов которой работает удалённо, не выходя из дома, встанет вопрос о добротной рабочей зоне. Выручит система зонирования с помощью книжных стеллажей и тумбы для техники, ими можно ограничить пространство у входа в большую комнату.
В прихожую помещается плательный шифоньер, так как он более ёмкий. А на место ванной в душевой комнате встанет кабинка. Теперь здесь можно установить стиральную машину.
На кухне в обеденную точку можно запросто поставить лаконичный прямоугольный стол с парой стульев и диванчиком по одной из сторон.

3 вариант
Если семья состоит из 3-х человек (с ребёнком-школьником), то ему необходима изолированная комната. Придётся жертвовать спальней, переоборудовав её под детскую. В гостевую «переедет» раскладной диван – он же спальное место, для симметрии по обеим его сторонам расположатся шкафы для хранения домашних вещей, книг и одежды.
Плоскому телевизору есть место на стене – это разгрузит пространство и даст возможность организовать рабочую точку в комнате.
Для выполнения школьных заданий в детскую встанет письменный стол или бюро с откидной крышкой, у входа в комнату – система-купе для игрушек и книг, кровать и короб для игрушек и детских «нужностей».
Большой шкаф для хранения разместится в прихожей по одну сторону от входа, а гарнитур с полками под обувь и крючками для одежды – с противоположной.

4 вариант
Дизайнеры разрушают стереотип о том, что при планировке двухкомнатной квартиры, гостевая комната должна размещаться в самой габаритной по площади.
Благодаря угловой мягкой мебели и мягкому гарнитуру из 2-х кресел гостиную легко перенести в маленькое жилое помещение площадью 14 кв. метра.
Теперь в спальне легко спроектировать зону для отдыха семьи, а за ширмой – гардероб. Здесь хочется посоветовать наш материал о дизайне маленькой спальни .

5 вариант
В рамках предыдущей планировки в центре большой комнаты со смещением к входу можно возвести ширму. Она поделит периметр на две самостоятельные части.
Источник: https://dom-na-vodah.ru/novosti/planirovki-2-h-komnatnyh-kvartir-pravila-kotorye-nelzya-narushat
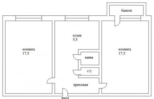
Планировка 2-х комнатной квартиры в 5 этажном доме. Варианты планировки
Существуют варианты планировка хрущевки с размерами 2 комнат . Разновидности плана типовой хрущевки можно расположить следующим образом в порядке убывания удобства.
Для распашонки
Две изолированные комнаты приличной площади (чаще всего — одинаковой). Они расположены по разные стороны квартиры, между ними — прихожая, санузел, ванная и кухня. Этот проект во многом предпочтительнее и удобнее, чем распространенный трехкомнатный вариант с проходной комнатой.
Несмотря на преимущество планировки и выигрышную жилую площадь, площадь кухни типична для домов рассматриваемого типа и составляет 5,5 квадратных метров. При этом планировка практически не оставляет возможностей для ее увеличения. Чаще рассматривается вариант увеличения площади кухни за счет одной из комнат, но в этом случае уменьшаемая комната примет неправильную форму.

Комнаты в мини-улучшенке
Комнаты изолированные, одна — весьма неплохой площади, другая — довольно маленькая, расположены рядом, за маленькой комнатой расположена кухня. Общая площадь квартиры 44,6 квадратных метров. Главный недостаток — небольшая площадь кухни: 5,2 м2. В основном работы по перепланировке касаются увеличения площади кухни (есть возможность увеличить до 8 метров за счет прихожей и кладовки).

Трамвай
Комнаты в квартире такого типа смежные, стыкуются между собой узкими стенами. Общая площадь квартиры — 48 квадратных метров. Разделение комнат весьма удачно. В этом случае прихожая продлевается в глубину прилегающей к ней комнаты настолько, насколько это продиктовано интересами хозяина.
Планировка двухкомнатной квартиры с размерами. Особенности планировки двухкомнатной квартиры
Приняли решение обустроить стилистически свою квартиру практически с нуля? Значит нужно уделить время и внимание не только подбору стилевого оформления, но и архитектурному проекту. Для чего это делается?

Удобная планировка 2-х комнатной квартиры
Мы стремимся улучшать комфортабельные условия для собственного проживания, но квартиры, построенные по шаблону имеют массу недостатков. Их мы рассмотрим с вами немного позже, лишь перечислю их. Это может быть слишком длинный коридор или предельно узкий проход, совмещённый санузел, маленькое пространство кухни , низкие потолки , незначительный размер жилой площади.
Мы же с вами будем стремиться к тому, чтобы использовать пространство жилой площади рационально и экономно. В стандартной квартире всегда найдётся сложный участок, который нужно правильно обыграть в будущем проекте . В этом сможет помочь перепланировка, для которой предварительно составляется план с учётом всех плюсов и минусов квартиры, а также предпочтений жильцов.

Стильная, небольшая квартира
Начинаем с изучения документов
Совет
Для начала тщательно изучаем документ с планом квартиры для выявления возможных минусов, нерационального использования пространства и дальнейшей корректировки этих дефектов.
Обычно перепланировка затевается в том случае, когда необходимо обеспечить индивидуальное пространство каждому жильцу квартиры. Если жилая площадь не может разделяться перегородками, то для создания зон можно использовать мебель , шторы и прочие декоративные изделия.

Двухкомнатная квартира планировка. Планировка двухкомнатной квартиры: как выбрать и реализовать самый лучший проект? 125 фото-идей
Выбирая квартиру, многие люди в первую очередь обращают внимание на ее планировку, ведь от этого напрямую будет зависеть то, насколько комфортно в ней они будут себя чувствовать. Основное внимание обращается на расположение кухни, спальни, лоджии, также немаловажно, чтобы санузел был раздельным.

Иногда застройщик объединяет туалет и ванную, делает гостиную проходной, что снижает шансы на выбор данного жилья. Десятки лет назад планировка квартиры была довольно неудобной, однако в последнее время застройщики заметно улучшили свои проекты, на рынке недвижимости появились квартиры улучшенной планировки.
По желанию жильцы могут сами сделать перепланировку квартиры, но только в том случае, если это позволяет конструкция дома.

Дом может стоять в хорошем районе, поблизости может быть вся инфраструктура, но планировка может быть не такой как хотелось бы. В таком случае, такое жилье часто подлежит перестройке самими жильцами.
Иногда гостиная совмещается с кухней, или объединяется санузел и на его месте делается гардеробная. В данном случае все зависит от потребностей людей, от количества проживающих в квартире.

В каждом доме можно найти недостатки, все дело в том, что строительная компания экономит свои средства. В идеале застройщику необходимо пригласить архитектора, чтобы грамотно распланировать строение комнат и всего дома в целом. Все это означает материальное вложение, на которое не все соглашаются.

Ниже представлены фото планировки двухкомнатной квартиры. Обратите внимание на планировку современной квартиры, быть может, данные проекты станут помощником в вашей перестройке.

В чем заключается удобство планировки двухкомнатной квартиры?
Как уже было отмечено, довольно редко встречается двухкомнатная квартира с удобной планировкой. Главным плюсом небольшой, однако, удобной квартиры является просторная столовая зона.

В зависимости от общего метража квартиры, просторной считается кухня не менее 12 квадратных метров. К сожалению, в квартирах с двумя комнатами общей площадью до 55 метров, застройщики делают кухни не более 9 метров.

Вторым показателем хорошей планировки служит кладовая в пределах квартиры. Все жильцы без исключения только приветствуют такое решение. Что касается лоджии или балкона, то они должны быть просторными.

Какие бывают планировки двухкомнатных квартир?
Чаще всего на рынке недвижимости большим спросом пользуются именно двухкомнатные квартиры. Прежде всего, это оптимальное решение по стоимости и жилой площади. Не дорогими, считаются квартиры в панельном доме, здесь планировка квартиры стандартная и примитивная.

Чаще всего при перепланировке небольшой квартиры затрагиваются ванная, кладовая, коридор, именно данные зоны уменьшаются или исключаются вовсе для увеличения кухни или гостиной.

Застройщик при строительстве домов с обычной планировкой преследует только собственные выгоды, не задумываясь об удобстве проживания в них.
В последнее время значительный спрос наблюдается на двухкомнатные квартиры общей площадью не более 55 метров. Такая квартира состоит из двух комнат, кухни, санузла, ванной и коридора, кладовка имеется не у всех застройщиков.

В более новых, современных домах площадью не менее 68 метров квадратных, планировка комнат лучше, создается впечатление некой квартиры распашонки. Кухня здесь больше, коридор также просторнее, также остальные комнаты расположены удобнее.

Дома высокого класса, так называемое элитное жилье, отличаются планировкой как внутри, так снаружи. Здесь застройщики используют последние технологии, в проектировании участвуют архитекторы, сам дом строится из кирпича с применением монолитной технологии. В таких домах легче сделать перепланировку по своему вкусу.

Главная особенность при строительстве такого жилого массива, это проектирование квартир таким образом, чтобы жильцы могли свободно переносить стены, то есть, здесь нет перегородок. Подобные квартиры с улучшенной планировкой рассчитаны все же на людей состоятельных, поэтому стоимость их довольно высокая.
В домах, где квартиры стоят не дорого, у жильцов нет возможности сделать перепланировку, так как стены практически все являются несущими. Если необходимо сделать перепланировку панельного дома, это делается проектировщиками еще до начала строительства.