Хрущевка планировка однокомнатной квартиры. 3 варианта перепланировки однокомнатной квартиры хрущевки
- Хрущевка планировка однокомнатной квартиры. 3 варианта перепланировки однокомнатной квартиры хрущевки
 - Перепланировка двухкомнатной хрущевки вагончиком. Перепланировка хрущевки (2 комнаты смежные): варианты подготовки
 - Дизайн однокомнатной хрущевки без перепланировки. Примеры удачных перепланировок хрущевок
 - Видео дизайн 1 комнатной квартиры хрущевки
 
Хрущевка планировка однокомнатной квартиры. 3 варианта перепланировки однокомнатной квартиры хрущевки
Планировка однокомнатной хрущевки в придачу с остальными недостатками (маленькие площади комнат, невысокие потолки) делают неприглядной эту квартиру. Однако владельцами подобных квартир является большое количество людей. Кто-то прожил в этой квартире всю жизнь, кому-то она досталась по наследству и т.д. В настоящее время мир дизайна и пестрящие картинки в интернете побуждают людей делать свое жилье более красивым и комфортным. В связи с этим владельцы однокомнатных квартир все чаще интересуются темой перепланировки собственной квартиры. Мы решили помочь вам в этом вопросе и предлагаем 3 примера перепланировки 1-комнатной хрущевки.
Вариант 1

Для кого: Для семьи или молодой пары
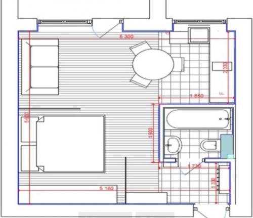
Площади : Кухня – 6.4 кв.м., ванная – 2.7 кв.м., постирочная – 0.6 кв.м., спальня-гостиная – 16.6 кв.м., коридор – 3.3 кв.м.
Особенности: Расстановка мебели в гостиной-спальне достаточно распространенная. Зонирование в этой комнате осуществляется с помощью. Вход на кухню осуществляется через основную комнату, а на месте прежнего прохода появляется маленькая кладовка-постирочная. На кухне за дверью небольшой стеллаж для хранения. Вход в ванну перенесен, в ней вместо привычной ванны установлена душевая кабина. Основные места хранения: шкаф для верхней одежды в коридоре и два вместительных шкафа в гостиной. Дополнительные места могут быть организованы на застекленном балконе.
Примеры дизайна предложенной перепланировки:
Вариант 2

Для кого: Для семьи или молодой пары
Площади : Кухня-гостиная-спальня – 19.9 кв.м., ванная – 2.7 кв.м., гардеробная – 4.3 кв.м., коридор – 1.6 кв.м, постирочная – 1.1 кв.м.
Особенности: Снос части стены между кухней и большой комнатой позволил правильно организовать пространство. В результате мы получили уютную кухню-гостиную и небольшую спальню, отделенную стеллажом перегородкой, на которой установлен телевизор. В глубине спальни вход в. В углу коридора занимает место постирочная с местами для хранения.
Примеры дизайна предложенной перепланировки:
Вариант 3

Для кого: Для семьи с ребенком
Площади : Кухня-гостиная-спальня – 14.9 кв.м., ванная – 2.7 кв.м., детская – 5.1 кв.м., гардеробная – 2.8 кв.м., коридор – 3.1 кв.м, кладовка – 0.8 кв.м.
Особенности: Сделать в однокомнатной хрущевке практически трехкомнатную квартиру достаточно реально. Для этого достаточно грамотно распорядиться каждым квадратным метром. Две зоны хранения в коридоре: гардеробная и кладовка избавят остальные площади от массивной мебели. Перенесенная дверь ванны позволит использовать часть коридора и большой комнаты для гостиной и спальни, которая отделена стеллажом. Широкий проход в кухню необходим не только для, но и для достаточной вентиляции большого помещения. Оставшаяся площадь отдается под детскую, в которой расположены стол, кровать и шкаф. При желании можно застеклить и утеплить балкон, это позволит перенести туда стол или шкаф. Таким образом, увеличится свободное место в комнате.
Перепланировка двухкомнатной хрущевки вагончиком. Перепланировка хрущевки (2 комнаты смежные): варианты подготовки
Гипсокартонная перегородка для разделения помещения на две комнаты
Перепланировка хрущевки на 2 смежные комнаты – это не косметический ремонт, а серьезный процесс, который требует ответственного подхода. Прежде чем приступать непосредственно к самому изменению конфигурации квартиры, важно позаботиться о согласовании перепланировки. Необходимо составить точный план с указанием всех деталей.
Перед началом работ по перепланировке квартиры необходимо позаботиться о ее согласовании
Работы по перепланировке лучше доверить опытным специалистам
Совет! Многие жители небольших квартир , решившись на перепланировку, считают ненужным ее узаконивание. Это большая ошибка, поскольку без утверждения документации на какие-либо изменения планировки в квартире помимо обоснованных жалоб соседей можно столкнуться с проблемами во время продажи квартиры.
Также стоит отметить, что без предварительной экспертизы даже опытные строители не смогут точно различить несущие стены, которые удерживают вес перекрытий, и самонесущие. Именно потому, затеяв серьезные изменения в структуре квартиры, стоит пригласить для экспертизы профессионалов, которые проведут оценку и предложат выгодные варианты перепроектировки.
Двухкомнатная хрущевка до и после перепланировки
Варианты перепланировки двухкомнатной хрущевки
Перенос кухни в комнату
План перепланировки двушки
Перепланировка хрущевки на 2 комнаты, фото которой выглядят весьма привлекательно, все-таки включает в себя больше, чем обычное изменение визуального облика квартиры. Необходимо собрать следующий пакет документов:
- В бюро технической инвентаризации оформляется план этажей здания, непосредственно план квартиры и детальная экспликация помещений.
 - Жилищную контору стоит посетить для того, чтобы узаконить свои права на перепланировку и на квартиру в целом, также заверить эскиз будущего плана.
 - Если работы будут проводиться с учетом частичной или полной замены трубопроводов или электропроводки, необходимо обратиться за разрешением в газовую службу, санэпидстанцию, пожарный отдел.
 
Разработку дизайна будущей квартиры можете доверить специалистам или же сделать это своими руками, воплотив в реальность все свои творческие фантазии
В зависимости от сложности проводимых работ, количество документов может существенно возрасти.
Дизайн однокомнатной хрущевки без перепланировки. Примеры удачных перепланировок хрущевок
В этом разделе мы приведем несколько примеров потрясающих и функциональных планировок однокомнатных хрущевок, площадью 30 кв.м., которые были реализованы в действительности. При планировании были учтены все требования и пожелания хозяев, а габариты предметов мебели, толщина перестенков и проходов, рассчитывалась вплоть до сантиметра. В противном случае просто не удалось бы занести мебель в комнату.
-  Пример №1. При перепланировке этого жилища сначала были снесены все перестенки, а затем возведены новые. Нужной толщины и в нужных местах. Кухню все же объединили с гостиной, на границе установили барную стойку и стулья , так как столом пришлось пожертвовать. Это дало возможность уместить диван и маленькие тумбочки по бокам. Стоит заметить, что площадь кухни составляет всего 5 кв.метров. Спальня получилась довольно просторной и смогла уместить кровать и шкаф. Удалось сохранить и просторный коридор, где была организована ниша под шкаф-купе . Таким образом, мест хранения в квартире более чем достаточно. Площадь санузла составляет всего 3 кв.м. Поэтому стандартной ванне предпочли душевую кабину , а раковину установили над стиральной машинкой. Ну и чем вам не полноценная двушка?

 -  Пример №2. Эта планировка реализована на площади в 31 кв.метр в угловой квартире. В этом варианте кухня осталась изолированной от остальных помещений. Помимо этого была добавлена перегородка в гостиной, что позволило отделить спальную зону и расширен проем между коридором и гостиной. Дверная коробка была демонтирована, что позволило визуально расширить комнату. Благодаря тому, что квартира является угловой, и в гостиной и в спальне есть оконный проем, что делает их полноценными, отдельными помещениями. Площадь спальни – 7 кв.м., гостиной – 9 кв.м. При этом оба помещения включают по одному небольшому рабочему месту. Обратите внимание, что вся мебель мобильна и функциональна.
Рабочий стол оборудован колесиками, что позволяет перемещать его на центр гостиной, когда приходят гости. Вместительный шкаф представлен угловой моделью. А самым приятным является то, что в санузле удалось уместить полноценную прямоугольную ванну за счет того, что использовалась узкая сантехника и подвесной унитаз самого маленького размера, а стиральная машина была подвешена над унитазом;
 -  Пример №3. Площадь этой квартиры составляет 29 кв.метров. В данном случае каждый сантиметр пространства использовался по максимуму. Была демонтирована часть перегородок, оборудована ниша для размещения кровати и перенесен вход на кухню. Там, где раньше была дверь в кухню, теперь небольшое рабочее место. На кухне в 5 кв.м. присутствует большое количество встроенной техники. Уместить ее удалось благодаря тому, что были выбраны самые узкие встраиваемые модели, а газовая плита заменена двухкомфорочной варочной поверхностью . Чтобы была полноценная рабочая зона, столешницу продлили и напротив окна. Спальня и гостиная, по сути, составляют одно помещение. Но изоляция спального места происходит за счет выдвижной ширмы. На схеме видно, что в прихожей уместился большой угловой шкаф-купе. Дополнительные места хранения обеспечивает ниша в диване и большой короб под матрасом кровати с подъемным механизмом, а так же настенные полки ;

 -  Пример №4. Этот пример перепланировки квартиры площадью в 30 кв.м. интересен тем, что для изоляции спального места использовалась стеклянная перегородка.
Дополнительно она оснащена блэкаут-шторами, которые даже при дневном свете обеспечивают полное затемнение. В спальне под стеной размещен большой шкаф-купе со стеклянными фасадами. Этот прием дает возможность создать перспективу, что зрительно увеличивает пространство. Еще один шкаф поменьше расположен в прихожей. Гостиная совмещена с кухней, а на границе расположена обеденная группа. Подоконник в кухне был поднят на уровень со столешницей и является ее продолжением. Вход в санузел был перемещен, благодаря чему удалось компактно разместить все необходимое, и даже полноценную ванну. Стиральная машина в данном случае также подвешена с помощью специальных креплений над унитазом. Согласитесь, после таких действий уже трудно назвать квартиру хрущевкой. Такое жилье максимально адаптировано под потребности хозяев, функционально и уютно.
 

Рабочий стол оборудован колесиками, что позволяет перемещать его на центр гостиной, когда приходят гости. Вместительный шкаф представлен угловой моделью. А самым приятным является то, что в санузле удалось уместить полноценную прямоугольную ванну за счет того, что использовалась узкая сантехника и подвесной унитаз самого маленького размера, а стиральная машина была подвешена над унитазом;

Дополнительно она оснащена блэкаут-шторами, которые даже при дневном свете обеспечивают полное затемнение. В спальне под стеной размещен большой шкаф-купе со стеклянными фасадами. Этот прием дает возможность создать перспективу, что зрительно увеличивает пространство. Еще один шкаф поменьше расположен в прихожей. Гостиная совмещена с кухней, а на границе расположена обеденная группа. Подоконник в кухне был поднят на уровень со столешницей и является ее продолжением. Вход в санузел был перемещен, благодаря чему удалось компактно разместить все необходимое, и даже полноценную ванну. Стиральная машина в данном случае также подвешена с помощью специальных креплений над унитазом. Согласитесь, после таких действий уже трудно назвать квартиру хрущевкой. Такое жилье максимально адаптировано под потребности хозяев, функционально и уютно.