П 44 дизайн 2 х комнатная квартира. Уникальные идеи для интерьера от специалистов Юду
- П 44 дизайн 2 х комнатная квартира. Уникальные идеи для интерьера от специалистов Юду
- Дизайн 3-х комнатной квартиры п-44. Вариант 1
- Дизайн типовой 3х комнатной квартиры серии п-44т. Планировка трёшки в панельке П-44: 5 удачных схем (бесплатно)
- Планировка 3 комнатной квартиры п-44. Какой выбрать стиль и дизайн интерьера трехкомнатной квартиры П44Т
- Ремонт 3-х комнатной квартиры п-44. Дом серии П44Т. Разбираем планировки (фото). Почему панельный дом так популярен у покупателей?
- КОГДА И КЕМ СПРОЕКТИРОВАНА?
- ТЕХНИЧЕСКИЕ ХАРАКТЕРИСТИКИ
- РАЗБИРАЕМ ПЛАНИРОВКИ
- Однокомнатные квартиры в П44Т
- В зависимости от района Москвы такие квартиры по данным истории сделок в Сбербанке продавались в 2018-2019 году:
- от 5 900 000 до 7 500 000 рублей
- Двухкомнатные квартиры в П44Т
- В зависимости от района Москвы такие квартиры по данным истории сделок в Сбербанке продавались в 2018-2019 году:
- от 8 000 000 до 10 500 000 рублей
- Большая кухня с эркером играет роль кухни-гостиной
- В зависимости от района Москвы такие квартиры по данным истории сделок в Сбербанке продавались в 2018-2019 году:
- от 9 500 000 до 12 500 000 рублей
- Трехкомнатные квартиры в П44Т
- Главные недостаток - один санузел. Будь в такой квартире два санузла можно было бы назвать ее идеальной.
- Видео п-44Т 2-х комнатная квартира
П 44 дизайн 2 х комнатная квартира. Уникальные идеи для интерьера от специалистов Юду
Дизайн интерьера 2-комнатной квартиры П-44 от исполнителей Юду отличается креативностью и оригинальным оформлением. Специалисты знают особенности различных стилей и направлений, включая популярные сегодня прованс, скандинавский стиль и стиль лофт. Они ответственно подойдут к поставленной задаче и сделают так, чтобы 2х комнатная квартира в доме серии П-44 имела креативный и многофункциональный дизайн интерьера.
Поиск дизайнеров с помощью сервиса Юду имеет следующие преимущества:
- заказать услуги профессионального исполнителя можно максимально быстро
- все архитекторы и дизайнеры имеют соответствующее образование
- каждый пользователь прошел верификацию
- можно в любое время просмотреть список свободных специалистов
- дизайн квартиры будет выполнен в срок
У дизайнеров Юду множество интересных идей, благодаря которым интерьер двухкомнатной квартиры П-44 станет красивым и уникальным. Создание проекта происходит с учетом новых технологий, поэтому даже типовые планировки могут быть изменены так, что 2-комнатная квартира (дом серии П-44) получит современный интерьер.
Дизайн интерьера от специалистов сервиса включает в себя выполнение следующих этапов:
- выезд дизайнера на объект
- анализ помещения, сбор необходимых сведений
- консультация
- разработка проекта
- визуализация
- закупка мебели и техники
- авторский надзор
Авторский надзор означает, что ремонт квартиры будет выполняться под наблюдением дизайнера, благодаря чему отделка и декор будут осуществляться правильно.
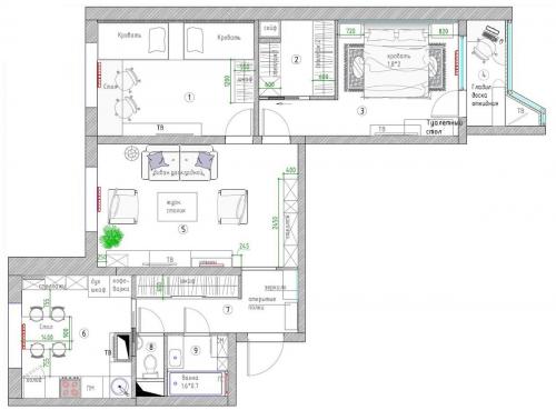
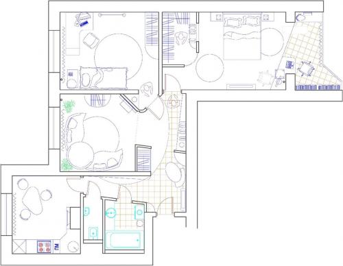
Дизайн 3-х комнатной квартиры п-44. Вариант 1

Дизайн однокомнатной П-44Т
Для данного варианта я предлагаю разделить жилую комнату перегородкой. В результате мы получим кабинет и спальню. В рабочей зоне разместится диван.
Дизайн-проект санузла предполагает замену ванны душевой кабинкой, за счет освободившейся площади найдется место для большого умывальника и стиральной машины.
Перегородку, отделяющую коридор и кухню, я бы рекомендовала убрать, а углы стен санузла и вентиляционного блока немного скосить. Этот нехитрый прием позволяет визуально расширить вход в кухню.
Если на кухне расположить небольшую рабочую зону, найдется место для круглого стола (на 5-6 человек).

Небольшая кухня, но функциональная
Такое решение подойдет для тех, кто работает дома или предпочитает проводить свободное время за компьютером. Кроме того, вариант будет по достоинству оценен теми, кто любит собирать гостей у себя дома.
Достоинства
- большая жилая комната;
- минимальная перепланировка;
- комфортное рабочее место;
- просторная кухня.
Недостатки
- изолированная комната;
- скромная рабочая кухонная зона;
- отсутствие единой системы хранения.
Перед тем как разрабатывать дизайн однокомнатной квартиры п44т в данной планировке, согласуйте возможность срезания небольшого угла вентиляционного блока, а также учтите, что на кухне можно будет установить только электроплиту.
Несколько советов:
- Зонирование можно провести не только перегородкой, но и стеллажом.
- Сэкономить место в рабочей зоне кухни поможет двухконфорочная варочная панель.
Дизайн типовой 3х комнатной квартиры серии п-44т. Планировка трёшки в панельке П-44: 5 удачных схем (бесплатно)
Планировка 3 комнатной квартиры п-44. Какой выбрать стиль и дизайн интерьера трехкомнатной квартиры П44Т
Стилистический выбор при ремонте практически ничем не ограничен, поскольку достаточно высокие потолки и площадью 93 кв.м. дают простор дизайнерской мысли.

Светлая и просторная гостиная в современном стиле

В отделке использованы современные натуральные материалы – пробковые панели, бамбуковые обои и паркетная доска
Органично воспринимается дизайн 3-комнатной квартиры П44-Т в разном стиле:
- урбанистический, скандинавский или японский минимализм;
- прованс, шале и другие виды кантри;
- восточный колорит или другой этнический акцент;
- хай-тек или лофт;
- контемпорари, фьюжн, другой современный микс.

Скандинавский интерьер практичен, прост в оформлении и идеален для комнат с окнами на север

Красивая гостиная в японском стиле

Лаконичность и простата минимализма – только самое необходимое и минимум декоративных “штучек”

Для хай-тека характерно всё самое современное – мебель, техника и отделочные материалы
Основная цветовая гамма зависит от личных предпочтений и естественного освещения комнат, выходящих на разные стороны. В северных широтах специалисты предлагают компенсировать недостаток солнечных лучей широким применением ярких акцентов на светлом или белом фоне.

Милая и уютная спальня в стиле прованс

Непритязательная атмосфера в спальне стиля кантри способствует расслаблению и отдыху

Лофт обычно выбирают ценители неординарных решений

Контемпорари предоставляет свободу творчества и в наше время часто пересекается с другими направлениями интерьера

Фьюжн никогда не бывает скучным, ведь в нем причудливо переплетаются элементы самых разных стилей, наиболее близких хозяевам квартиры
Предпочитаемая гамма в зависимости от стороны света:
| 1. | Север | Теплая гамма (желтые, бежевые, абрикосовые, розовые и бордовые тона, терракота). |
| 4. | Восток | Тона, усиливающие освещение, когда солнце идет к закату (апельсиновый, сиреневый, желтый, красный). |
Ремонт рекомендуется завершить грамотным подбором мебели, соответствующей стилистике дизайна. Для современной детской можно выбрать двухъярусную мебель, если дизайн готовят для двоих мальчиков.

В комнате для двоих детей всё должно быть умножено на два

Два рабочих места около окна и две кровати, размещенные изголовьем друг к другу

Места для учебы организованны на общей столешнице, установленной вместо подоконника

Цветовая палитра из бежевого и терракотового цветов отлично вписалась в интерьер этой комнаты для мальчиков-подростков
Не рекомендуется оставлять старые «шедевры» советской и постсоветской эпохи, даже если это любимая мягкая или корпусная мебель. Замените фасады на новые, если это встроенная мебель. А комфортный мягкий уголок с креслами для объединенной гостиной-столовой лучше осовременить перетяжкой. Экокожа и флок с тефлоном отталкивает жидкости загрязнения, если случайно опрокинуть чашку чая или уронить бутерброд с вареньем.
Ремонт 3-х комнатной квартиры п-44. Дом серии П44Т. Разбираем планировки (фото). Почему панельный дом так популярен у покупателей?
Рабираем все типы планировок и цены!
Чаще всего панельные дома относятся потребителем к эконом-сегменту, но есть в России и очень популярные серии панельных домов. Некоторые уже сняты домостроительными комбинатами с производства, но до сих пор пользуются повышенным спросом: серия П44Т, КОПЭ, КОПЭ-Парус, П3М.
Сегодня речь пойдет о серии П44Т, про которую покупатели говорят так:
"Это такой с кирпичиками!"

действительно, фасадная панель стилизована под кирпич (фото из личного архива Vysotsky Estate)
КОГДА И КЕМ СПРОЕКТИРОВАНА?
Данная серия домов производится до сих пор, хотя все меньше заказывается компаниями Застройщиками. Производством занимается ДСК1.
Спроектирован дом в Московском научно-исследовательском и проектном институте типологии, экспериментального проектирования. Унаследовал основу квартирографии от серии П44, также популярной у потребителей .

Многие спальные районы Москвы застроены домами серии П44 (фото из личного архива Vysotsky Estate)
Серия П44Т была запущена уже в постсоветское время в 1997 г. И была очень популярна в период реновации Москвы "эпохи Лужкова"
ТЕХНИЧЕСКИЕ ХАРАКТЕРИСТИКИ

характеран эркерами и скошенными лоджями (фото из личного архива Vysotsky Estate)
Наружные стены - трехслойные железо-бетонные панели (бетон - полистирол - бетон) толщиной до 30 см повышенной теплоизоляции.
Межквартирные и межкомнатные несущие – железо-бетонные панели толщиной 16 и 18 см. Крупноразмерные перекрытия толщиной 14 см по ширине комнат.
Высота потолков: 2.70-2.75 м
Первые этажи серии - нежилые помещения. Часто сдаются под магазин.
Наиболее распространенные дома 14, 17 и 25 этажей.
РАЗБИРАЕМ ПЛАНИРОВКИ
И тут мы доходим до самого интересного. Именно из-за планировок эта серия дома так популярна.
Однокомнатные квартиры в П44Т
Общая площадь: 39,8 м2
Комната: 19 м2
Кухня: 6,9 м2
Санузел совмещенный: 3,6 м2
Прихожая: 7,2 м2

Однокомнатная квартира в П44Т (картинка отрисована в Vysotsky Estate)
Однокомнатные квартиры, как раз ничего примечательного из себя не представляют. Не самая большая площадь. Планировка стандартная. Разве, что заслуживает внимание площадь саунзла, которая позволяет разместить спокойно все необходимое.
В зависимости от района Москвы такие квартиры по данным истории сделок в Сбербанке продавались в 2018-2019 году:
от 5 900 000 до 7 500 000 рублей
Двухкомнатные квартиры в П44Т
Двухкомнатные квартиры в этой серии домов встречаются трех видов: так называемые "линейка", "распашонка"
"Линейка"
Линейка, потому что комнаты расположены по одной стороне дома, окна выходят на противоположную от подъезда сторону.
Общая площадь: 53.4 м2
Комната1: 18,9 м2
Комната2: 11,5 м2
Кухня: 9,7 м2
Санузел раздельный: 2,8 +1 м2
Прихожая: 2,6 м2
Такая квартира не самая популярная в этом доме. Но из-за большой кухни пользуется повышенным спросом.
В зависимости от района Москвы такие квартиры по данным истории сделок в Сбербанке продавались в 2018-2019 году:
от 8 000 000 до 10 500 000 рублей
Двухкомнатная "распашонка"
Большая кухня с эркером играет роль кухни-гостиной

Распашонк
Распашонка, потому что комнаты выходят на обе стороны дома
Общая площадь: 60 м2
Комната1: 18,9 м2
Комната2: 14,8 м2
Кухня: 12,9 м2
Санузел раздельный: 3,9 +1 м2
Прихожая: 9,5 м2
Самая популярная квартира в этом доме. Часто ее покупают взамен 3-комнатной квартиры.
В зависимости от района Москвы такие квартиры по данным истории сделок в Сбербанке продавались в 2018-2019 году:
от 9 500 000 до 12 500 000 рублей
Трехкомнатные квартиры в П44Т
мы собрали планировки на одной картинке
Все трехкомнатные квартиры в П44Т имеют формат "распашонки". Большой холл при входе. Главное отличие только в кухне.
Общая площадь: от 73,1 м2 до 81,2 м2
Комната1: от 18,9 м2 до 19,2 (с лоджией и есть вариант с эркером, что добавляет света)
Комната2: от 14 до 14,8 м2
Комната3: от 11,1 м2 (лоджией) до 20 м2 (с эркером)
Кухня: от 10 до 12,9 м2
Санузел раздельный: 3,9 +1 м2
Прихожая: 9,5 м2
Все варианты трехкомнатных квартир пользуются популярностью.