Как обустроить 2 комнатную квартиру для семьи с 2 детьми. Однушка 35 кв. м для семьи с двумя детьми
- Как обустроить 2 комнатную квартиру для семьи с 2 детьми. Однушка 35 кв. м для семьи с двумя детьми
- Дизайн 2-х комнатной квартиры для семьи с ребенком. Главное — практичность: два проекта 2х комнатных квартир для семьи с ребенком
- Дизайн трехкомнатной квартиры для семьи с двумя детьми. Практичный интерьер квартиры для семьи с тремя детьми
- Двухкомнатная квартира с ребенком. Варианты планировки двухкомнатной квартиры
- Идеи для однокомнатной квартиры с двумя детьми. Дизайн квартиры-студии для семьи с ребёнком
- Вчетвером в двухкомнатной квартире. Двухкомнатная квартира для семьи из 4-х человек
- Видео дизайн двухкомнатной квартиры для семьи с ребенком
Как обустроить 2 комнатную квартиру для семьи с 2 детьми. Однушка 35 кв. м для семьи с двумя детьми
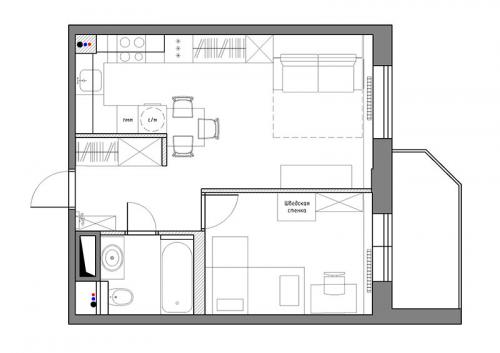
Изолированную комнату отдали под детскую, а в кухне-гостиной установили удобный диван-кровать и вместительную систему хранения.

Площадь однокомнатной квартиры в ЖК «Юнион» в Санкт-Петербурге, которую оформили специалисты бюро Cubiq Studio, составляет всего 35 м2. Жить в ней планирует семья с двумя детьми. Им могло бы быть тесно на скромной площади, если бы не главное преимущество квартиры. Коммуникации подведены в более глубокой и темной части большой комнаты. Благодаря этому удалось превратить её в кухню-гостиную, а маленькую изолированную спальню превратить в детскую.

Поскольку родителям предстоит спать в гостиной, дизайнеры выбрали диван-трансформер, который превращается в полноценную двуспальную кровать. Напротив неё установили комод под телевизор и пару открытых полок для книг.

Зону прихожей отделили от основного пространства нишей со встроенным шкафом для верхней одежды. А чтобы помещение не казалось тесным, в холле установили большое зеркало в белой раме, а проем оставили широким. Благодаря этому комната будто продолжается за пределы прихожей.

Кухонный гарнитур встроили в небольшую отведённую для него нишу. Выбрали максимально вместительную П-образную модель с минималистичными белыми матовыми фасадами. Верхние шкафы чуть уже, а нижние – вровень со шкафом, который как будто их продолжает. На самом деле это система хранения для всех вещей, которые необходимы большой семье.

Поскольку зона кухни уж очень тесная, одну из стен освободили от верхних шкафов. Вместо них предусмотрели открытые полки для зелени и специй. В качестве кухонного фартука здесь использовали грифельную краску.

В детской комнате появилась двухъярусная кровать, причём спальные места расположены перпендикулярно друг другу. Это позволило внизу обустроить дополнительные полочки и зону отдыха с пуфом-игрушкой. Рядом – письменный стол со всеми необходимыми принадлежностями.

Шкаф выбрали с открыто-закрытой системой хранения. Это позволяет хранить в нём и повседневную одежду, и игрушки с книжками. Предусмотрели и компактную шведскую стенку, которая занимает минимум места.


Хотите видеть больше подобного в своей ленте – ставьте лайк.
Чтобы регулярно смотреть свежие подборки интерьеров со всего мира, подпишитесь на канал .
Дизайн 2-х комнатной квартиры для семьи с ребенком. Главное — практичность: два проекта 2х комнатных квартир для семьи с ребенком

Владельцы 2х комнатных квартир, имеющие одного или двух детей, обычно недолго думают, как распределить комнаты для членов семьи. Спальня отдается младшему поколению, а родители живут в гостиной. Этого правила придерживались 30-50 лет назад, принцип не изменился и сегодня.
Но способы реализации значительно расширились. И дело даже не в том, что детская выглядит намного привлекательнее, чем была у нас самих в детстве (это само собой разумеется), главное — как зонируется и оформляется остальное пространство квартиры.
Вы по-прежнему считаете, что две комнаты — это очень мало для комфортной жизни семьи с ребенком? В таком случае смотрите этот виртуальный тур — 2 проекта квартир от дизайнера по интерьеру из Челябинска.
Объединяет обе квартиры то, что они двухкомнатные, а также наличие отдельной детской, кстати, весьма оригинально оформленной в обоих случаях. Одна квартира поменьше (45 кв.м, в кирпичном доме), другая — побольше (56 кв.м, — в панельном). А дальше начинаются различия:
- в одном проекте гостиную и кухню объединяют, а в другом они изолированы;
- в одном санузел становится смежным и приобретает максимальный объем, в другом сохраняется раздельность;
- кроме того, в первом случае небольшая квадратная прихожая отделена от коридора, во втором входная зона — лишь его часть, обозначенная визуально.
Дизайнерские решения автора учитывали, с одной стороны, особенности геометрии внешнего периметра и положение окон, с другой — пожелания заказчиков. В виртуальном туре 34 фотореалистичные картинки + 2 плана для каждой квартиры
Хотите быть с нами на связи каждый день? Добро пожаловать на нашу Планету Вдохновения Вконтакте! Загляните, пролистайте! Нравится? Присоединяйтесь и получайте вдохновение каждый день!
Дизайн трехкомнатной квартиры для семьи с двумя детьми. Практичный интерьер квартиры для семьи с тремя детьми
Семейный интерьер требует особого подхода, считает руководитель бюро архитектор Борис Уборевич–Боровский. Тем более когда речь идёт о совсем маленьких детях. Во время проектирования архитекторы учитывают ряд моментов, которые в дальнейшем делают жизнь семьи более комфортной и удобной.
Общий вид общественной зоны. Столовую архитекторы расположили в самой эффектной части гостиной — у панорамного окна с видом на Москву–реку и парк. Кухня, Dada. Диван, Black Tie. Барные стулья, Cattelan Italia
Общий вид общественной зоны. Столовую архитекторы расположили в самой эффектной части гостиной — у панорамного окна с видом на Москву–реку и парк. Кухня, Dada. Диван, Black Tie. Барные стулья, Cattelan Italia
«Просто задумайтесь, как живёт и функционирует семья с маленьким ребёнком? — рассуждает Борис. — Когда появляются дети, семья становится очень активной в плане движения. Никто не сидит на диване, малыши постоянно бегают, догоняют друг друга, разбрасывают игрушки, куда‑то залезают, прыгают на диванах, скачут по креслам, носятся сломя голову. Жизнь ребёнка в корне отличается от той жизни, к которой привыкли мы, взрослые люди.В доме постоянно присутствует движение, поэтому семейный интерьер надо выстраивать по несколько другим принципам, отличным, например, от интерьера, где нет детей. Обязательно нужно продумывать внутренний сценарий, который позволит родителям легче справляться с проблемами. В пространстве должен быть воздух, простор для свободы маневра. Оно должно быть свободным от лишних предметов, элементов, максимально нетравмоопасным, чтобы ребёнок мог легко передвигаться, не натыкаясь на что-либо. Не должно быть узких проходов, плохо закреплённых предметов, каких‑то искусственных препятствий в виде дверей, перегородок, лишних колонн, нагромождения мебели».Вид из кухни на телевизионную зону. Деревянные поверхности в интерьере (кухонные фасады, панели в гостиной и спальне) создают атмосферу теплоты и уюта. Сдержанный интерьер обогащает отделка пола из американского ореха: изысканная фактура дерева и способ укладки (доски разной ширины из массива) вносят особую выразительность в пространство квартиры. Подвесные светильники над кухонным островом, Tom Dixon
Вид из кухни на телевизионную зону. Деревянные поверхности в интерьере (кухонные фасады, панели в гостиной и спальне) создают атмосферу теплоты и уюта. Сдержанный интерьер обогащает отделка пола из американского ореха: изысканная фактура дерева и способ укладки (доски разной ширины из массива) вносят особую выразительность в пространство квартиры. Подвесные светильники над кухонным островом, Tom Dixon
Исходя из этого архитекторы разделили пространство квартиры на общественную зону (гостиная, кухня иобъединены в одно функциональное помещение) и приватную, состоящую из спальни родителей, гардеробной,и двух детских. Позаботились и о практичности. В отделке использованы «вандалоустойчивые» поверхности. Фасады шкафов, деревянные панели легко отмываются от детских каракулей и рисунков.
Двухкомнатная квартира с ребенком. Варианты планировки двухкомнатной квартиры
Рассмотрим способы, позволяющие обустроить в таком пространстве главные функциональные зоны.
Совмещение кухни с гостиной
Подобный прием особенно хорош в том случае, когда размеры комнат не совпадают и меньшая из них примыкает к кухне. Демонтаж перегородки между помещением для готовки и смежным пространством позволит обрести значительно большую свободу действий. Однако обозначить зоны кухни и гостиной все-таки придется. Для этого можно:
- Разделить функциональные части помещения предметом в виде барной стойки, высокой спинки дивана или легкой раздвижной перегородки.
- Подобрать для каждой зоны свое напольное покрытие. Кухню, например, хорошо оформить крупной плиткой, а гостиную – ламинатом.
- Отделать стены отличными друг от друга способами. Здесь неплохо поэкспериментировать с цветами и фактурами.

Разделение кухни и гостиной.

Грамотное применение напольного покрытия.

Акцентная стена в гостиной зоне.
В оставшейся части квартиры можно обустроить спальню-детскую.
Муж и жена, а рядышком дитя
Речь идет о спальне, в которой будут комфортно чувствовать себя все члены семьи. Вернее, о спальне-детской, ведь помимо размещения кроватей в этой же комнате можно попытаться обустроить для сына или дочери собственный уголок.
Если ребенок совсем кроха, удобно просто поставить его кроватку рядом с ложем родителей. Малыш всегда будет под боком, и успокоить его ночью не составит труда.

Спальня для родителей и малыша.
В дальнейшем, когда ребенок подрастет, лучше разграничить пространство, используя ширму, штору, широкий стеллаж или вертикальные жалюзи, и здесь находящие свое применение.

Сложенная штора между взрослой и детской зоной.
Вторая комната квартиры может стать гостиной, как отдельной, так и совмещенной с кухней или кабинетом.

Гостиная-кабинет.
Рациональная идея – спальня-гостиная
Можно вполне понять родителей, желающих отдать любимому чаду целую комнату. Это решение является еще больше оправданным, если муж и жена планируют в будущем иметь больше детей. Итак, когда нет сомнений в назначении одной из комнат, остается подумать о том, как наиболее выгодно использовать квадратные метры второго помещения. Неплохим решением является организация в нем спальни-гостиной.
Идею обустройства такой комнаты можно реализовать по-разному. Один из вариантов предполагает наполнение интерьера многофункциональными предметами. Здесь, например, неплохо поставить раскладные кресла или удобный диван, оснащенный откидной спинкой. С такой меблировкой одно и то же помещение днем будет выступать в роли просторного зала, а ночью – превращаться в уютную спальню.

Многофункциональная мебель в спальне-гостиной.
Можно обойтись и без предметов, способных трансформироваться. Тогда снова стоит прибегнуть к зонированию. Одно из удачных решений – отделение спального места от остального пространства с помощью балдахина.

Обособление спального места с помощью балдахина.
Сквозная перегородка, пропускающая свет, тоже неплохой вариант.

Сквозная перегородка в комнате.
Две комнаты: спальня и детская
При такой организации пространства основные помещения станут полноценными комнатами. Одна из них, являясь спальней, будет всецело принадлежать взрослым, другая станет уютным гнездышком для ребенка.

Приятно находиться в этой светлой бежевой спальне.

Отдельная детская комната.
Но куда в таком случае привести гостей? – Прямо на кухню. Конечно, при условии, что площадь этого помещения позволит разместить в нем хотя бы скромный диван.

Диван отлично вписался в кухню.
Идеи для однокомнатной квартиры с двумя детьми. Дизайн квартиры-студии для семьи с ребёнком
Сегодня без посторонней помощи не каждый может позволить купить себе «однушку» или квартиру-студию. Рассмотрим идеи как грамотно расставить мебель, предметы и поделить пространство, чтобы всем членам семьи было комфортно находиться в квартире.
Молодая семья из Санкт-Петербурга следующим образом оформила интерьер своей студии площадью в 27 квадратов. Они разрабатывали дизайн самостоятельно. Основной идеей было сделать полноценную детскую комнату, вместить двуспальную кровать, создать просторную гостиную. Вот, что у них получилось.

Для кухни молодые выделили небольшое место и отделили его от комнаты перегородкой. Просторная столешница заменила стол. Белые шкафчики подвешены к потолку. Микроволновка расположена на полке. Хоть все и впритык, но аккуратно и без лишнего «хлама».

Вместительная комната (17,9 м²) позволила создать просторную гостиную и детскую. Последняя зонирована гипсокартоновой перегородкой, возведенной не до потолка. Так не создаётся ощущения давления стен. Диван поставлен вплотную к стене, напротив — телевизор. Удачное сочетание синего, бежевого и белого цвета визуально расширяет пространство.

Маленькая спальная. Как говорится; «в тесноте, да не в обиде».

Пока ребёнок не вырос, ему здесь достаточно места. А через несколько лет, родители накопят на новую квартиру).

Гардеробная с вместительным комодом и коробочками из IKEA.

Дополнительное рабочее место в лоджии.

Ванная комната с сочетанием красной и белой плитки. Глубокая раковина в скандинавском стиле и натяжной потолок. Порошки и средства для мытья расположены на верхней полке.


Прихожая "в клетку" выглядит классически стильно, а тёмная плитка на полу гармонично сочетается с бежевыми дверями.

Подводя итог, можно отметить, что в целом квартира получилась уютной, у каждого члена семьи есть свой уголок. В гостиной — простор и отсутствует нагромождение предметов. Лоджия, как дополнительное место для работы, способна разгрузить пространство главной комнаты. Стильная ванная и классическая прихожая еще раз доказывают аксиому: «всё зависит от людей». Как часто бывает, что большие квартиры с дорогущей мебелью выглядят отвратительно и несуразно. А на эту маленькую квартирку приятно смотреть и через экран монитора.
Вчетвером в двухкомнатной квартире. Двухкомнатная квартира для семьи из 4-х человек
Евгений и Маша рассказали о том, как переделывали интерьер своей квартиры. Далее с их слов.
Мы живем в двухкомнатной квартире с площадью 50 кв. м. вчетвером. До появления сына Платона у нас была отдельная спальня, в которой стояла колыбель для дочки Златы. Но теперь малышка подросла и ей необходимо отдельное пространство. Так что бывшая спальня стала детской, а свое спальное место мы решили переоборудовать в гостиной.
Мы долго продумывали вариант планировки, который бы подошел всем и оказался бы наименее затратным.Нам нравится стиль лофт, и металлическая стеклянная перегородка в таком стиле, как нам казалось, идеально бы подошла для зонирования комнаты. Но стоимость таких изделий оказалась неподъемной, так что мы заказали деревянные витражные окна, которые можно сделать под любой размер.
Перегородку дополнили белой гардиной, которая позволяет не мешать спящему Платону светом от экрана телевизора.Площадь нашей кухни – 9 квадратов. Мне очень хотелось установить там уютный диван, но после покупки вместительного стола стало ясно, что дивану на кухне не место. Зато стол мы дополнили привезенными с дачи стульями, которые разукрасили в яркие цвета.
Чтобы сэкономить место и сделать кухню больше, объединили ее с балконом, установили там систему теплых полов. Именно на балконе расположился холодильник и микроволновка.
Очень удачным стало решение нанести на стену в рабочей зоне грифельное покрытие. Иногда я записываю на нем рецепты, которые собираюсь приготовить.
Какого-то стиля оформления детской мы не придерживались. Желтая стена осталась еще с времени, когда комната служила спальней. Она располагалась в изголовье кровати.
Дерево на одной из стен рисовала самостоятельно. Мы перекрасили шкаф, который раньше стоял в гостиной, добавили к нему штангу и превратили его в шкаф для одежды и игрушек.
Ванная комната отличается по стилю от интерьера остальной части квартиры. Вместо кирпичных стен и светлой цветовой гаммы здесь расположилась яркая плитка, которая напоминает об арабских странах.