Легко и просто: как создать план дома своими руками
- Легко и просто: как создать план дома своими руками
- Связанные вопросы и ответы
- Какие инструменты и программы лучше всего использовать для создания плана дома
- Как правильно измерить комнаты, чтобы сделать точный план
- Какие основные правила нужно соблюдать при создании плана дома
- Можно ли сделать план дома без специальных знаний и навыков
- Как внести изменения в уже существующий план дома
- Какие ошибки чаще всего допускаются при создании плана дома
- Как создать 3D-модель дома на основе плана
Легко и просто: как создать план дома своими руками
Ну вот, мы уже вплотную подбираемся к стройке дома нашей мечты, пусть небольшого, но нашего!
Прежде, чем что-то проектировать, надо понять бюджет, который вы готовы выделить на строительство. Как я говорил в своих предыдущих статьях, мы выбрали строительство загородного дома, чтобы решить свои жилищные проблемы, т.к. это дешевле, чем покупка квартиры.
Итак, мы хотим площадь дома такую, чтоб она была равна большой квартире в городе, т.е. не менее чем 100 м2. Бюджет выделили 1,5 млн. руб. на материалы и работы (2014 год). Без чистовой отделки.
1) Первое, что нужно сделать - это определить габариты дома. Размер своего дома мы определили ещё на стадии получения разрешения на строительство: 11,11х7,22 метра.
2) Необходимо выбрать свою технологию строительства. Позднее я посвящу этому статью, но сейчас, забегая вперёд, скажу, что мы выбрали Каркасный дом. Если кратко, то за 3 основные его преимущества:
- Быстро.
- Дёшево.
- Тепло.
3) В чём рисовать план дома, чтоб можно было быстро редактировать. На просторах интернета можно найти бесплатную программу СкетчАп, в которой можно легко рисовать 3d проекты, а сама она настолько простая, что изучить её функционал можно за полчаса.
4) Определить этажность дома. Многие рекомендуют строить одноэтажные дома, но пошире. Такие дома занимают больше площади земли участка, но плюсом считается отсутствие лестницы, которая в 2 этажных домах занимает много места.
Мы выбрали 2 этажный. Не знаю почему, но загородный дом у меня всегда ассоциировался с двумя этажами.
5) Определить помещения, которые необходимы в доме. Мы начали с обязательных:
Прихожая - обязательна на 1 этаже, нужно же где-то раздеться войдя в дом.
Санузел - обязательно на всех этажах, чтоб не бегать сверху вниз, поэтому мы планируем два.
Коридор - обязателен на всех этажах, т.к. мы не приемлем проходных комнат.
Техническая комната - обязательна, т.к. там будет газовый котел, который даёт отопление и горячую воду, бойлер, ввод воды в дом, электрощиток, стиралка, гладилка, пылесос и немного места для кладовки.
Лестничный проём - обязательное место для посещения 2 этажа.
Далее определяем жилые помещения:
На первом этаже необходима большая кухня-гостиная с открытым пространством, где будет собираться вся семья.
Так же на первом этаже необходима хотя бы одна гостевая комната, пусть небольшая, но была.
Второй этаж: спальня и детские комнаты. Детские нужны две, т.к. супруга к моменту проектировки уже была беременна вторым ребёнком.
Ну и последнее необязательное и нежилое помещение, но очень полезное: Терраса - на ней всегда можно устроить летнее застолье, повесить гамак, сиденья или скамейки, чтоб посидеть и отдохнуть. Хотя в Санкт-Петербурге есть поговорка: Каждая терраса мечтает стать верандой, но мы не хотели её закрывать, поэтому делаем открытой, но с крышей.
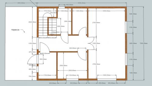
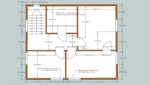
При прорисовке планировки, мы во многом ориентировались на проект Монтана (КД-104), т.к. изначально понравился он, но немного изменили его, убрав выступающую часть дома, арку между кухней и гостиной, передвинули прихожую с лестничным проёмом влево, а вместо гаража сделали террасу.
Вот Монтана: (фото 1)
А вот, что получилось у нас нарисовать в программе СкетчАп: (фото 2 и 3)
Позднее мой будущий застройщик перенес мой чертеж в Архикад и выдал мне полную планировку внутреннюю и внешнюю. Вот так выглядел полный план моего будущего дома: (фото 4 и далее)
С внешней отделкой мы ещё не определились, поэтому в проекте стандартная прорисовка обшивки имитацией бруса.
В следующей статье я расскажу как мы выбирали фундамент для нашего будущего дома.











Связанные вопросы и ответы:
Вопрос 1: Как правильно измерить комнату для создания плана дома
Для начала измерьте длину, ширину и высоту комнаты с помощью рулетки. Запишите все размеры, включая дверные и оконные проемы, а также расположение коммуникаций, таких как розетки и выключатели. Убедитесь, что измерения точные, так как это важно для создания точного плана. Если вы измеряете большое помещение, разделите его на несколько частей и измерьте каждую отдельно. После этого перенесите все данные на бумагу или в программу для создания чертежей.
Вопрос 2: Какие инструменты мне понадобятся для создания плана дома?
Для создания плана дома вам понадобится рулетка для измерения помещения, карандаш и бумага для чертежа. Если вы хотите использовать цифровые инструменты, можно воспользоваться планшетом или компьютером с программой для архитектурного проектирования, такой как AutoCAD, SketchUp или бесплатные альтернативы, например, Floorplanner. Также полезно иметь ластик для исправления ошибок и линейку для рисования прямых линий. Для более точных расчетов можно использовать калькулятор.
Вопрос 3: Как сделать чертеж плана дома на бумаге?
Начните с рисования основного контура комнаты на бумаге, используя линейку и карандаш. Укажите все измерения, которые вы сделали ранее, включая длину, ширину и высоту стен. Затем добавьте двери и окна, обозначив их соответствующими символами. Не забудьте отметить расположение коммуникаций, таких как розетки и выключатели. Если вы хотите добавить мебель, нарисуйте ее в масштабе, чтобы план был более наглядным. Проверьте все измерения и исправьте возможные ошибки.
Вопрос 4: Какой масштаб использовать для плана дома?
Для создания плана дома обычно используют масштаб 1:50 или 1:100. Это означает, что 1 сантиметр на чертеже соответствует 50 или 100 сантиметрам в реальной жизни. Выберите масштаб в зависимости от размера помещения и размера бумаги. Например, для небольших комнат лучше использовать масштаб 1:50, а для больших помещений — 1:100. Убедитесь, что все элементы на чертеже пропорциональны, чтобы план был понятен и удобен для использования.
Вопрос 5: Как добавить двери и окна в план дома?
Для добавления дверей и окон в план дома обозначьте их на чертеже. Двери обычно изображаются в виде прямоугольников с указанием направления открывания стрелкой. Окна рисуются в виде прямоугольников или других форм, в зависимости от их типа. Укажите размеры дверей и окон, а также их расстояние от стен и углов. Если вы используете программу для проектирования, можно выбрать готовые символы дверей и окон из библиотеки. Проверьте, чтобы все элементы были правильно расположены и пропорциональны.
Вопрос 6: Как создать трехмерную визуализацию плана дома?
Для создания трехмерной визуализации плана дома можно использовать специальные программы, такие как SketchUp, Blender или AutoCAD. Загрузите ваш план в программу и добавьте высоту стен, крыши и других элементов. Затем выберите материалы для стен, пола и потолка, чтобы визуализация была более реалистичной. Позиционируйте камеру для создания разных видов, таких как вид сверху, сбоку или изнутри. Экспортируйте визуализацию в виде изображения или видео для дальнейшего использования. Это поможет лучше представить, как будет выглядеть дом в реальности.
Вопрос 7: Как использовать план дома для строительства или ремонта?
План дома можно использовать для строительства или ремонта, чтобы визуализировать будущий результат и убедиться, что все элементы правильно расположены. Покажите план подрядчикам или архитекторам, чтобы они могли выполнить работы в соответствии с вашими требованиями. Используйте план для закупки материалов, рассчитывая необходимые количества. Во время строительства или ремонта сверяйтесь с планом, чтобы убедиться, что все идет по задумке. Если возникают изменения, обновляйте план и согласовывайте его с исполнителями.
Вопрос 8: Как проверить и исправить план дома?
Для проверки плана дома изучите все измерения и убедитесь, что они соответствуют реальному помещению. Проверьте расположение дверей, окон и коммуникаций, чтобы они не пересекались и были логично размещены. Если вы используете программу, воспользуйтесь функциями проверки масштаба и пропорций. Попросите кого-то другого посмотреть на ваш план и дать обратную связь. Если обнаружены ошибки, исправьте их, изменив размеры или переместив элементы. После исправлений еще раз проверьте план, чтобы убедиться, что все верно.
Какие инструменты и программы лучше всего использовать для создания плана дома
Что бы начать думать над пространством его нужно сначала замерить. Планам от БТИ доверять (как показала практика) не следует. Так как же произвести замер одного помещения, квартиры или коттеджа? На самом деле всё просто.
Если предстоит замерить квартиру или коттедж, т.е. такое пространство где много комнат, коридоров и других помещений, то не стоит пытаться нанести на план всё сразу. Нужно проводить замеры по каждому отельному помещению, это и проще и понятнее. Позже все эти замеры соберутся (или не соберутся, стены бывают кривые, а то и углов прямых бывает что не бывает) в единую картину либо на чертеже на листе, либо в программе.
Начнём замеры!
Выбрали для себя первое помещение для замера. Взяли в руки планшет (тот который такая твёрдая штука, куда обычный лист бумаги крепится) и карандаш с ластиком (все ошибаются). Оглядели помещение повнимательней и нанесли на бумагу примерный план этого помещения, не нужно стараться рисовать линии ровно или пытаться передать рисунком пропорции помещения и всех его закутков - это всё само встанет на свои места при переносе с этого черновика на чертёж с правильными замеренными размерами.
Далее, выбрали любой удобный для себя угол или выступ стены, нашли его на своём наброске плана помещения, взял и в руки рулетку и по правилу «буравчика» стали промерять все стены и проёмы и двери в помещении, не забывая записывать размеры на лист. Дойдя до окна следует замерить высоту от пола до подоконника (мы обычно у окна рисуем два размера Н1 и Н2) и подписать его (допустим Н1=857) и тут же измерить высоту окна от подоконника до оконного проёма (допустим Н2=1585). И это ещё не всё с окном, желательно измерить толщину стены у окна (ширину откоса). Идём дальше по плану. Тут нам встречается дверь. Если замеры производятся в новостройке, то на плане у нас появится ширина проёма, а вот если замеряем вторичку, то удобнее всего замерить само полотно двери (и не забыть указать это на своём листе замера), от ширины полотна легко выяснить какой у нас там проём спрятан. Да и с дверью это опять не всё! Теперь стоит замерить высоту проёма или высоту дверного полотна. А также отметить на листе замера толщину стены в которой этот самый дверной (да или просто) проём образован.
После того как вы на своём листе вернулись к точке начала измерений, стоит произвести несколько контрольных измерений - а именно измерить его общую длину и ширину и отметить их на плане дополнительными линиями или стрелочками или линиями со стрелочками или синими слониками, на ваше усмотрение…
Ну и не забываем измерить общую высоту помещения и отметить её на листе, написав по центру (между всеми этими циферками и стрелочками и слониками) допустим Н=2865.
А если в нашем помещении куча потолочных балок, а на вашем листе уже чёрт ногу сломит?! Тут тоже не стоит отчаиваться (ну если конечно вы не взяли на замер всего один лист бумаги). Берём следующий чистый лист, уже мастерски наносим контуры нашего помещения и пунктирами наносим на него все балки и другие потолочные конструкции который вы заметили. И под каждой балкой, или что там на потолке, отмечаем на листе её высоту, а если найдёте стремянку или возьмёте с собой лазерный уровень, то можно привязать балки к стенам (не верёвками, а размерами, это сленг такой).
Если помещения сложностроенные, то можно нанести общий план на один лист и отметить на нём размеры которые свяжут сразу несколько помещений между собой. Это иногда очень помогает, когда забывается нанести толщины проёмов или стен. Или когда толщину стен между помещениями нет возможности измерить.
И так по каждому помещению вы с лёгкостью пробегаете и у вас на руках ЗАМЕРЫ.
Ну а теперь можно ещё раз пройтись по всем помещениям (если их конечно много) и посмотреть, а не забыли ли вы отметить канализацию и стояки отопления и водоснабжения? А батареи то как вообще стоят? а трубы для батарей? А вытяжки? Очень помогают фотографии общего плана на помещения, 4 штуки на одно помещение.
Теперь ваши замеры позволят вам, с помощью удобных для вас средств подумать над вариантами расстановки мебели или над перепланировкой всего пространства.
Или если вы решите заказать дизайн проект у дизайнеров, то даже на удалёнке вам с ними будет легко и просто сработаться.
Пример замера на фото.

Как правильно измерить комнаты, чтобы сделать точный план
Нас часто спрашиваю, как освоить профессию, если в ВУЗе не учился? Уже нет на это времени. В интернете курсов тоже таких нет… Ведь это колоссальный объем информации. Профессии обучаются 5 лет. Да и вообще, можно ли самому со всем этим разобраться? Задача очень сложная, но вполне реальная. Вот вам пошаговый чек-лист от человека, который прошел невероятный путь от грузчика до высококлассного проектировщика!
ШАГ 1. Как заставить себя учиться?
Мы определились, что хотим освоить что-то новое, сложное, непонятно. С чего начать?
У вас есть желание или мечта, например, стать дизайнером интерьеров. Эту мечту надо "перепрограммировать" у себя в голове на цель. А дальше ищите возможность достижения своей цели. Главное не искать причины "Почему я не могу этого сделать?", а искать ответы на вопрос "Как это сделать?".
ПРИМЕР:
Что имеем? | Работаю кассиром | |
О чем думаем? | Но я же не могу бросить работу! У меня дети. Времени на учёбу совсем нет. А вдруг не получится? | Как бы мне научиться дизайну? Работаю я до 20-00, дети ложатся спать в 22-00. Полежу 30-60 минут, посмотрю "обучалки" всякие в интернете. Лягу спать на час позже, но сегодня буду ближе к своей цели! |
РЕЗУЛЬТАТ через 5 лет | Полный провал! Кассир, который не довольный своей работой / жизнью / окружением | ✅ Успешный дизайнер, который работает с премиум сегментом. Возможность путешествовать и получать кайф от жизни. |

Вывод: мотивируем себя и начинаем изучать все, что есть в открытом доступе. Смотрим YouTube, читаем статьи, нормативные документы. Собираем базу знаний на компьютере.

ШАГ 2. Ищем рабочий инструмент
Знания – важная часть, но этого недостаточно. Теперь нужно найти рабочий инструмент. Он есть у любого ремесленника: у визажиста – косметика, у таксиста – машина, у повара – целый арсенал инструментов и оборудования. А что должно быть в руках проектировщика? Современная программа!

Проект должен быть, как конструктор Lego! Не равняйтесь на других, если вас что-то смущает. Не понятный проект, есть вопросы? Значит нужно сделать лучше!

ШАГ 3. Подключаем тяжелую артиллерию. Ищем спецов, которые помогут.
После того, как был проработан весь материал в открытом доступе нужно задуматься о прокачке своих скилов. Самое время найти профессионалов и перенять у них опыт.
Не думайте, что специалисты будут нянчиться с вами. Им просто некогда. Похвально, если вы их нашли и даже сумели пообщаться через соц.сети или почту. Но дальше этого дело не сдвинется. Здесь лучше поискать курсы.

На бесплатном материале далеко не уедешь! Не нужно думать, что это развод. Бесплатный курс – это пробник. Чтобы вы могли оценить качество подачи материала, сделать свои первые шаги и определиться, нужен ли вам полный курс. Ведь сейчас в интернете каждый второй готов вас научить за хорошее финансовое вознаграждение. И чтобы найти нормальный курс, нужно потратить много времени на анализ и сравнение материала.
Так Илья пришел к нам на курс
ШАГ 4. Делаем классное портфолио!
Единственный аргумент для работодателя – это пример вашей работы. Очень здорово, что, проходя курс в AMS, вы сразу создаете портфолио. Затем рассылаете его в компании и фирмы. Ждете.
На курсе я создал свой первый проект каркасного дома: проектная документация строго по ГОСТ, со всеми чертежами, 3d видами, разрезами, детальными узловыми соединениями, объемами, размерами и т.д. Отправил нескольким строительным компаниям свое портфолио. Сейчас в одной из компаний проектирую каркасные дома.
Какие основные правила нужно соблюдать при создании плана дома
Кажется, никто не знает ваш дом лучше вас. Вы можете представить его в своём воображении, наполнить его такими формами, чтобы все соседи вам завидовали. Но даже если вы создали прекрасную картину в своём воображении, попытка воплотить этот проект в жизнь может закончиться неудачей, если вы не являетесь архитектором.
Проектирование зданий основывается на определённых принципах и законах. Конечно, можно вносить разнообразие в стили и создавать что-то новое, но нельзя пренебрегать базовыми принципами. Особенно велик риск допустить ошибку в архитектуре при попытке создать необычный проект, который отличается от традиционных.
Например, дом в форме трапеции может выглядеть нелепо, если композиция построена неправильно: верхняя часть может быть перегружена, а нижняя — слишком усечена. Или же при гармоничных пропорциях может оказаться, что входная группа не проработана, и парадная дверь будет восприниматься как чёрный ход.
Иногда вход в здание перегружен деталями, такими как колонны, лепнина и огромные кадки с растениями. Это выглядит безвкусно, хотя владелец, возможно, хотел придать фасаду парадности.
Застройщики также часто используют слишком много декоративных элементов на крыше и делают её сложной формы. Это не только дорого, но и создаёт проблемы: зимой в углублениях скапливается много снега, а после дождей там собирается вода. В результате через некоторое время такая сложная кровля начинает протекать.

Самая распространённая ошибка в планировке частного дома — это нарушение тектонической гармонии восприятия. На первый взгляд может быть сложно понять, чего именно не хватает дому, но видно, что с ним что-то не так. Такой дом не гармонирует с окружающим ландшафтом.
Если все архитектурные законы соблюдены, то здание получится очень гармоничным. Природные материалы, из которых выполнены стены, будут сочетаться с окружающей местностью. Контуры и конструктивные элементы дома создадут ощущение уюта, и сразу же захочется познакомиться с ними поближе. Например, выпить чаю на красивой террасе или отдохнуть в цветущем саду.
Иногда ошибки в планировке частного дома происходят из-за стремления владельцев сэкономить. Не обладая профессиональными знаниями в области строительства, они выбирают облик будущего жилья, ориентируясь только на красивые изображения, не создавая полноценного профессионального проекта. В результате, при строительстве допускаются ошибки, и вместо дома мечты получается источник постоянных проблем.
Можно ли сделать план дома без специальных знаний и навыков
Трехмерное моделирование в AutoCAD позволяет решить поставленную задачу различными способами. Проект дома в Автокаде можно начертить вручную, используя 2D примитивы, а можно создать неограниченное количество связанных проекций из одной 3д модели Автокад .
Рассмотрим, как создать 3D чертеж дома в Автокаде . Начнем с создания стен, т.к. это основа любого строения.
Создание 3d моделей в AutoCAD . Разные подходы в создании стен
Если у вас есть план дома в Автокаде , то задача существенно упрощается.
1. В AutoCAD дом (стены) можно сделать с помощью стандартного примитива «Ящик» с последующим объединением.
2. Стены можно создать с помощью Выдавливания/Вытягивания замкнутого контура.
В одном из своих видеоуроков я рассказывал о создании 3d модели в AutoCAD из плоского чертежа ( см. урок ) с помощью выдавливания замкнутого контура внутренних и наружных стен.
3. Создавать стены можно с помощью команды «Политело».

Полное обучение: "AutoCAD на 100%"
Команда «Политело»
Оптимальный вариант - когда в AutoCAD проекты домов создаются с использованием команды «Политело». Рассмотрим ее подробнее.
Политело является аналогом 2D полилинии и наследует многие ее свойства.

- Можно создавать дугообразные сегменты;
- Параметр «Объект» позволяет преобразовывать плоские примитивы, такие как полилиния, круг, отрезок, прямоугольник и др. в 3D политело;
- Пользователь задает нужную высоту и ширину Политела. При необходимости в палитре «Свойства» (Ctr+1) их можно изменить, когда уже объект создан.
Данных параметров вполне достаточно, чтобы быстро начертить стены и перегородки в доме.
Немного об AutoCAD из 3d в 2d
Самоучитель AutoCAD 3d дорабатывается каждый день. Следите за продолжением данной тематики. В Автокад планировка может быть создана в считанные секунды, если у вас будет готовый 3d жилой дом Автокад . Но и не стоит не уважать 2D моделирование – ведь это основа.
Советую ознакомиться с бесплатным курсом по AutoCAD «Создание проекта от идеи до печати».
Как внести изменения в уже существующий план дома
Я столкнулась с проблемой, что далеко не все визуализаторы умеют читать чертежи, и ничего постыдного в этом нет. Когда есть пробел в знаниях, то его конечно нужно просто закрывать. А я постараюсь вам в этом помочь.
Есть очень много деталей, важных моментов на чертежах, которые могут вызвать недоумение у впервые открывшего их.
А тут еще прибавьте, если вдруг чертежи выполнены без каких-либо таблиц, пояснений к ним. Что за условные обозначения, что они значат? Давайте разберемся.
Я писала в отдельной статье, какая документация и картинки нужны для визуализатора от дизайнера, чтобы приступить к работе.
https://vk.com/@anastasia_reese-gramotnoe-tz-dlya-…
Теперь давайте разберем каждый чертеж.
ОБЩИЙ ЧЕРТЕЖ ПОМЕЩЕНИЯ.
Лучше всего, если дизайнер может предоставить чертеж в формате DWG . Таким образом, визуализатор просто может перенести его в программу 3DsMax и быстрее возвести стены.
Для начала, дорогой начинающий визуализатор, возможно я пишу совсем уж понятные вещи, но возможно для кого-то и эта информация будет в новинку. Так вот, смотрим мы на помещение сверху.
Грамотно составленный чертеж обычно предполагает основной вход в помещение снизу по чертежу.
В условных обозначениях, а такие таблицы ОБЯЗАТЕЛЬНО должны быть составлены, для строителей, указаны обозначения на плане и пояснения к ним. В основном это будут: размерные линии, несущие стены, перегородки. Их толщина обычно указана либо в таблице, например, если она стандартная 100мм, или на плане в разных местах, потому что где-то стена может быть и 120мм, а где-то всего 80мм.
H пр. обозначает высоту проема. Обычно это дверной проем. Стандартная высота дверных проемов в России 2100мм.
H пом. Или просто H=….мм – это высота потолка. Если это проект еще на стадии ремонта, то скорее всего это высота без учета напольных поверхностей и потолка, что тоже займет определенное расстояние. Если на пол ещё можно не сильно ориентироваться, так как пара см не сильно повлияет на визуализацию. А вот потолок в некоторых местах могут опустить на 5-7-10 см.
Н ок. и Н под. -это прописаны высоты подоконника и окна. Подоконника - от пола до верхнего уровня подоконника, и окна - от подоконника до верхнего уровня окна. (Внимание не от пол до верхнего уровня окна).
Далее размерные линии показывают расстояния от стены до дверного проема (чаще всего без учета дверной коробки), затем самого дверного проема, и до окончания стены или примыкания следующей, или до следующего выступа.
Также вы можете наблюдать на чертеже указание радиаторов, их расположение, расстояния от стены, где проходит труба. Насколько они выступают от стены. Или наоборот. Возможно это конвекторы и располагаются в полу.
Кружочками указаны расположения труб и расстояния до них.
Если есть электрощиток, то это тоже обозначено на чертеже с размером от прилегающей стены и сноской, и информацией о размере щитка и высоты, на которой он расположен.
Важно не забывать о вентиляции, она тоже будет указана на чертеже. А это значит, что скорее всего она будет спрятана в короба, и это возможно заставит дизайнера опустить уровень потолка в этом месте.
Что еще не учтено:
1.Насколько выпирает подоконник, это очень важно. На чертеже это должны быть указано с размерами.
2. Иногда под окнами существуют ниши для радиаторов, и тогда батареи не выступают вперед. Это тоже должно быть указано на чертеже. Проверьте этот пункт на фотографиях помещения, возможно дизайнер в схеме забыл вам об этом указать. Так как вам понадобится эта информация в будущем, чтобы знать, где будет проходить линия штор, чтобы ткань «не лежала» в итоге на батареях.
3. Далее все выступы, ниши, балки на стенах или потолке – всё это возможно просто будет указано на отдельном чертеже. Поэтому важно ознакомиться с полным комплектом и посмотреть фотографии помещения по возможности.
Безусловно вам не нужен чертеж со стенами, где что было до возведения новых перегородок, но на нем может быть указана необходимая информация о высотах, выступах и тд. Поэтому лучше, чтобы у вас это было.
ЧЕРТЕЖ МОНТАЖА.
Этот чертеж станет основополагающим для вас, так как тут указаны новые стены. Но хочу обратить ваше внимание, что тут не указаны все необходимые размеры. Если вам был дан чертеж в DWG – вам проще. Если же только такой план, то вам придется совмещать информацию на обмерном чертеже и чертеже монтажа. Поэтому стоит попросить у дизайнера отдельный обмерный план, как должно выглядеть помещение после всех демонатжных/ монтажных работ.
На условных обозначениях появилось новым только синим – монтируемые (то есть новые) перегородки. И красным обозначена шумоизоляция. Стены со сложной конструкцией или выступами обычно указаны, и есть ссылка на развертку. Либо схематично указано рядом с чертежом, как на примере выше. Вид А показывает с какой стороны вы смотрите на конструкцию и рядом чертеж этой самой конструкции. Либо дизайнер даёт вам набросок с идеей от руки.
Какие ошибки чаще всего допускаются при создании плана дома
Вы узнаете
Как осуществлять производственное планирование на предприятии
Какие планы формировать на производственном предприятии
Как контролировать процесс исполнения планов
ЗАДАЧИ ПРОИЗВОДСТВЕННОГО ПЛАНИРОВАНИЯ И КОНТРОЛЯ ВЫПОЛНЕНИЯ ПЛАНОВ
Производственное планирование подразумевает обязательный контроль исполнения планов, чтобы не допустить срыва сроков их исполнения или невыполнения. Это позволяет компании оперативно реагировать и влиять на ход производства.
Контроль выполнения планов производства необходим для:
• определения эффективности деятельности предприятия;
• накопления информации, необходимой для принятия дальнейших управленческих решений;
• расчета и начисления премии по итогам работы предприятия за год;
• поиска и устранения (в дальнейшем) причин срыва сроков исполнения.
Производственное планирование включает планы по производству продукции (оказанию услуг), а также подразумевает вспомогательные планы (например, планы по закупке материалов, так как без оперативного обеспечения материалами невозможно своевременно выполнить производственный план).
Производственное планирование должно отвечать следующим критериям:
- непрерывность — одни планы должны сменяться другими (планы на год или на 5 лет должны детализироваться на более короткие сроки);
- гибкость и адаптивность — предполагают возможность оперативного изменения в случае усиления влияния внутренних или внешних факторов;
- точность — планирование должно не осуществляться по принципу «лишь бы был документ», а содержать максимально приближенные к реальности данные.
Задача производственного планирования — обеспечить:
- слаженность и ритмичность хода всех производственных процессов;
- согласованную работу всех подразделений предприятия;
- равномерное выполнение работы (выпуск продукции, оказание услуг);
- полное и рациональное использование имеющихся экономических и производственных ресурсов;
- максимизацию прибыли.

ФОРМИРОВАНИЕ И КОНТРОЛЬ ИСПОЛНЕНИЯ ПРОИЗВОДСТВЕННОГО ПЛАНА
Показателем планирования и оценки выполнения производственного плана является объем выполненных работ, принятых в плане (то есть соотношение факта и плана в установленных единицах).
Производственный план должен включать данные по готовой продукции и незавершенному производству ( НЗП ).
В соответствии с Федеральным стандартом бухгалтерского учета «Запасы» (ФСБУ 5/2019), утвержденным Приказом Минфина России от 15.11.2019 № 180н, готовая продукция представляет собой конечный результат производственного цикла, а незавершенное производство — пока еще затраты, понесенные на производство продукции, не прошедшей всех стадий (фаз, переделов), предусмотренных технологическим процессом.
Этапы формирования и контроля выполнения производственного плана: 1) формирование и утверждение плана производства; 2) оценка выполнения производственного плана, включая составление отчета о выполнении плана; 3) контроль исполнения производственного плана, включая: • анализ отчета о выполнении плана; • выявление отклонений; • анализ причин отклонений; • внесение корректировок в план производства. |
Важный момент: исполнение годовых планов необходимо контролировать в ходе ежемесячного (или иного оперативного) контроля исполнения планов нарастающим итогом.
Рассмотрим подробнее каждый этап формирования и контроля выполнения производственного плана.
Этап 1. Формирование и утверждение плана производства
В данном случае мы будем говорить о формировании производственных планов, характеризующих объемы производства, которые могут измеряться в:
- стоимостном выражении (рубли или иные денежные единицы). Показатель для предприятия важный, однако производство здесь больше интересуют не финансовые вопросы, а загрузка с точки зрения мощности;
- натуральном выражении (единицы, штуки, килограммы, метры и т. д.);
- трудоемкости (нормо-часы, человеко-часы, человеко-месяцы и др.).
В случае формирования производственных планов или отчетов об их исполнении трудоемкость выполнения работ (изготовления продукции) является самым распространенным мерилом для объема производства.
Производственная программа представляет собой плановое задание по выпуску продукции. Здесь очень важно учитывать работы, выполненные к началу планового периода (в том числе запасы готовой продукции, НЗП, заделы и др.).
Предположим, заключен долгосрочный договор на полтора года на поставку 1000 единиц продукции. Плановый период при составлении программы — год, но компания уже изготовила ранее 350 единиц продукции. Значит, при планировании количества продукции, необходимого для производства в анализируемом периоде, нужно учитывать только 650 единиц.
При формировании производственной программы учитывают сведения о мощности производства, наличии оборудования, квалификации специалистов и др.
Как создать 3D-модель дома на основе плана
Ипотека — важный этап в приобретении жилья. Рассмотрим ключевые аспекты проектирования дома для одобрения ипотеки банком. ИЖС представляет собой форму разрешенного использования земельных участков, предоставляющую возможность строительства постоянного жилья.
Требование банка к проекту дома
Проект строительства дома — это документ, предоставляемый юридическим лицом или индивидуальным предпринимателем, обладающим соответствующими правами, на бумажном носителе. Важно отметить, что участок не должен иметь зарегистрированных строений и сооружений. Требования к проектам могут немного различаться в различных банках, но общие принципы описаны в данной статье.
После утверждения вашей заявки на ипотечный кредит, предоставляется срок в течение 3 месяцев для завершения оформления необходимых документов. Банк требует представление проекта дома в печатном виде с печатью проектировщика, содержащего дату составления не ранее чем за год до предоставления в банк.
Проект ИЖС для одобрения банком
В составе проекта обязательно должны присутствовать детальные архитектурные решения, которые представляют внешний вид и функциональность предстоящего дома. Важной частью проекта являются архитектурные решения, которые определяют внешний вид и функциональность будущего дома.должен содержать подробные планы инженерных сетей, включая электроснабжение, водоснабжение, отопление, и, при необходимости, газоснабжение и канализацию. Каждый из этих аспектов должен быть тщательно проработан с учетом местных строительных норм и стандартов.
- Архитектурные решения: Подробные чертежи, визуализации и описание архитектурных особенностей дома.
- Инженерные сети:
- Электроснабжение : Распределение розеток, электрощитовая, мощность и проводка.
- Водоснабжение: Распределение водопроводных сетей , установка сантехнического оборудования.
- Отопление: Тип системы отопления , распределение радиаторов или пола с указанием источников тепла.
- Газоснабжение (по необходимости): План трубопроводов и точек подключения.
- Канализация: Подробные схемы системы канализации, включая выбросные точки.
Сопутствующие документы
Точный перечень необходимых документов может варьироваться в зависимости от требований конкретного банка. Рекомендуется уточнить требования у банка, с которым осуществляется сделка.
- Заявление в банк: Формальный запрос на получение ипотечного кредита, содержащий основные данные и желаемые условия кредитования.
- Паспорт гражданина РФ: Удостоверение личности, подтверждающее гражданство и личные данные заявителя.
- Справка о доходах по форме 6-НДФЛ: Документ, подтверждающий уровень доходов заявителя за определенный период времени.
- Выписка из ЕГРН (Единого государственного реестра недвижимости): Документ, подтверждающий право собственности или наличие участка земли для строительства.
- Решение о предоставлении разрешения на строительство дома (уведомление о начале строительства): Документ, удостоверяющий право на строительство на выбранном участке.
Стоимости и сроки проектирования:
Стоимость подготовки проекта для ипотеки варьируется в пределах 50 000- 150 000 рублей, зависит от сложности проекта и объема требуемой документации.
Время на полную подготовку проекта, соответствующего всем банковским требованиям, оценивается в период от 7 до 15 дней.
Заказать проект
Для заказа индивидуального проекта обратитесь в нашу компанию, где опытные специалисты готовы воплотить ваши идеи в реальность. Процесс начинается с вашего обращения, где вы детально описываете ваши потребности и предпочтения. На основе этой информации мы разрабатываем Техническое Задание (ТЗ), которое станет основой для создания уникального проекта вашего будущего дома. Важно подчеркнуть, что на каждом этапе мы нацелены на полное соответствие вашим ожиданиям, а в результате — на создание дома, идеально отвечающего вашим потребностям и стилю жизни.
Мы специализируемся на проектировании домов, предлагая разнообразные варианты по выбору материалов, размеров и этажности. В зависимости от ваших предпочтений и потребностей, мы можем использовать такие материалы, как дерево, кирпич, монолит, газобетон, металлокаркас или современные экологичные композиты и др. Размеры вашего будущего дома могут быть адаптированы под ваши потребности, начиная от компактных пространств до просторных резиденций. Проектируемый дом может быть как одноэтажный, так и двух и трех этажным, в зависимости от ваших потребностей.