Мебель из профильной трубы своими руками. Как сделать садовую скамейку из профильной трубы своими руками: пошаговое руководство
- Мебель из профильной трубы своими руками. Как сделать садовую скамейку из профильной трубы своими руками: пошаговое руководство
- Чертежи изделий из профильной трубы. Чертеж беседки из профильной трубы, как сварить самостоятельно конструкцию
- Диван из профильной трубы чертеж. Как сделать кресло-качалку своими руками: самые доступные варианты
- Кухня из профильной трубы своими руками. Проектирование кухни своими руками
- Стол из профильной трубы чертеж. Общие рекомендации по изготовлению
Мебель из профильной трубы своими руками. Как сделать садовую скамейку из профильной трубы своими руками: пошаговое руководство
Почему профильная труба? Дело в том, что у неё есть ряд преимуществ:
- Углеродистая сталь, из которой они изготовлены, отличается прочностью и легко поддаётся обработке.
- Лёгкость в сваривании деталей при необходимости внесения изменений в конструкцию скамейки.
- Лёгкость материала, что позволит без труда переносить её с места на место.
- Оптимальная цена, пожалуй, самая выгодная.
Чертежи скамеек для дачи из профильной трубы
Если у вас уже имеется опыт в этой сфере, то наверняка вы сами сможете подобрать необходимые размеры. Поскольку зачастую скамейки подбираются по личным предпочтениям заказчика, то наиболее удобное сочетание размеров для создания комфортной и удобной скамьи, можете подобрать только вы сами. Мы в данной статье предлагаем общий план для большинства стандартных дачных скамеек, при этом не учитывая особенности комплекции человека. Такие скамейки подойдут практически для всех, они рассчитаны на средние пропорции тела.
Поэтапное создание чертежа:
- Опорная часть скамьи должна быть в интервале от 40 до 60 см.
- Спинку лучше сделать в высоту до 0,5 метра выше сидения.
- Сиденье необходимо поднять над уровнем нижних опор от земли на 40–50 см.
Что понадобится для создания скамейки из профиля
- основной материал (профильная металлическая труба и деревянные доски);
- молоток;
- болгарка;
- дрель со свёрлами по дереву и металлу разных диаметров;
- саморезы;
- уголки металлические для соединения деталей между собой и создания каркаса;
- рулетка и другие инструменты по мере надобности.
Подготовка составляющих скамейки
Сделать это можно двумя способами:
- Сделать составные части, а затем соединить их.
- Подготовить все части по отдельности и приступить к сборке.
Второй способ выглядит следующим образом:
- Подготовить доски одинакового размера, при необходимости отполировать их и зашкурить, чтобы они стали гладкими и их можно было покрыть лаком в будущем.
- Нарезать трубы разных размеров для опоры и спинки.
- Сделать углы на трубах, которые потом мы будем соединять.
Схема сборки садовой скамейки из профиля
Материал и инструменты подобраны, все заготовки сделаны, приступаем к сборке. Общий план сборки заключается в следующем:
- Металлические опоры предварительно соединить в каркас. Легче и удобнее использовать для этого прямой угол.
- Сварить детали между собой.
- Прикрепите к основе ножки, также зафиксировав их сваркой. Низ скамейки готов. Для спинки прикрепите к задней части лавки более длинную трубу, верхняя часть которой и будет служить спинкой.
- Произведите зачистку мест сварки деталей.
- Подготовьте деревянные доски в соответствии с планом чертежа.
- Сделайте отверстия сверлом в намеченных местах для крепления досок. Избавьте отверстия от заусениц и зазубрин.
- Прикрутите деревянную основу для сиденья и спинки.
Поздравляем, скамейка готова, украсьте её, удалите косметические недостатки и наслаждайтесь заслуженным отдыхом.
Как правильно установить скамейку из профильной трубы в сад
- Ноги должны касаться земли при обычной посадке.
- Угол наклона на неровной земле должен быть таким, чтобы скамейка не падала и создавала комфортные условия сидящему.
- Почву под скамейкой необходимо сделать ровной и добиться устойчивости.
- Лучше всего поместить скамейку в тень дерева или за здание.
- Рядом можно поставить декоративные растения.
Чертежи изделий из профильной трубы. Чертеж беседки из профильной трубы, как сварить самостоятельно конструкцию
Металлическая беседка является прекрасным украшением загородного дома. Она разнообразит ландшафтное оформление, укрывает от солнечных лучей, и становиться удобным местом для приема гостей.
Самым удачным вариантом для такой конструкции считают профильную трубу, но вначале следует разработать чертеж беседки из профильной трубы.

Преимущества используемых профильных трубопрокатных заготовок
Размеры беседок из профильной трубы могут быть очень разными: от небольшой до габаритной постройки. Проф. труба позволяет воплотить любую фантазию мастера.
Профильные трубы стали очень популярными строительными материалами, построить из них совсем не дорого, они удобны в применении, надежны и служат длительное время.

Заготовка любого профиля является жесткой и прочной. Ее вес намного меньше, чем у аналогов другого вида сортамента металлопроката. Из всего этого проявляются такие достоинства данного изделия:
- легкость перевозки стройматериала для строительства;
- широкие возможности для разработки формы будущего строения;
- простота ухода.
Для постройки беседки в качестве исходного материала рекомендуют использовать оцинкованные заготовки. Они избавляет от ежегодной необходимости подкрашивать постройку в местах образования ржавчины.
Виды конструкций
Выбор вида конструкции является важным моментом. Потому, что данное сооружение может быть капитальным или разборным. Как выглядит разборное и стационарное строение из профильной трубы, сделанная своими руками, наглядно демонстрирует
Разборный вариант
Это сборная установка, где каркас сделан из квадратных или прямоугольных трубопрокатных изделий. Для навеса на такую беседку применяют пластик или водонепроницаемые ткани. Такая установка имеет ряд существенных преимуществ:
- Простая сборка. С легкостью справятся даже неопытные новички.
- Быстрота монтажа. Собрать такую конструкцию можно за несколько часов.
- Пользоваться таким сооружением можно с ранней весны до поздней осени. Пластик защищает от вредного воздействия ветра и дождя. Чтобы защитить беседку достаточно разобрать ее и спрятать на хранение.
- Еще одним существенным достоинством становится мобильность. Эту беседку при желании можно легко убрать и переустановить.
- Для данного сооружения не нужно подготавливать фундамент, и брать трубы большого диаметра.
Стационарный вариант
Такая постройка устанавливается капитально. Для каркаса и перемычек применяют стальной профиль, кирпич и дерево. Обязательным условием для возведения становиться наличие фундамента. Конструкция этого вида отличается сложностью, и на ее создание потребуется больше материальных и временных затрат, чем на беседку разборного вида.
Плюсы стационарного сооружения:
- Наличие фундамента и профильные трубопрокатные изделия придают строению высокую прочность и долговечность. Оно способно переносить высокие нагрузки от ветров, дождевой воды и снега.
- При возведении есть возможность применять разные виды исполнения. В постройку может поместиться мебель, мангал, печь. К ней можно провести электроэнергию. Такую конструкцию можно остеклить и отапливать.
- Дополнительным преимуществом строения называют возможности воплощения разнообразных видов дизайна.
Проектирование и разработка чертежа
Как правильно сварить беседку из профильной трубы, чтобы она получилась прочной и надежной? Для этого вначале нужно провести подготовительные работы.
Они включают составление чертежа. Это нужно для того, чтобы получить представление, как будет смотреться будущая постройка, и какие детали она будет содержать.

И не важно для стационарного или разборного сооружения он будет составляться. Он поможет установить количество нужных для работы материалов и то, какие детали придется соорудить. Чертежи представлены в нашей статье.
Примерный вариант схемы прямоугольной конструкции из профильных заготовок
В чертежи такой постройки вносят стойки для опоры (4 или 6), которые скреплены перемычками. На рисунке нужно четко прорисовать особенности нижней и верхней части конструкции, также опорные элементы, каркас и крышу.

Для обвязки и каркаса можно взять как одинаковый по сечению профиль, так и разнообразный. Важно учесть и то, что количество скатов крыши и количество стоек нужно делать одинаковым. Чаще всего для такой беседки используют высоту в три с половиной метра.

ВАЖНО! Если разрабатывается чертеж для стандартной беседки со сварными узлами, то следует учесть допуски. Иначе в итоге габариты не совпадут с теми, которые указаны в плане.
Выбор материалов
Кровля. Для нее чаще всего используются:
- Профнастил.
- Ондулин.
Беседки из проф. трубы и поликарбоната, фото которых можно посмотреть дальше, является наиболее распространенным вариантом.
Диван из профильной трубы чертеж. Как сделать кресло-качалку своими руками: самые доступные варианты
Основная часть конструкции кресла качалки – это двое полозьев (лыжи), имеющих дугообразную форму, за счет чего, собственно, кресло и может качаться. Эти полозья могут быть короткими и длинными. У кресел с длинными полозьями глубина и амплитуда качения достаточно большая, человек из сидячего положения переходит в полулежачее. Кресла-качалки с короткими полозьями обеспечивают спокойное и степенное качение, поэтому они особенно популярны у пожилых людей.
Короткие полозья, и Вы мерно и спокойно покачиваетесь вдали от всех забот
Чтобы изготовить простейшее кресло-качалку, вам даже не потребуется подробный чертеж кресла-качалки. Достаточно взять готовое, например старое, кресло (1) с деревянными ножками. Изготовим две опоры (2), для этого из брусков изготавливаем два элемента, которые будут иметь одинаковое выгнутое основание. Так же выпиливаем щечки (3), которые используем в дальнейшем как дно для ножек кресла.
Схема простого кресла-качалки
Для каждой ножки исходного кресла выпиливаем по два ограничительных бруска (4) – итого восемь. Соответствующие ограничители прибиваем на требуемом расстоянии для каждой опоры для всех ножек. У обоих опор с внешней стороны вкручиваем по три (6) мебельных болта – это придаст креслу устойчивости и обеспечит безопасное качание. Подготовим замыкающую пластину (7) на каждый ограничительный брус. Вставив ножки кресла в подготовленные пазы с ограничителями, замыкающими пластинами накрываем ограничители и фиксируем их с помощью перфоратора. Для удобства, спереди можно добавить подножку (8).
Чертеж-схема кресла-качалки
Аналогично можно модернизировать и кресло с металлическими ножками, изготовив специальные крепежные петли из металла
Образец кресла-качалки из обычного стула и самодельных полозьев
Кресло-качалка из фанеры
Для пластического моделирования фанера – наиболее благоприятный материал. Воспользовавшись электролобзиком, можно получить конструкцию, которая значительно упростит процесс, ведь конструктивно она объединяет два самых главных (и самых сложных для изготовления) элемента кресла-качалки – полозья и боковины. Кроме того, отсутствие соединений значительно увеличивает прочность конструкции.
Для изготовления нам понадобятся:
- электролобзик
- шуруповерт
- фанера – лист толщиной не менее 15 мм
- дубовые (сосновые) рейки сечением 10х50 мм – порядка 20-35 штук, длина зависит варианта изготовления – одно- или двухместное кресло. Для одноместно кресла длина рейки – 1200 мм.
- брус (сосна, лучше дуб) – 30х50 мм, 3 шт, по длине равный рейкам
На миллиметровой бумаге вычерчиваем лекало, переносим рисунок на фанеру и вырезаем боковину электролобзиком.
После этого ошкуриваем все детали и снимаем небольшие фаски
До начала общей сборки процедура обработки-лакировки для торцов должна быть проведена дважды.
Отверстия под соединительные бруски (царги) размечаем в изножье, средней части и в изголовье. Чтобы добиться максимальной точности, после предврительной разметки боковины совмещают и просверливают отверстие. Царги закрепляют евровинтами и дополнительно фиксируют с помощью столярного клея. После этого на уже собранный каркас саморезами равномерно закрепляем рейки. После окончания сборки необходимо зашпаклевать отверстия над саморезами, еще раз мелкой наждачкой отшлифовать все детали, обработать антисептиком, покрыть морилкой (если нравится темные тона дерева) и покрыть полученное кресло водостойким лаком.
Кухня из профильной трубы своими руками. Проектирование кухни своими руками
Изготовление кухонного гарнитура начинают с проекта. Для проекта требуются габаритные размеры места, где она будет установлена. После чего можно начать подбирать составные элементы.
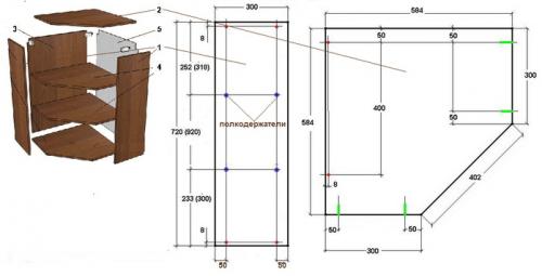
Рис.1. Чертеж кухонного гарнитура с размерами.
Кухонный гарнитур состоит из ящиков, в которых может быть различное наполнение, начиная с полок и заканчивая выдвижными корзинами. Для отделений как верхнего, так и нижнего рядов установлены стандартные размеры по ширине начиная с 15 см до 100 см, с шагом 5 см, т.е. 15, 20, 25, 30, 35 см и т.д. Знать их нужно для проектирования.
При подготовке проекта следует руководствоваться стандартными размерами, т.к. вся фурнитура изготавливается с их учетом.
Определяя компоновку следует принимать во внимание, что стандартная высота ящиков нижнего ряда составляет 72 см, верхних может быть 60, 72 или 90 см. Глубина нижнего ряда 55 см, верхнего 30 см.
Конечно изготавливая кухонной гарнитур своими руками можно устанавливать произвольные размеры, но тогда придется отказаться от готовых компонентов кухни (например, фасад), и все элементы изготавливать по индивидуально.
В том случае если стандартными ящичками не заполняется все пространство, отведенное под кухню, то в оставшимся месте делают либо полки по индивидуальным размерам.
Отличительной особенностью обладает угловой кухонный гарнитур. Угловой кухонный шкаф может быть нескольких вариантов: прямой (рис. 2) и с углом 135 градусов (рис. 3). Та же особенность относится и к верхнему ряду (рис. 4).
Рис.2. Прямой угловой кухонный шкаф чертеж. Нижний ряд.
Рис.3. Угловой шкаф кухни чертеж. С углом 135 градусов.
Рис.4. Угловой навесной кухонный шкаф чертеж.
Угловая тумба под мойку (чертеж см. выше) часто используется если площадь помещения позволяет, для маленьких кухонь прямой шкаф. Таким образом, в прямой устанавливается прямоугольная или круглая мойка, в угловой – угловая или круглая.
Подготавливая проект мебели на кухню следует соблюдать следующие рекомендации:
- Место под установку плиты должно быть равно ширине ее самой, обычно это 50, 60 см.
- Для встроенной плиты шкаф должен быть шириной 60 см и глубиной не менее 55 см. Тоже относится и для духовки.
- Пространство под вытяжку должно быть 60 см для встроенной и 90 для остальных типов.
- Расстояние между вытяжкой и плитой должно быть не менее 70 см. Шкаф для встроенной вытяжки по высоте должен быть на 30 см меньше остальных.
- Пространство под холодильник должно быть не менее 60 см.
- Выкатные корзины устанавливаются в кухонные шкафчики только стандартного размера.
Стол из профильной трубы чертеж. Общие рекомендации по изготовлению
Чтобы сделать стол или стул из профильной трубы, начинают, как и в любом другом деле, с проекта, подбора материалов и инструментов.
Выбор конструкции и дизайна
Конструкция, форма, размер и дизайн изделия определяются его назначением и оформлением окружающего пространства, в которое оно должно гармонично вписаться. Из профильных труб отлично получаются любые виды столов:
- большой обеденный;
- письменный с ящиками и полочками;
- парта с наклонной столешницей;
- журнальный;
- мобильный сервировочный столик;
- стол для беседки или зоны отдыха;
- раскладной стол-трансформер с одной или двумя скамейками;
- удобный верстак в мастерскую для слесарных работ.
Определившись с функционалом и местом дислокации, приступают к созданию схем и чертежей. Отдельно прорисовывают каркас для столешницы и опорную конструкцию. Самая простая состоит из четырех вертикальных ножек, связанных продольными, поперечными или диагональными перемычками. Но можно спроектировать и более оригинальные изделия из профтрубы.
Желательно сделать несколько проекций каркаса: подстолья и всех боковин, имеющих разное количество и расположение деталей. Это позволит точно определить необходимый метраж труб, количество узлов, декоративных элементов и т.д. Подробный чертеж облегчит практический этап работ.
Как сделать лавку трансформер своими руками: чертежи скамейки из профильной трубы
Выбор и расчет профтрубы
Размер трубы подбирается по нагрузке и дизайнерской концепции. Для изготовления мебели изделия сечением больше 40х40 мм используют редко, только если нужно сделать очень большой стол или рабочий верстак. Более популярны следующие типоразмеры:
- 40х25 мм;
- 40х20 мм;
- 25х25 мм;
- 20х20 мм.
При выборе обязательно обращают внимание на толщину металла. Оптимальный вариант 1,5-2 мм. Если она будет больше, стол из профтрубы получится слишком тяжелым, а тонкостенные трубы требуют опыта и мастерства при сварке бытовыми инверторными аппаратами.
Количество материала рассчитывают по чертежам, суммируя длину всех деталей одинакового сечения. В процессе проект можно немного подкорректировать исходя из стандартной 6-метровой длины профильной трубы, чтобы минимизировать её отходы. Попробуйте сгруппировать несколько деталей так, чтобы их общая длина с учетом угловых срезов и некоторого запаса составляла около 6 метров.
Например, из одного хлыста может получиться каркас под столешницу размером 200х60 см с одной поперечной перемычкой: две длинные стороны по 2 метра, две короткие по 60 см и одна перемычка той же длины в сумме дают 580 см.
Если опорная конструкция состоит из 4 ножек, 2 коротких и 1 длинной перемычки, высоту ножек легко рассчитать, чтобы не выйти за длину одного хлыста.
- Длина трех перемычек составит 200 + 2х60 = 320 см.
- Остаток хлыста на ножки 600 – 320 = 280 см.
- Высота каждой ножки 280 : 4 = 70 см.
Совет! Если точно выполнить разметку и аккуратно под прямым углом распилить трубу, её длины хватит на весь опорный каркас. Но лучше уменьшить длину ножек на пару сантиметров «про запас».
Холодная ковка – секреты мастерства обработки металла
Подготовка к работе
Мебель из профтрубы сложно переделать, поэтому перед началом работ нужно ещё раз перепроверить габариты будущего изделия, убедившись в том, что оно встанет по месту, а выбранная столешница соответствует форме и размерам каркаса.
На этом этапе следует подумать и о грунтовке и краске для металла.
Затем покупается материал и крепеж, подготавливаются необходимые инструменты. Помимо сварочного аппарата и болгарки для раскроя трубы на отрезки, шлифовки срезов и сварных швов, потребуется дрель со сверлом по металлу для сверления крепежных отверстий. Даже если конструкция будет свариваться, а не собираться на болтах, отверстия необходимы для фиксации столешницы к металлокаркасу. Не забудьте о расходных материалах – отрезных и шлифовальных кругах, электродах.
Остальной инструмент готовится исходя из того, какой материал выбран для столешницы.
Совет! Даже если вы хорошо владеете сваркой, стоит подумать над тем, чтобы сделать большой стол из профиля с разборным каркасом на болтах. В таком случае тяжелую и громоздкую конструкцию будет проще переносить или транспортировать в случае переезда.