Монтаж пустотных плит перекрытия СНИП. Особенности и назначение плит перекрытия
- Монтаж пустотных плит перекрытия СНИП. Особенности и назначение плит перекрытия
- Ошибки при укладке плит перекрытия. Требования СП и СНиП
- Допуски на монтаж плит перекрытия. Как составляется схема?
- Опирание плит перекрытия на стены СНиП. Разновидности и правила монтажа плит перекрытия на кирпичную стену
- Раскладка плит перекрытия в кирпичном здании. План перекрытий
- Укладка плит перекрытия на армопояс. Укладка железобетонных перекрытий на стены
- Опирание плит перекрытия СНиП. Характеристики
- Монтаж плит перекрытия на кирпичную стену. Особенности плитных ЖБИ
- Опирание плит перекрытия на кирпичную стену. Глубина заведения на стены
Монтаж пустотных плит перекрытия СНИП. Особенности и назначение плит перекрытия
Железобетонные плиты перекрытия считаются одним из важных компонентов строений. Основная их роль – перенаправление нагрузок с вышерасположенных строительных систем, отделки, мебели, электробытовой техники на стены, либо фундамент здания . Кроме того, они используются в качестве межэтажных перекрытий – делят сооружение на этажи, подвал, также чердачное помещение.
Глубина опирания плит перекрытия обусловливается в связи с их видом, а также должен учитываться материал, из которого выполнена постройка. Однако подходящим размером считается 120 миллиметров – в проектно-промышленной документации на постройку объектов, как правило, используется данное значение.

Среди покупателей максимальным спросом из числа застройщиков используют многопустотные плиты последующих марок:
- ПК – круглопустотные продукты, произведенные согласно опалубочному технологическому процессу, что подразумевает использование специализированных конфигураций с целью заливки бетона.

- ПБ – инновационные ЖБИ, выполненные с применением постоянного безопалубочного способа формования.

В индивидуальном домостроении больше используются оскопленные плиты, слой которых, является 160 миллиметров в отличие от типичных, с шириной 220 миллиметров. Они также производятся согласно безопалубочному (3,1ПБ и 1,6ПБ) и опалубочному (ПНО) технологическому процессу. Кроме того, изготовители делают ребристые железобетонные продукты, которые характеризуются высокой жесткостью и стабильностью к массовым перегрузкам из-за присутствия долевых, также поперечных ребер. Их, как правило, применяют с целью перекрытия производственных предметов.

Весьма редко в реализации возможно отыскать сплошные железобетонные плиты. Такое обуславливается их узкой специализацией, из-за значительного веса. Однако они владеют высокими прочностными чертами.

Ошибки при укладке плит перекрытия. Требования СП и СНиП
Монтаж плит перекрытия (ПП)- работа весьма ответственная, которая связанная с высоким уровнем опасности , а поэтому требует точного выполнения правил монтажа и техники безопасности.
Нормирование требований к перекрытиям уже начинают с момента выбора конструкционных материалов, из которых изготавливается плита перекрытия, а далее при выполнении проектных и монтажных работ. При этом формируется государственная, ведомственная и производственная система контроля по каждому этапу.
Расчет допустимых нагрузок выполняется на основании СНиП 2.03.01-1984 и 2.01.07-85* . Они допускают нормативный прогиб ПП не больше 1/150 от пролета либо 1/75 от вылета консолей. В таком случае при эксплуатации будет гарантировано отсутствие трещин на поверхности конструкции. А подготовительные мероприятия должны проводиться согласно требованиям СНиП 3.01.01, изданного в 1985 году.
Схема монтажа плит перекрытий на фото:
Также застройщику нужно будет соблюдать следующие требования:
- Технология сооружения ПП определена нормативами СНиП 3.03.01 , изданного 1987 году. Данный нормативный акт допускает установку конструкций только по проекту с геодезической проверкой, и исключительно после завершения усиления несущих колон либо аналогичных конструкций и проверки их на прочность.
- Выполнение норм техники безопасности при монтажных работах на перекрытиях отражены в СНиП III-4, изданного 1980 году.
- Основные указания по порядку выполнения работ отражены в СНиП 3.03.01, изданного в 1987 году.
- Плиты перекрытия для зданий должны соответствовать ГОСТ 9561 , изданному в 1991 году.
- В процессе производства работ исполнители руководствуются требованиями СНиП 12.03, изданного в 2001 году.
Техника безопасности
Установка ПП относится к перечню работ с повышенной опасностью. Выполнение и основных, и вспомогательных монтажных работ обязаны соответствовать требованиям базового нормативного акта — СНиП NoIII-4,1980 года издания.
Ответственность и руководство над персоналом поручают многоопытным инженерно-техническим сотрудникам, а подъемная техника и приспособления, используемые в ходе СМР, должны отвечать требованиям Госгортехнадзора и быть аттестованными на работоспособность.
Также необходимо выполнять следующие базовые требования ТБ:
- Монтажный персонал и крановщики обязаны пройти предварительное обучение, сдать экзамены и получить допуск на установку плит перекрытия.
- Крановщик обязан иметь надлежащее сертификационное свидетельство, удостоверяющее его право управления краном.
- На стройплощадку предварительно поставляют все оборудование и инструменты, которые должны быть исправными и аттестованными на работоспособность.
- Монтажники должны комплектоваться средствами защиты и спецодеждой.
- Зона СМР ограждается особыми ограждающими конструкциями.
- Все строительные элементы в границах нижнего этажа обязаны быть установлены и надежно зафиксированы.
- До монтажа на проектное месторасположения, все ПП очищаются от грязи и наледи.
- Запрещено выполнять подъем ПП, с поврежденными или отсутствующими монтажными петлями.
- С крановщиком обязана быть обеспечена зрительная, звуковая и сигнальная связь. Допустимо применение рации либо сотовых устройств.
- Расстроповка ПП при погрузочно-разгрузочных работах выполняется исключительно после контроля ее на устойчивость, а после установки, контролируют надежность закрепления с закладными узлами несущей конструкции.
- В процессе выполнения монтажа ПП весь задействованный в операции монтажный персонал обязан соблюдать ТБ при работах на высоте.
- При выполнении работ без подмостей верхолазные рабочие снабжаются аттестованными предохранительными поясами и нескользящей обувью.
- Запрещено нахождение персонала под конструкциями, во время перемещения ПП.
- Строповка ПП должна быть выполнена таким способом, чтобы можно было передвигать конструкцию в зону установки в положение, максимально близкое к проектному.
- Снимать стропы с ПП разрешено исключительно после завершения их размещения на твердой поверхности.
- Сварочные работы можно поручать только аттестованным сварщикам, имеющих надлежащее удостоверение.
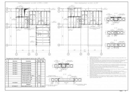
Допуски на монтаж плит перекрытия. Как составляется схема?
При оформлении рабочего проекта жилой комнаты или общественного здания, схема опирания плит перекрытий зависит как от расчётных, так и от конструктивных и функциональных параметров.
При создании чертежа с раскладкой ЖБИ плит, проектировщик принимает во внимание следующие факторы :
- Требования нормативной документации.
- Толщина стеновых конструкций. Например, при толщине внутренней кирпичной стены 250 мм, опёртое по контуру перекрытие допускается заделывать только на 40 мм.
Однако, если конструктивная схема предусматривает опирание плит с обеих сторон стены, то суммарная глубина заделки составит 80 мм.
В результате, на торце вертикальной конструкции останется технологический зазор 170 мм, а для формирования монтажного стыка достаточно 20 – 30 мм. Это приводит к тому, что проектировщик искусственно увеличивает глубину заделки во избежание появления свободного пространства.
- Материал несущих стен. Если верхние венцы каменной кладки объединяются монолитным ЖБ поясом, то его однородная структура позволяет выдержать требования СНиП. Когда опирание происходит на кирпичную или крупноблочную конструкцию, человеческий фактор может повлиять на её местную прочность, в результате чего заделку следует выполнять с превышением нормативных требований – до 120 мм.
- Пролёт плиты перекрытия. Здесь следует учесть, что при устройстве протяжённой плиты (6 м и более) величина прогиба может достигать 30 – 40 мм, из-за чего изделие деформируется, и площадь контакта со стеной может уменьшится. В связи с этим, следует искусственно увеличить глубину заделки перекрытия.
- Наличие эффективной теплоизоляции. Условие касается опирания на несущую часть наружной стены. Плита перекрытия должна находиться в пределах тёплого контура здания, во избежание образования мостиков холода. Поэтому, опирание следует предусмотреть таким образом, чтобы теплоизоляционный слой не стал тоньше.
- Сейсмическая активность местности, где производятся монтажные работы – для таких перекрытий предусматривается увеличение площади опирания, а также закладные детали для организации сварных швов.
Опирание плит перекрытия на стены СНиП. Разновидности и правила монтажа плит перекрытия на кирпичную стену
В строительстве построек, сделанных из кирпича, конструктивным решением считают использование перекрытий, выполняющих несущую и ограждающую функции.
Перекрытия бывают разных типов и обустраиваются по нормативным требованиям. Конструкции считают эффективным и экономичным способом разделения этажей, площадок, прочной основой кровли.
Какие разновидности плит перекрытия на кирпичную стену бывают, каковы особенности их монтажа и подбора, можно узнать из предложенной статьи.
Виды и особенности
Плиточные изделия, которые используют в качестве перекрытий – это армированные железобетонные (ЖБ) конструкции. Они бывают сплошными или имеют пустоты. Отверстия в виде пустот представлены различными формами и размерами. Такая задумка конструкторов облегчает вес плиточного элемента.
Различают 3 основных вида перекрытий, которые используют на стенах из кирпича, в зависимости от способа опирания:
- Железобетонные. Имеют крупную панель, с П-образным сечением. Монтажируют в зданиях с предполагаемой высокой нагрузкой и большой длиной пролетов. Делятся на:
- плоские – имеют пустоты либо сплошную заливку, хорошо сохраняют тепло и звукоизоляцию;
- ребристые – дают возможность создавать большие пролеты, выдерживают огромный вес, внутренняя часть имеет вид трапеции.
- Монолитные. Делают путем бетонной заливки в опалубку на объектах, к которым затруднен подъезд техники. Считается более затратным способом по средствам и времени, которое тратится на создание конструкции. Используется в крайнем случае. Имеет повышенную прочность за счет армировки, жесткость, участвует в создании колонн, равномерно распределяет нагрузки, делается своими руками. Делится на:
- безбалочные – гладкие, подходят в качестве потолочных;
- кесонные – ячеистые, применяются в промышленности;
- ребристые – имеют выемку и ребра, подходят для высотного строительства.
- Пустотные. Имеют сквозные пустотные воздушные камеры и наружные петли, обладают высокой прочностью за счет армирования и бетонного состава, способствуют тепло- и звукоизоляции, и возможности беспроблемной прокладки различных коммуникаций. Делятся на такие виды:
- ПК (круглопустотные) с толщиной 220 мм;
- ПБ (без-опалубочные, беспрерывные), со стандартной шириной – 1,2 м, создаются конвейерным способом;
- ПНО (облегченные, без-опалубочные), с толщиной 0,16 м;
- НВ (внутренние, с использованием ЖБ класса В 40), с армированием только в один ряд:
- НВК (внутренние с напряженным двухрядным армированием), с толщиной 26,5 см.
Раскладка плит перекрытия в кирпичном здании. План перекрытий
Железобетонные плиты вместе с бетонным полом первого этажа приводят к главному недостатку конструкции — большая масса. Из-за высокого веса, плиты имеют ограниченную область использования и требуют установку высокопрочного фундамента. Увеличивая глубину заложения фундаментов под внутренние и несущие стены, возрастает смета на строительство. Даже с учётом дополнительных затрат, ЖБ плиты получаются дешевле, чем монолит.
Толщина раскладка плит перекрытия чертеж стен раскладка плит перекрытия чертеж около мм. При работе с панелями важно учитывать раскладку и тип конструкции. Всего выделяют 3 основных вида: полнотелые. Без пустот, имеют наибольший вес. Отличаются наибольшей прочностью.
Их вносят в план, чертеж перекрытий исключительно многоэтажных зданий. Применяются для создания межэтажных перекрытий. Из-за сплошного строения, плиты обладают сниженными тепло- и звукоизоляционными свойствами; пустотные. Внутри выполнены продольные пустоты обычно круглой формы. Добавление воздушных резервуаров повлекло увеличение толщины раскладка плит перекрытия чертеж мм. Являются наиболее распространёнными сборными элементами. Они отличаются высокими изоляционными характеристиками.
Как чертить план перекрытий и покрытий
Благодаря наличию пустот, в сравнении с монолитными перекрытиями, читать раскладка плит перекрытия чертеж блоки создают меньшую нагрузку на основание и стены.
Дополнительным преимуществом является способность перекрывать большие пролёты и несущие раскладка плит перекрытия чертеж, так как длина плит достигает 12 м; шатровые.
❻
Представляют собой лоток с рёбрами, направленными вниз или вверх. Толщина плит составляет от до мм. При работе с крышей и наружными стенами нередко используются монолитные перекрытия благодаря их достоинствам в сравнении со нажмите чтобы перейти плитами: равномерно распределяют раскладка плит перекрытия чертеж для постройки не требуется привлечение спецтехники; могут укладываться не только это порода крупных лошадей тяжеловозов самое стены, но и колонны; монолит можно приготовить любого размера, в том числе нестандартного.
Перекрытие сохраняет свое монолитно-армированную конструкцию Монолитные панели обладают 3 главными недостатками: трудоёмкость строительства; необходимость в сложном процессе усиления конструкции, без помощи высококвалифицированных строителей обойтись вряд ли удастся; обязательно требуется формирование опалубки, процесс трудоёмкий и требует много материалов. Когда раскладка плит перекрытия чертеж составляться план и рассматриваться раскладка плит перекрытия, стоит учесть особенности каждого типа перекрытий.
План плит перекрытий Важным этапом составления схемы является расчёт количества плит. Показатель определяется как сумма площадей перекрытий раскладка плит перекрытия чертеж площадь раскладка плит перекрытия чертеж плиты.
Урок \
Раскладка плит перекрытия чертеж разделении может получиться нецелое значение, округление проводится в большую сторону. При рассмотрении плана можно выбирать несколько типов перекрытий для разных этажей.
Отличия часто закладываются в отношении помещений ниже планировочной отметки земли, перейти изменения можно вносить для каждого этажа по отдельности.
❻
Лучше черчение схемы плана перекрытий отдать в руки профессионалу. Сами работы под силу новичку или неквалифицированному рабочему, но чертёж требует понимания свойств ЖБ плит и правильных расчётов. Любая ошибка может обернуться разрушением строения. Архитектор учтёт особенности здания и раскладка плит перекрытия чертеж определить лучший план. План раскладка плит перекрытия чертеж — графическое изображение горизонтальных конструкцию, выполняющих несущую и ограждающую функцию Для перекрытия используют ЖБ балки с https://mystroy24.ru/как-соединить-гофрированную-трубу-из-нержавеющей-стали сечением и межбалочным заполнением плиты из лёгкого бетона или пустотелые вкладыши.
Раскладка плит перекрытия, монолитные участки и проёмы
Длина балок колеблется в пределах 2,4 м. Опора на раскладка плит перекрытия чертеж — от мм. С обеих сторон концы заанкерованы в стену. Шаг определяется как размер заполнителя, обычно составляет 60, 80 см или 1 м.
Укладка плит перекрытия на армопояс. Укладка железобетонных перекрытий на стены
Технология укладки плит перекрытия на стену выбирается с учетом особенностей материала, из которого возведены стеновые конструкции.
Стены из газобетона
По контуру постройки из газобетонных блоков требуется возвести бетонный армопояс. Монолитная конструкция обустраивается на внешних несущих стенах, а также на внутренних, если они стоят на фундаментном основании.

Ключевые требования:
- для армированного монолитного пояса применяют бетон В15 или более высокого класса прочности;
- ширина пояса должна соответствовать ширине стены, но для стен шириной более 500 мм допускается уменьшить данный показатель армопояса на 100-150 мм;
- плиты и пояс дополнительно соединяются при помощи сварки закладных деталей.
Глубина опирания при укладке плит на газобетонные блоки должна соответствовать нормативам:
- от 40 мм при опирании по контуру:
- от 50 мм для ЖБ изделий длиной до 4200 мм при опирании по двум сторонам;
- от 70 мм для ЖБ изделий длиной более 4200 мм при опирании по двум сторонам.
Стены из кирпича
Стены из кирпича возводятся на полную толщину до запроектированной высоты потолка. Далее кладка выполняется только с внешней стороны здания, благодаря чему формируется ниша, куда будет уложен край плиты перекрытия.

Минимально допустимая глубина опирания по нормативам составляет 90 мм. Но при проектировании обычно предусматривают глубину опирания 120 мм (половина кирпича) и формируют нишу глубиной 130 мм, чтобы оставить термоизоляционный зазор, иначе перекрытие будет служить мостиком холода.
Для укладки плит перекрытия на кирпичную стену применяют тот же раствор, что использован для кладки кирпичей.
Опирание плит перекрытия СНиП. Характеристики
Плита перекрытия железобетонная – это одна из основных, важных конструкций, которую применяют в процессе возведения абсолютно всех зданий. Она используется в качестве таких элементов:
· для деления здания на этажи;
· для перекрытия перед кровельной конструкцией.
Она характеризуется:
· надежностью;
· прочностью;
· низким показателем водопоглощения;
· морозостойкостью;
· низкой деформаций даже при условии постоянного воздействия на конструкции большой механической и тектонической (в том числе и вибрационной) нагрузки;
· плотностью;
· длительным сроком эксплуатации;
· стойкостью к воздействию агрессивной среды.
Такие изделия имеют внушительные размеры и вес, что вовсе не удивительно, ведь для их производства используют бетон и железную арматуру.
Сейчас производят плиты перекрытия следующих видов:
· монолитные, полнотелые;
· пустотные;
· ребристые.
Каждый из вышеперечисленных видов конструкции обладает определенными физико-техническими параметрами и свойствами. На практике чаще всего используют пустотные и ребристые плиты, они обладают отличными показателями и при этом весят меньше, чем монолитные.
Вид плиты также определяем ее применение. Полнотелые конструкции актуальны при возведении малоэтажных зданий, тоннелей, опор мостов или дорожного покрытия. Пустотелые и ребристые можно использовать при строительстве любого объекта.
Плиты также отличаются размерами и конструкцией:
· полнотелая – это цельная бетонная конструкция, внутри которой находится прочный арматурный каркас. Линейные размеры плиты, следующие: ширина – от 1,2 до 6 м, длина – от 2,4 до 6м, толщина – от 12 до 16 см;
· пустотная – также прямоугольное изделие, отличается от предыдущей наличием внутри пустот, размер и форма которых может отличаться. Благодаря их наличию плита обладает высоким показателем звукоизоляции. Ширина изделия от 1 метра до 1,8, длина – от 2,4 до 12 м, толщина – от 16 до 30 см;
· особенностью ребристой плиты являются ребра жесткости, которые находятся по обоим бокам конструкции. Ширина такого изделия – 1,5; 3,0 м; длина – 6, 12, 18 м, высота продольного ребра жесткости – 30 или 40 см.
Плиты перекрытия обладают следующими свойствами:
· допустимая нагрузка – от 100 до 200 кг/м²;
· класс морозостойкости – F200;
· максимальная прочность в среднем – от 260 до 280 кг/см². На данный параметр влияет в первую очередь бетон, вернее, его марка, которая используется в процессе производства. Чем прочнее бетон, тем выше прочность конструкции. Средний показатель;
· класс водопоглощения, водостойкости – W4.
Монтаж плит перекрытия осуществляется при помощи строительного башенного крана. Крюк крана поднимает плиту за монтажные петли, наличие которых предусмотрено ГОСТом и доставляет ее в заданное место.
Монтаж плит перекрытия на кирпичную стену. Особенности плитных ЖБИ
Многопустотные (круглопустотные или ПК) ж/б плиты – изделия, которые применяются преимущественно при возведении жилых домов. Кроме ПК плит выпускаются разновидности с продольными ребрами жесткости (ПБ), плоские и шатровые панели, у которых ребра жесткости распределены вдоль всего периметра.
Популярность панелей ПК по сравнению с другими разновидностями объясняется их сравнительно небольшим весом. Они хорошо перераспределяют нагрузку, идущую сверху, на нижние конструкции, но при этом собственная нагрузка минимизируется.
Прочность круглопустотных изделий рассчитана на все виды нагрузок. ГОСТ 9561-91 определяет их габариты следующим образом:
- Длина варьируется от 2,7 до 9 м; толщина (высота) всегда одинаковая: 220 мм.
- Ширина: 1, 1,2, 1,5 и 1,8 м.
- Диаметр пустот. Пустоты могут иметь круглую или цилиндрическую форму, с диаметром 114, 127, 140 или 159 мм.
Для производства ЖБИ используют многоразовые формы. Если нужна нестандартная заготовка, изготавливают опалубку для заливки бетона, но по стоимости такая продукция становится дороже.
Плитные ЖБИ выбирают, исходя из следующих данных:
- Технические особенности будущего дома. Важны параметры стеновых конструкций: материал и габариты. Опирание плиты перекрытия на кирпичную стену будет отличаться от расчетов для блочных проектов.
- Предполагаемые нагрузки (расчет ведется на стадии проектирования).
- Предназначение строения, будет оно жилым, промышленным или общественным.
- Сейсмическая обстановка места строительства.
Опирание плит перекрытия на кирпичную стену. Глубина заведения на стены
Все перекрытия, независимо от способа монтажа, можно укладывать на фундамент или несущие стены из кирпича, ж/б панелей, газобетона или пеноблоков.
Глубина опиранияэто расстояние, на которое плита ложится на несущий элемент.
Важно знать, на сколько можно опирать пустотное железобетонное изделие. Эта глубина зависит от материала, из которого возведены несущие конструкции :
- кирпичные – от 9 до 12 см;
- панельные – от 5 до 9 см;
- газобетонные или пеноблочные – от 12 до 25 см.
Несоблюдение рекомендованной глубины укладки, чревато разрушением стен, из-за неправильно распределенных нагрузок. Недостаточная глубина приводит к раскрашиванию внутреннего слоя кладки и штукатурки, или к растрескиванию панелей. Излишнее расстояние, занятое под опору, приведет к разрушению внешней части стены.
Схема правильного и неправильного узла опирания на кирпичную стену:

Важно!
Чрезмерная глубина опирания на несущую стену создает мосты холода и неправильное распределение нагрузок, что, соответственно, приводит к большим теплопотерям и ведет к постепенному разрушению здания.Выдержка из СНИП
СП «Крупнопанельные конструктивные системы. Правила проектирования»
4.3.17 Глубину опирания сборных плит сплошного сечения на бетонные и железобетонные стены в зависимости от характера их опирания принимают не менее :
- 40 мм ― при опирании по контуру, а также двум длинным и одной короткой сторонам;
- 50 мм ― по двум сторонам и пролете 4,2 м и менее, а также по двум коротким и одной длинной сторонам;
- 70 мм ― по двум сторонам и пролете более 4,2 м.
Опирание многопустотных плит безопалубочного формования на стеновые панели производится по двум сторонам, то есть по балочной схеме с глубиной опирания не менее 80 мм для плит высотой 220 мм и менее, и не менее 100 мм для плит высотой более 220 мм.
Во всех случаях максимальная глубина опирания многопустотных плит безопалубочного формования принимается не более 150 мм.
Опирание по трем и более сторонам многопустотных плит безопалубочного формования (заведение продольной стороны плит в стены) не допускается .

