Однокомнатная квартира с неполной стационарной перегородкой. Варианты стилей дизайна для угловой квартиры
- Однокомнатная квартира с неполной стационарной перегородкой. Варианты стилей дизайна для угловой квартиры
- Дизайн однокомнатной угловой хрущевки с двумя окнами. Варианты перепланировки 1-комнатной хрущевки
- Дизайн угловой комнаты с одним окном. Обустройство помещения традиционными и оригинальными способами
- Ремонт угловой квартиры. Квартира в панельном доме
- Угловая хрущевка с двумя окнами план. Однокомнатная угловая хрущевка с двумя окнами
Однокомнатная квартира с неполной стационарной перегородкой. Варианты стилей дизайна для угловой квартиры
Самый оптимальный способ сделать дополнительную теплоизоляцию – установить вдоль наружной глухой стены мебель: шкаф-купе или модульную систему. Будет удобное многофункциональное пространство для хранения разных вещей. На последнем этаже делают декоративный угловой камин в квартире, устанавливают инфракрасный обогреватель.
Угловой электрокамин, украшенный лепниной, отлично впишется в интерьер гостиной классического стиля
Расширяют пространство за счет утепления лоджии, появляется место для отдыха или занятий спортом. Пример светлого интерьера – дизайн уютной угловой однокомнатной квартиры с двумя окнами в стиле лофт в бежевых или молочных тонах.
Лофт в светлых тонах – удачное решение для стильного интерьера современной квартиры
Для небольшого пространства приобретают прозрачные шкафы-витрины, столики со стеклянными столешницами, изящные стулья, не загромождающие комнату. Зонируют площадь стеклянными перегородками. Глянец и зеркала зрительно расширяют объем, изменяют границы комнаты.
Прозрачная перегородка разделит пространство на зоны и не затенит дальнюю часть комнаты
Совмещение комнаты и кухни, превращение маленькой квартиры в студию возможно при отсутствии внутренних несущих перегородок. Даже при частичном сносе стены стандартную угловую однокомнатную квартиру можно трансформировать в стильную студию с функциональной меблировкой. Такое жилье – неплохой пример жилья для супружеской пары. Многоуровневые потолки гостиной будут сочетаться с точечным освещением кухни.
Квартиру студийной планировки часто выбирают молодые семьи, которые пока не обзавелись детьми
При совмещении комнат стоит предусмотреть легкую раздвижную перегородку, разделяющей пространство кухни и комнаты.
Дизайн однокомнатной угловой хрущевки с двумя окнами. Варианты перепланировки 1-комнатной хрущевки
Несмотря на скромные габариты, существует ряд возможных примеров трансформации однушки.
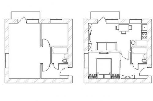
Хрущевка с двумя окнами
Квартира с балконом и двумя окнами, является угловой. Хрущевка с подобной планировкой может представлять собой не самый лучший вариант или наоборот, предоставить большое количество интересных идей перепланировки.



На фото пример перепланировки угловой хрущевки однушки с двумя окнами.
Хрущевка с одним окном
Однушки, имеющие одно окно и балкон, встречаются в кирпичных домах серии 1-511, в панельных застройках серии 1-515 и прочих. В таких квартирах присутствует раздельный санузел и коридор. В хрущевках с другой планировкой данное пространство представляет жилую комнату, что создает ограничение при переделке жилья.



На фото перепланировка однокомнатной квартиры хрущевки 30 кв с одним оконным проемом.
Перепланировка из 1-комнатной в двухкомнатную хрущевку
Самый простой и бюджетный способ перепланировки - установить гипсокартонную перегородку и сделать в ней дверной проем. Таким образом получится два небольших помещения с разным функциональным назначением.
Также трансформировать однокомнатную хрущевку в двушку или полуторку можно за счет раздвижных дверей, которые не займут много места и позволят обособить такие комнаты, как детская, спальня или зал.
Немалое значение в дизайне играет выбор мебельных конструкций. Например, сэкономить пространство поможет встроенная бытовая техника в виде уменьшенного холодильника или маленькой плиты.



На фото однокомнатная квартира хрущевка с перепланировкой в двушку.



Дизайн угловой комнаты с одним окном. Обустройство помещения традиционными и оригинальными способами
После того как учли все эти моменты, остается определиться со стилистикой и функциональностью основной комнаты, которая должна отражать образ жизни хозяев.
Варианты:
- классическая гостиная;
- спальня-гостиная;
- гостиная-столовая с обеденным гарнитуром;
- кабинет с библиотекой и комфортным мягким уголком;
- приемная для гостей с мастерской для мастера ручной работы;
- большая гостиная 23 кв.м в частном доме – дизайн оформляют под домашний кинотеатр или бильярдную;
- общая комната в однокомнатной квартире с «фан-зоной» и большой плазменной панелью для гостей-болельщиков или семьи спортсменов;
- зеленый оазис на южной стороне в экостиле с вертикальным озеленением, растениями-экзотами и аквариумами;
- творческая мастерская с экспозицией или музыкальный салон с роялем;
- уголок коллекционера со стеклянными витринами и мягкой мебелью;
- гостиная в стиле хай-тек, оформленная как компьютерный зал с гостевым уголком;
- игровая и учебная комната для подростков с элементами-трансформерами, чтобы было легко преобразить под гостиную.
Как видим, есть немало интересных вариантов, чтобы максимально адаптировать дизайн стандартной гостиной 19- 20 квадратов с 1-м окном, классика или современный стиль, под запросы и привычки семьи. В любом случае, не рекомендуется гостиную загромождать морально устаревшей корпусной мебелью, громоздким декором и мелкими предметами, которые перегружают восприятие и «воруют» свободное пространство.


Ремонт угловой квартиры. Квартира в панельном доме
Без лишних отступлений: плюсов у такой недвижимости гораздо меньше, чем минусов. Связано это большей частью с погрешностями, которые допускались еще на этапе строительства. Тонкие стены, отсутствие утеплителя, некачественно сделанные швы — все это добавляет остроты угловому вопросу в панельном доме.
- Здесь холоднее
В среднем — на 3-4 градуса, чем в соседних квартирах. В сильно запущенных ситуациях разница с другими квартирами может доходить до 10 градусов.
Хорошая новость: это можно исправить. Плохая новость: на это потребуются материальные вложения. Работу над ошибками обычно начинают с проверки швов. Если состояние швов неудовлетворительное, их заделывают. После помещение дополнительно утепляют. Далее (особенно если здание достаточно старое) — ревизии подвергают окна и систему отопления.
- Стены угловых квартир любит плесень
Конденсат, а за ним и плесень — частые спутники угловых квартир в домах панельного типа. Причина — промерзание стен. Из-за разницы температур внутренней поверхности стен и воздуха в помещении на стенах конденсируется влага, а на влажной поверхности размножается плесень. Последняя становится не просто косметическим дефектом, но и негативно влияет на самочувствие жильцов.
Эту проблему также можно решить: устранить источник холода и сквозняков и регулярно проветривать комнаты.
- Чрезмерное нагревание квартиры
В теплый сезон в угловых квартирах может проявиться другая проблема — сильное нагревание помещения за счет солнечных лучей. Как с ней бороться: установить кондиционер, регулярно проветривать квартиру, во время солнцепека держать шторы закрытыми.
- Стоимость таких квартир ниже
Прилагающийся бонус к имеющимся недостаткам — низкая цена таких квартир. Спрос на них не высок, поэтому продавцы дают хорошую скидку.
Что важно: сумма, которая обычно тратится на улучшение квартиры (борьбу с холодом, сквозняками и плесенью) меньше разницы в цене между угловой и обычной квартирами. А значит, можно неплохо сэкономить.
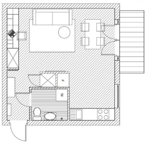
Угловая хрущевка с двумя окнами план. Однокомнатная угловая хрущевка с двумя окнами
Чтобы зрительно увеличить площадь квартиры, стены отделали белой штукатуркой, а окна не стали закрывать шторами. Это японская практика: деревья за окном играют роль визуального акцента, улица становится декоративным элементом интерьера.
Здесь гостиную объединили с кухней, а спальню сделали изолированной. Но главное — наконец отступили от правила «маленькая квартира — белая квартира».
Планировка. Изначально комната в квартире была разделена перегородкой — ее снесли, как и стену между кухней и жилой зоной. В образовавшемся пространстве разместились довольно просторная спальня, коридор, кухня-гостиная и санузел.
Границы перегородок рассчитывали буквально до сантиметра, ориентируясь на габариты выбранной мебели. Будь, к примеру, диван шире или длиннее — его бы просто не пронесли через коридор. Так, в санузле (2,7 кв. м) пришлось поменять душевую кабину — у той, что выбрали изначально, дверь открывалась не до конца, упираясь в раковину.
Кухня. На пятиметровой кухне пожертвовали обеденным столом — вместо него сделали барную стойку. Чтобы освободить рабочую зону, выбрали варочную панель на две конфорки. Эклектичный стиль квартиры на кухне проявился особенно ярко: классический гарнитур, «кабанчик» на фартуке, современная техника и барная стойка с дизайнерскими стульями.
Хранение. Владелица квартиры — молодая девушка, ей требовалось минимум два шкафа для одежды. Один поставили напротив кровати в спальне. Чтобы массивная мебель не давила психологически, в ниши по бокам шкафа вставили зеркала — появилось ощущение перспективы. Второй большой шкаф сделали на заказ, его встроили вдоль стены в коридоре.
Дизайн однокомнатной хрущевки скучным не назовешь. Хитрость в том, что яркий цвет интерьера отвлекает от небольшой площади квартиры. Желтый диван, зеленый комод, черно-белые занавески, фуксия на подушках и пуфе, геометрические и цветочные орнаменты — все это хочется разглядывать. Диван для гостиной купили в ИКЕА, но его не узнать — чехол сшили в текстильной мастерской на заказ. Тумбы и барную стойку изготовил частный мастер.
В маленьких квартирах обычно потолки высокими не бывают. Поэтому нужно сделать все, чтобы потолок в вашей комнате казался выше или, по крайней мере, не стал нависающей над головой темной массой. Итак, вот такие идеи можно применить:
Как сделать маленькую однокомнатную хрущевку визуально больше
Предлагаем всего 5 способов визуально увеличить маленькую однокомнатную квартиру хрущевку, что позволит сделать ее намного уютнее, удобнее и функциональнее. Приведенные ниже советы помогут грамотно спланировать интерьер маленькой квартиры с одной комнатой, зачастую предназначенной для многих целей, а также компактно разместить в ней мебель и прочие предметы интерьера.
1. Пространство
Прежде всего следует задуматься о правильном использовании того небольшого пространства, которое у вас есть:
Однако следите, чтобы не перегрузить комнату множеством разделительных полос. Все части интерьера должны обязательно гармонировать друг с другом.

Современный стильный дизайн хрущевки фото

Зонирование пространства однокомнатной хрущевки

Полки-перегородки в дизайне однокомнатной хрущевки

Интерьер однокомнатной хрущевки с перегородкой фото
2. Потолок
В маленьких квартирах обычно потолки высокими не бывают. Поэтому нужно сделать все, чтобы потолок в вашей комнате казался выше или, по крайней мере, не стал нависающей над головой темной массой. Итак, вот такие идеи можно применить:

Натяжной потолок в однокомнатной хрущевке фото

Дизайн однокомнатной квартиры хрущевки фото

Интерьер однокомнатной хрущевки с балконом
3. Стены
Первое, что следует выбрать, приступая к отделке стен в хрущевке – это цветовая гамма. Нужно ли говорить, что маленькая комната непременно должна быть светлых тонов? Именно они визуально расширят ее площадь и добавят света!
Однако яркие цветовые акценты допустимы. Но они не должны занимать более одной пятой части всей комнаты. А вот темные цвета лучше совсем исключить.
Всем известный способ зрительного расширения площади квартиры – это зеркала на стенах. В очень маленькой комнате можно сделать даже целую зеркальную стену, она создаст иллюзию увеличения комнаты вдвое.
Отличный вариант – двери с зеркалами от пола до потолка у шкафов-купе. Таким образом, ваш шкаф словно исчезнет, перестанет быть заметным, оставаясь при этом вместилищем большого количества вещей.

Однокомнатная хрущевка с белыми стенами фото

Как обустроить однокомнатную хрущевку

Шкаф-купе для однокомнатной хрущевки
4. Мебель и аксессуары
Вот несколько советов по правильной меблировке однокомнатной хрущевки:
Для книголюбов, имеющих открытую библиотеку с множеством книг, оптимальным вариантом будет отказ от каких-либо дополнительных аксессуаров вообще. Стеллаж или полки с книгами создают определенную пестроту, поэтому другую часть комнаты лучше оформить проще, чтобы не создавалось ощущение беспорядка.