Перепланировка с газовой плитой. Отличия при перепланировке кухни с разными типами плиты
Перепланировка с газовой плитой. Отличия при перепланировке кухни с разными типами плиты
Перепланировка квартиры, оборудованной газовой плитой имеет ограничения, продиктованные требованиями безопасности. Данные ограничения оказывают существенное влияние на возможности перепланировки таких квартир:
Запрещено объединение кухни, оборудованной газовой плитой и жилого помещения.
Между жилым помещением и кухней должна в обязательном порядке устанавливаться дверь или раздвижная перегородка с плотным притвором. В случае, если стена между кухней и комнатой ненесущая, возможно выполнить ее демонтаж с заменой на раздвижную перегородку-купе, установленную по прежней границе кухни.
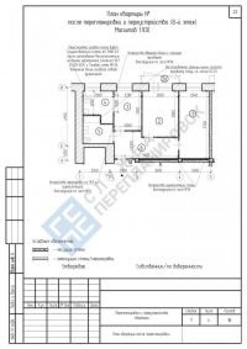
Пример проекта перепланировки кухни с газовой плитой




Подробнее проект перепланировки данной квартиры описан здесь
Кроме того, даже если просто снять дверь между кухней и коридором, во всех жилых помещениях будет необходимо наличие двери с плотным притвором.
При том, что если на кухне электрическая плита, установка дверей и перегородок не требуется. Ненесущую перегородку между кухней и жилым помещением в этом случае возможно демонтировать полностью, хотя рекомендуется ограничиться выполнением проёма (пусть и значительных размеров).
Исключением являются некоторые районы Московской области, где объединение газифицированной кухни и жилой комнаты не противоречит муниципальному регламенту и те районы, где устройство проёма во внутриквартирной стене требует одобрения собрания собственников (стены относят к общедомовому имуществу).
Запрещено переносить помещение газифицированной кухни и устраивать кухни-ниши с газовой плитой.
Этот запрет также вытекает из требований безопасности. По определению, кухня-ниша, как часть общего пространства с жилым помещением не может иметь газового оборудования.
Замена газовой плиты на электрическую предоставляет возможность переноса кухни и устройства кухни-ниши на вспомогательные площади (коридора, кладовой, гардеробной, встроенного шкафа). В этом случае бывшая площадь кухни может стать дополнительным, хотя и нежилым помещением.
Согласно нормативам над и под газифицированной кухней жилое помещение располагать запрещено.
На первых этажах домов и над нежилыми помещениями есть возможность увеличить площадь кухни за счет площади жилой комнаты, но этот вариант также возможен лишь для кухонь с электрической плитой. Даже простая перестановка газовой плиты требует участия специалистов газовой компании, о чем подробнее написано здесь.
Перенос стены между кухней и комнатой. Перенос перегородок в квартире: варианты
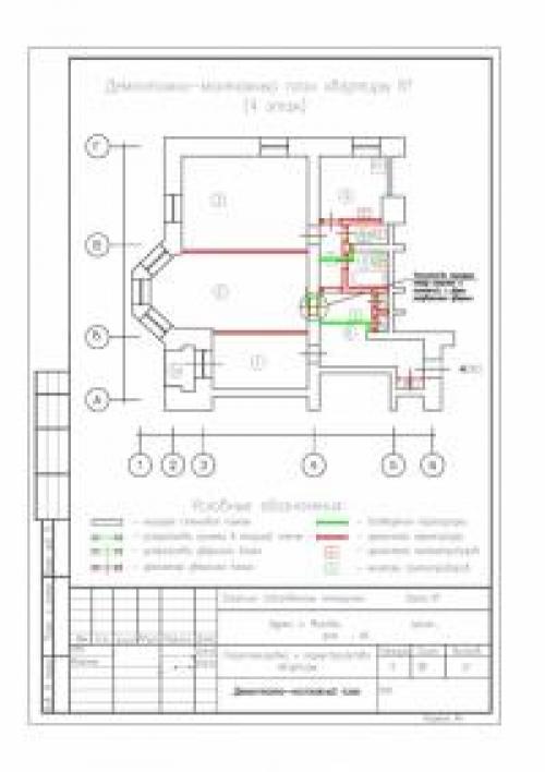
Перепланировка с демонтажем перегородок между кухней и жилой комнатой
Самые частые виды перепланировок - работы, затрагивающие кухню, ванную комнату или санузел, то есть наиболее тесные помещения в любой квартире. При проведении перепланировки кухни ее чаще всего объединяют со смежной жилой комнатой в просторную гостиную. При такой перепланировке частично или полностью сносится перегородка, отделяющая кухню от комнаты. И если стена отделяющая кухню от комнаты не является несущей, то получение разрешения на такие работы, как правило, не занимает много времени.
Более сложные работы согласовываются только с разработкой проекта. Например, если стена между кухней и комнатой окажется несущей, то Жилищная инспекция запретит вам полный демонтаж. Возможно лишь выполнить частичное расширение проема с усилением проема с помощью металлоконструкций. В этом случае, помимо основных документов вам потребуется разработка проекта перепланировки, а в отдельных случаях и проведение технического обследования.
Перепланировка с демонтажем перегородок между кухней и жилой комнатой, фото:



Перепланировка перегородок между ванной и туалетом
В кирпичных домах вместо сантехкабины ванная и санузел разделены обычной ненесущей перегородкой. Демонтаж ее достаточно несложное мероприятие, стоит только убедиться в том, что в стене, которую вы собираетесь сносить нет работающих вентиляционных каналов. С точки зрения согласования эта перепланировка требует разработки проекта .
Перепланировка перегородок между ванной и туалетом, фото:



Перепланировка перегородок между жилыми комнатами
В панельных домах демонтировать межкомнатные стены не получится так как они несущие в этом типе зданий. В блочных домах мы столкнемся с такой же ситуацией, а вот в домах панельных и кирпичных вполне реально устроить перепланировку перегородок с их демонтажем. Обычно объединяют смежные жилые комнаты с организацией просторной гостиной.
Перепланировка перегородок между жилыми комнатами, фото:



Перепланировка с устройством перегородок
Наиболее частый вариант перепланировки перегородок. Ограничивается это мероприятие только габаритами комнат (если вы хотите разделить комнату на две жилых, то ее площадь должна быть не менее 26 квадратных метров) и фантазией владельцев квартир. Часто устраивают фальш-перегородки - это актуально для владельцев однокомнатных квартир .



Перепланировка газовая колонка. Перенос газовой колонки из ванной в туалет
Задайте интересующий Вас вопрос на нашем форуме без регистрации
 и Вы быстро получите ответ и консультацию у наших специалистов и посетителей форума!
Почему мы в этом так уверены? Потому что мы платим им за это!
“СНиП 2.04.08-87 ГАЗОСНАБЖЕНИЕ”
“6.38. Установку газовых проточных водонагревателей следует предусматривать на стенах из негорючих материалов на расстоянии не менее 2 см от стены (в т. ч. От боковой стены) .
При отсутствии в помещении стен из негорючих материалов допускается предусматривать установку проточного водонагревателя на оштукатуренных, а также на облицованных негорючими или трудно-горючими материалами стенах на расстоянии не менее 3 см от стены.
Поверхность трудногорючих стен следует изолировать кровельной сталью по листу асбеста толщиной не менее 3 мм. Изоляция должна выступать за габариты корпуса водонагревателя на 10 см.
6.39. Установку газовых отопительных котлов, отопительных аппаратов и емкостных газовых водонагревателей следует предусматривать у стен из негорючих материалов на расстоянии не менее 10 см от стены.
При отсутствии в помещении стен из негорючих материалов допускается установка вышеперечисленных отопительных приборов у стен, защищенных в соответствии с указаниями п. 6.38, на расстоянии не менее 10 см от стены.
6.40. Расстояние по горизонтали в свету между выступающими частями проточного водонагревателя и газовой плиты следует принимать не менее 10 см.
6.41.* При установке в кухне газовой плиты и проточного водонагревателя объем кухни следует принимать согласно п. 6.29.
При установке в кухне газовой плиты и емкостного водонагревателя, газовой плиты и отопительного котла или отопительного аппарата, а также газовой плиты с встроенными устройствами для нагрева воды (отопления, горячего водоснабжения) объем кухни должен быть на 6 м3 больше объема, предусмотренного п. 6.29.
6.42.* Помещение, предназначенное для размещения газового водонагревателя, а также отопительного котла или отопительного аппарата, отвод продуктов сгорания от которых предусмотрен в дымоход, должно иметь высоту не менее 2 м. Объем помещения должен быть не менее 7,5 м3 при установке одного прибора и не менее 13,5 м3 при установке двух отопительных приборов.
6.43. Кухня или помещение, где устанавливаются котлы, аппараты и газовые водонагреватели, должны иметь вентиляционный канал. Для притока воздуха следует предусматривать в нижней части двери или стены, выходящей в смежное помещение, решетку или зазор между дверью и полом с живым сечением не менее 0,02 м2.”
Фух! В нормативном документе САМИ ВИДИТЕ про туалет не упоминают ни слова. Не написано, что в ТУАЛЕТЕ НЕЛЬЗЯ-значит можно! Ура! Только туалет придётся немного перестроить, потому как придут газовщики посмотреть и все вместе в туалет не войдут посмотреть на всё ЭТО.