Полное руководство по планировке частного дома: нормы и правила
- Полное руководство по планировке частного дома: нормы и правила
- Связанные вопросы и ответы
- Какие основные принципы планировки частного дома или коттеджа
- Какие требования предъявляются к минимальным размерам комнат в частном доме
- Важно ли учитывать расположение окон и дверей при планировке
- Как правильно распределить жилые и технические помещения в доме
- Какие нормы безопасности нужно соблюдать при планировке частного дома
- Какие экологические стандарты стоит учитывать при проектировании коттеджа
Полное руководство по планировке частного дома: нормы и правила
Планировка частного дома – это один из ключевых этапов его строительства и оформления. От того, насколько правильно и функционально будет организовано пространство, зависит ваш комфорт и удобство жизни. В данной статье мы рассмотрим основные нормы и правила, которые необходимо учитывать при создании планировки вашего дома.
Основные нормативные акты и требования
Перед началом планировки важно ознакомиться с основными нормативными документами, которые регулируют строительство и оформление жилых помещений. Среди них:
- Санитарные нормы и правила (СанПиН)
- Строительные нормы и правила (СНиП)
- Местные строительные нормы и правила
Эти документы устанавливают требования к минимальным размерам помещений, высоте потолков, ширине дверных проемов, освещению и вентиляции.
Основные правила планировки
Для создания удобной и функциональной планировки необходимо соблюдать следующие правила:
- Функциональная зонировка пространства
- Рациональное использование площади
- Соблюдение требований к освещению и вентиляции
- Учет требований к эвакуации и пожарной безопасности
Функциональная зонировка пространства
Одним из ключевых моментов при планировке частного дома является разделение пространства на функциональные зоны. Основные зоны включают:
- Жилые помещения (гостиная, спальни, кабинет)
- Кухня и столовая
- Санузлы
- Коридоры и прихожие
- Технические помещения (котельная, прачечная, гараж)
Рациональное использование площади
Для того чтобы пространство было использовано максимально эффективно, необходимо:
- Использовать каждый уголок помещения
- Выбирать мебель и оборудование, соответствующие размерам комнаты
- Обеспечить удобство перемещения между зонами
Этапы проектирования планировки
Процесс проектирования планировки частного дома включает несколько этапов:
- Анализ потребностей и пожеланий
- Создание эскизного проекта
- Разработка рабочего проекта
- Внедрение и корректировка
Анализ потребностей и пожеланий
На этом этапе необходимо определить:
- Количество жителей и их возраст
- Ваши привычки и образ жизни
- Ваши предпочтения в интерьере
Создание эскизного проекта
На основе анализа потребностей создается первоначальный эскиз планировки. Этот этап позволяет визуализировать пространство и внести необходимые изменения.
Особенности планировки разных типов домов
Планировка частного дома может существенно различаться в зависимости от его типа:
- Одноэтажные дома
- Двухэтажные дома
- Маленькие дома (до 100 м)
- Большие дома (свыше 200 м)
Одноэтажные дома
Для одноэтажных домов характерно открытое пространство и отсутствие лестниц. Это позволяет создать просторные комнаты и удобные пути перемещения.
Двухэтажные дома
Двухэтажные дома требуют особого внимания к планировке лестниц и разделению пространства на жилые и технические зоны.
Таблица: Основные нормативы для планировки частного дома
| Помещение | Минимальная площадь, м | Минимальная высота потолков, м |
|---|---|---|
| Гостиная | 12 | 2.5 |
| Спальня | 8 | 2.5 |
| Кухня | 6 | 2.5 |
| Санузел | 3 | 2.5 |
| Коридор | 1.5 | 2.5 |
Советы по выбору стиля интерьера
Стиль интерьера напрямую влияет на комфорт и эстетическую привлекательность вашего дома. Среди популярных стилей:
- Модерн
- Классика
- Минимализм
- Рустик
Модерн
Стиль, характеризующийся использованием современных материалов и технологий. Основное внимание уделяется функциональности и эстетике.
Классика
Классический стиль отличается использованием натуральных материалов и традиционных форм. Он создает атмосферу комфорта и стабильности.
Заключительные мысли
Планировка частного дома – это сложный, но увлекательный процесс, требующий внимания к деталям и соблюдения норм и правил. Учитывая все вышеперечисленные рекомендации, вы сможете создать уютное и функциональное пространство, которое будет соответствовать вашим потребностям и пожеланиям.
Связанные вопросы и ответы:
Вопрос 1: Какие ключевые нормы и правила необходимо учитывать при планировке частного дома или коттеджа
При планировке частного дома или коттеджа важно учитывать строительные нормы и правила, которые обеспечивают безопасность и комфорт. Среди ключевых норм можно выделить соблюдение минимальных размеров помещений, таких как спальни, кухни и санузлы. Также необходимо учитывать требования к расстояниям между окнами, дверями и другими элементами интерьера. Не менее важно соблюдать противопожарные нормы, такие как наличие огнетушителей и маршрутов эвакуации. Кроме того, планировка должна соответствовать требованиям по инсоляции и вентиляции помещений.
Вопрос 2: Как обеспечить безопасность в частном доме или коттедже при его планировке
Обеспечение безопасности в частном доме или коттедже начинается с соблюдения противопожарных норм. Уобходимо предусмотреть несколько эвакуационных маршрутов, особенно на верхних этажах. Также важно использовать огнестойкие материалы для строительства и отделки. Необходимо установить системы пожаротушения и детекторы дыма. Кроме того, при планировке лестниц следует соблюдать требования к их ширине и высоте ступеней, чтобы избежать травм.
Вопрос 3: Какие рекомендации по функциональной планировке частного дома или коттеджа можно дать
Функциональная планировка частного дома или коттеджа должна быть основана на потребностях жильцов. Необходимо зонировать пространство так, чтобы жилые, рабочие и технические зоны были разделены. Удобство перемещения по дому также важно, поэтому коридоры не должны быть слишком узкими. Расположение санузлов и кухонь должно быть удобным для всех членов семьи. Также стоит предусмотреть места для хранения вещей, чтобы избежать загромождения жилых помещений.
Вопрос 4: Какие экологические аспекты стоит учитывать при планировке частного дома или коттеджа
При планировке частного дома или коттеджа важно учитывать экологические аспекты. Использование экологичных материалов для строительства и отделки поможет снизить воздействие на окружающую среду. Также стоит предусмотреть естественное освещение и вентиляцию, чтобы уменьшить потребление энергии. Установка энергосберегающих систем, таких как солнечные панели, может дополнительно снизить энергопотребление. Кроме того, правильная планировка может улучшить энергетическую эффективность дома.
Вопрос 5: Какие рекомендации по эстетической планировке частного дома или коттеджа можно дать
Эстетическая планировка частного дома или коттеджа должна отражать личный стиль жильцов. Стиль фасада и интерьера должен быть гармоничным и соответствовать окружающей среде. Выбор цветов и материалов для отделки также играет важную роль в создании уютной атмосферы. Необходимо обратить внимание на пропорции и баланс в планировке, чтобы избежать визуального дисбаланса. Ландшафтный дизайн территории также должен дополнять общий стиль дома.
Вопрос 6: Какие советы по оптимальному использованию пространства можно дать при планировке частного дома или коттеджа
Оптимальное использование пространства при планировке частного дома или коттеджа требует тщательного подхода. Необходимо учитывать, как каждая комната будет использоваться, чтобы избежать ненужных площадей. Использование мансард и чердаков может добавить дополнительное жилое пространство. Организация хранения также важна, поэтому стоит предусмотреть шкафы и полки. Удобство перемещения по дому должно быть обеспечено за счет правильного расположения дверей и коридоров.
Вопрос 7: Какие современные технологии можно использовать при планировке частного дома или коттеджа
Современные технологии могут значительно улучшить комфорт и безопасность в частном доме или коттедже. Системы "умного дома" позволяют управлять освещением, отоплением и безопасностью дистанционно. Установка автоматизированных систем может снизить энергопотребление и повысить удобство. Современные материалы, такие как энергосберегающие окна и изоляционные материалы, могут улучшить энергоэффективность дома. Также стоит предусмотреть системы безопасности, такие как камеры наблюдения и сигнализация, чтобы обеспечить защиту жильцов.
Какие основные принципы планировки частного дома или коттеджа
● гостевые – кухня, гостиная, столовая● приватные – спальня, ванная, детская● частные – кабинет, гардеробная, отдельные комнаты, если жилое пространство позволяет
Едва ли не самый важный параметр для планировки – величина жилого пространства. Прежде чем покупать квартиру и приступать к перепланировке, нужно объективно оценить, сколько квадратных метров потребуется для каждого проживающего в ней человека. Площадь не должна быть слишком большой: перспектива блуждать по собственному жилью в поисках нужной комнаты вряд ли может обрадовать. В то же время в квартире должно быть достаточно просторно.
Разумеется, при подборе жилья и перепланировке на первый план могут выйти и другие немаловажные факторы. Было бы замечательно учитывать возраст, пол, потребности, стиль жизни и характер членов семьи, учитывать пополнение в семье. Если в доме часто бывают гости, потребуются соответствующие зоны. Для деловых людей может понадобиться отдельный тихий кабинет. Важно предусмотреть и место для отдыха и занятий хобби.
Что касается площади квартиры, здесь стоит исходить из особенностей конкретной семьи. В свою очередь, Жилищный кодекс РФ говорит о том, что современная норма жилой площади – 12 м2 на одного человека. Разумеется, этот показатель может варьироваться в зависимости от целей его применения и региона. Федеральная минимальная санитарная норма жилой площади – 6 м2 на человека, а социальная норма общей площади помещения – 18 м2 на одного из трех членов семьи, но не менее 16 м2.
Эффективное использование площади
В идеальной квартире не должно быть пустых, бесполезных, нерешенных пространств. Существуют даже экономические требования композиции квартиры, которые определяют площадь и размеры отдельных помещений так: на одного человека – 6 м2 и в среднем 48 м2 – на семью.
Каждая комната может содержать одновременно несколько зон. Например, в спальне можно сделать рабочее место, предусмотреть место для телевизора, оборудовать мини-кофейню. Естественным ограничением станет лишь площадь: каждый функциональный элемент, будь то кровать или шкаф, телевизор или журнальный столик, занимает определенное место. Можно сказать, что каждая функция в доме «стоит» столько-то квадратных (на самом деле кубических) метров.
Принцип №3 Планирование помещений
Размеры и взаимное расположение жилых комнат и подсобных помещений подбирают, обращая внимание на численный и возрастной состав семьи и возможность удобной расстановки мебели. Распределять жилую площадь нужно с учетом ее функциональности и общих представлений владельцев квартиры о результате, который должен получиться в итоге.
Главные критерии, на основе которых оценивают качество квартиры, – это удобство планировки, наличие и размер подсобных помещений, целесообразное техническое оборудование и красивая художественная композиция интерьера.
Какие требования предъявляются к минимальным размерам комнат в частном доме
При определении расположения комнат в доме стоит отталкиваться от их предназначения. Помещения в здании можно разделить на два типа: хозяйственные и жилые.
Для жилых помещений важно расположение на тех сторонах, где больше света — это экономит деньги на освещении и отоплении. Хозяйственные помещения располагают в соответствии с планом коммуникаций: газа, водоотведения, канализации.
Жилые комнаты можно условно поделить на те, где чаще всего жильцы проводят дневные часы, и те, в которых находятся вечером и ночью. Исходя из этого планируется их расположение — с учетом освещенности в разное время суток.
Спальни рекомендуется расположить в восточной части дома, чтобы заходящее солнце не мешало ложиться спать в летние часы. А комнаты дневного отдыха — столовые, гостиные, детские, игровые — лучше размещать там, где днем максимальная естественная освещенность. Зоны отдыха, обеда и кухни можно объединить в единое пространство, чтобы наполнить его светом и воздухом.
Нормативы, которые используются при строительстве и планировании жилых помещений в многоквартирных домах, для частных малоэтажных домов необязательны, но ориентироваться стоит именно на них — например, располагать мокрые зоны на разных этажах друг под другом, а газовую плиту изолировать от жилых комнат.
Анна Раджабова:
— Чаще всего в двухэтажном загородном доме на первом этаже располагаются кухня, гостиная, хозяйственные помещения, один из санузлов, одна-две гостевые комнаты. На втором этаже размещают спальни для членов семьи, кабинет (если есть необходимость) и желательно второй санузел. Бильярдную, спортивный зал, вспомогательные помещения лучше спланировать на первом этаже, чтобы снизить нагрузку на перекрытия.
Важную роль играет расположение дома по сторонам света. Максимально светлыми должны быть помещения, в которых жильцы проводят большую часть времени. К ним относятся гостиная, кухня, столовая, кабинет, детская. Окна в этих комнатах должны выходить на юг.
Технические комнаты, такие как котельная или бойлерная, лучше выделить в отдельное помещение для того, чтобы соблюсти требования безопасности и снизить шум. Также это упростит обслуживание оборудования. Если есть возможность, стоит предусмотреть несколько кладовых для хранения продуктов и вещей.
Важно помнить, что помещения с мокрыми зонами должны располагаться поблизости от коммуникаций. Если этим пренебречь, то как минимум придется тянуть трубы до кухни. Для комфорта проживания лучше предусмотреть два санузла. Один стоит расположить на первом этаже (желательно близко к входу), другой — на втором. При этом они должны находиться друг над другом. Туалет и кухню стоит разнести по разным частям дома.
Важно ли учитывать расположение окон и дверей при планировке
ГОСТ Р 70346-2022 «Зеленые» стандарты. Здания многоквартирные жилые «зеленые» — система оценки многоквартирных жилых домов по «зеленым» критериям с учетом всего жизненного цикла объекта. Стандарт разработан Минстроем России совместно с ДОМ.РФ и был утвержден Росстандартом в сентябре 2022 года. Новый ГОСТ Р учитывает комплекс факторов, влияющих на качество жизни людей: от доступности среды и безопасности зданий до улучшения экологии и развития культуры обращения с отходами, а также соответствует Цели 11 ООН «Устойчивые города и населенные пункты».
Стандарт призван заместить зарубежные системы оценки (такие как LEED, BREEAM и DGNB), ушедшие из России. Разработка ГОСТ Р велась на основе лучшего международного опыта, при этом учитывались национальные особенности строительства, российское законодательство, технические особенности процессов. Одно из сходств с международными системами оценки жилья — соответствие ГОСТ Р является добровольным выбором застройщика.
В ГОСТ Р, как и в LEED, сделан акцент на энергоэффективность — критерии по повышению энергосберегающих свойств здания и использованию альтернативной энергии составляют до 15% баллов в стандарте, при этом обязательно, чтобы класс энергоэффективности зеленого дома был не ниже А, то есть очень высокого. При вводе жилья класса энергоэффективности А объем ежегодного выброса парниковых газов в сфере ЖКХ от его обслуживания снижается по сравнению со «стандартным» для страны классом энергоэффективности D приблизительно на 40-50%.
Основное отличие национального стандарта от зарубежных — возможность проектирования зеленого здания и подготовки документации для оценки без помощи консультантов — с учетом адаптированности стандарта к российскому законодательству и техническим требованиям застройщик может самостоятельно изучить стандарт и внести необходимые требования в проектную документацию. Дополнительно, для того, чтобы упростить эту работу, ДОМ.РФ в настоящее время завершает подготовку обучающего курса в партнерстве с одним из ведущих вузов России.

Как правильно распределить жилые и технические помещения в доме
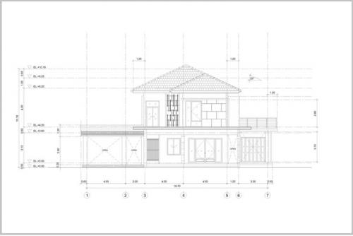
Проект дома — совокупность чертежей и документов, в которых содержится вся информация о будущем здании.
По сути, общий проект состоит из нескольких:
1. Эскизный проект — набросок будущего дома. Выполняется в первую очередь. В эскизном проекте дом получает очертания: определяются габариты, этажность, визуальное решение и примерные планировки.

Фрагмент эскизного проекта здания
2. Архитектурный проект — документ, детализирующий архитектурные решения, которые будут использоваться при строительстве. Выполняется на основе эскизного, но уже с филигранной проработкой всех нюансов. На этом этапе решается, какими будут окна, двери, фасады, тщательно продумывается планировка. При необходимости архитектурный проект ложится в основу 3D-визуализации.

Фрагмент архитектурного проекта здания
3. Конструктивная проработка — ещё два проекта, выполненных на основе архитектурного проекта.
Конструктивная проработка состоит из двух частей:
- КЖ — конструкции железобетонные;
- КД — конструкции деревянные.

Фрагмент конструктивной проработки
И КЖ, и КД детализируют конструктив здания: какой фундамент нужен для дома, как должны быть возведены стены, какие конструктивные элементы необходимо использовать и сколько материалов понадобится.
4. Проект инженерных сетей — финальный проект. Он подробно описывает прокладку инженерных сетей — систем отопления, водоснабжения, канализации, вентиляции, электрических и слаботочных сетей.

Пример проекта инженерных сетей. Источник: dekartstroy.ru
Часто этим проектом пренебрегают из экономии, а зря: если не просчитать нагрузку на отопительную систему и не оценить эффективность выбранного решения, вряд ли в доме будет комфортно жить зимой.
Для этого важно понимать, сколько тепла дом будет терять при использовании той или иной технологии, сколько и какие приборы отопления нужны для компенсации.
Аналогичного подхода требует и проектирование системы водоснабжения. Выбор оборудования зависит от числа людей, которые будут жить в доме и пользоваться им. Проект инженерных сетей учитывает количество санузлов и других мокрых точек, число конечных потребителей, их потребности, а также предполагаемые сценарии жизни в доме.
Какие нормы безопасности нужно соблюдать при планировке частного дома
Деревянные отделочные панели представляют собой многослойную конструкцию, где лицевой слой выполнен из ценных пород древесины, а основание может варьироваться от МДФ до полимерных материалов. Этот инновационный подход позволяет совместить эстетическую привлекательность натурального дерева с практичностью современных технологий. Толщина панелей колеблется от 6 до 25 мм, что существенно влияет на их эксплуатационные характеристики и область применения. Особого внимания заслуживает система замкового соединения, обеспечивающая практически бесшовную укладку и повышенную защиту от внешних воздействий.
Ключевым преимуществом деревянных отделочных панелей является их экологичность – они не выделяют вредных веществ и поддерживают оптимальный микроклимат в помещении за счет естественной способности древесины регулировать влажность воздуха. По сравнению с массивной древесиной, такие панели значительно легче, что существенно упрощает процесс монтажа и снижает нагрузку на несущие конструкции здания. Специальная обработка поверхности обеспечивает высокую устойчивость к механическим повреждениям и долговечность покрытия даже в помещениях с повышенной влажностью или интенсивной эксплуатацией.
Особенно важно отметить технологические возможности современных деревянных панелей для внутренней отделки. Современные производители предлагают широкий спектр вариантов обработки поверхности: от классического шлифования до сложных текстурных решений, имитирующих старинные техники обработки древесины. Дополнительное преимущество заключается в возможности быстрой замены поврежденных участков без необходимости полной реконструкции отделки. При этом стоимость ремонта существенно ниже по сравнению с традиционной отделкой натуральным шпоном или массивом.
Сравнение характеристик различных типов деревянных панелей
| Тип панели | Прочность (по шкале Мооса) | Устойчивость к влаге (%) | Срок службы (лет) | Теплоизоляция (R-значение) |
|---|---|---|---|---|
| Массивная древесина | 4-5 | 40-60 | 15-20 | 1.25 |
| Шпонированные панели | 3-4 | 50-70 | 10-15 | 1.10 |
| Ламинированные панели | 3-4 | 60-80 | 8-12 | 1.05 |
Рассмотрим более подробно особенности монтажа деревянных отделочных панелей и их влияние на конечный результат отделки помещения. Процесс установки требует тщательной подготовки основания и соблюдения технологических норм, что напрямую влияет на долговечность покрытия. Существует несколько основных методов крепления: каркасный способ, клеевой метод и комбинированная система, каждый из которых имеет свои особенности применения в зависимости от типа помещения и условий эксплуатации. Например, для помещений с повышенной влажностью рекомендуется использовать каркасный метод с предварительной гидроизоляцией основания, что обеспечивает дополнительную защиту от негативного воздействия влаги.
Важным фактором является выбор направления укладки панелей, который зависит от архитектурных особенностей помещения и желаемого визуального эффекта. Вертикальная укладка способствует визуальному увеличению высоты потолков, тогда как горизонтальное расположение создает ощущение простора и расширяет пространство. При этом следует учитывать необходимость компенсационных зазоров между панелями и стенами, которые должны составлять не менее 10-15 мм для предотвращения деформации при температурных изменениях. Особое внимание уделяется угловым соединениям и стыкам с различными поверхностями – именно эти элементы наиболее подвержены механическим нагрузкам и требуют дополнительной защиты.
Профессиональные мастера рекомендуют начинать монтаж с наиболее заметной части помещения, постепенно продвигаясь к менее видимым участкам. Это позволяет минимизировать количество видимых стыков и обеспечить максимальную эстетичность отделки. Также стоит отметить важность правильного хранения панелей перед монтажом – материал должен акклиматизироваться в помещении не менее 48 часов при температуре 18-22°C и относительной влажности 40-60%. Нарушение этих условий может привести к деформации панелей после установки и снижению общего качества отделки.
Какие экологические стандарты стоит учитывать при проектировании коттеджа
Проектирование загородных домов – коттеджей, дачных домов, частных домов для постоянного проживания и т. д. — это динамичный процесс, который постоянно развивается и изменяется. С каждым годом появляются новые тенденции и идеи, которые вносят определенные новшества в строительство частных домов.
Сегодня архитекторы и проектировщики при разработке проектов опираются уже не только на вопросы уникального дизайна, большой жилой площади или необычных архитектурных решений фасада здания. При проектировании современных загородных домов специалисты учитывают и другие вопросы, такие как энергетическая эффективность домов, их экологичность, автономность. При разработке проектов современных домов сегодня уделяется особое внимание следующим аспектам:
- Материалы для строительства домов. В современном проектировании и строительстве загородных домов используются не самые высокие или низкие по стоимости материалы. Сегодня предпочтение отдается, с одной стороны, материалам экологически чистым и безвредным для окружающей среды, а с другой стороны – материалам энергоэффективным. Данные материалы должны обладать низкой теплопроводностью, чтобы сохранять температуру в помещении и снижать затраты энергии на отопление в холодное время года.
- Технология энергоэффективного строительства домов. В современном домостроении специалисты уделяют особое внимание использованию технологий и материалов, позволяющих уменьшить теплопотери в доме. По статистике на отопление домов в среднем тратится 30% электроэнергии от всего потребления домохозяйства. Поэтому решение этого вопроса и правильная планировка домов становится чуть ли не главной задачей разработчиков проекта. Так, например, большая часть тепла уходит через кровлю, и утеплению этой части коттеджа или дома теперь принято уделять больше внимания, нежели стенам. Также используются технологии бесшовного строительства, когда элементы конструкций соединяются так плотно, чтобы не создавать на стыках мостики холода, через которые уходит тепло. Отдельное внимание уделяется вентиляции зданий. Приточно-вытяжная вентиляция с рекуперацией тепла позволяет экономить до 80% затрат тепла на обогрев приточного воздуха в холодное время года. Существует целый ряд подобных решений, и данные решения с одной стороны помогают снизить негативное воздействие строительства на окружающую среду, а с другой – помогают экономить владельцам домов на стоимости электроэнергии.
- Технологичность современных домов. Современные коттеджи отличаются не только технологией строительства, но и соответствующим техническим оснащением. Это умные системы освещения, автоматические датчики контроля температуры воздуха, системы дистанционного управления техникой и так далее.