Создай свой идеальный интерьер: дизайн-проект квартиры своими руками
- Создай свой идеальный интерьер: дизайн-проект квартиры своими руками
- Связанные вопросы и ответы
- С чего начать создание дизайн-проекта квартиры своими руками
- Какие основные этапы создания дизайн-проекта квартиры
- Как выбрать цветовую схему для квартиры
- Как правильно спланировать планировку комнат
- Как выбрать мебель и декор для интерьера
- Как создать уютную атмосферу в квартире
- Какие ошибки чаще всего допускают начинающие при создании дизайн-проекта
- Как подобрать освещение для разных зон квартиры
Создай свой идеальный интерьер: дизайн-проект квартиры своими руками
Создание идеального интерьера — это не только вопрос эстетики, но и функциональности. Каждая деталь в вашей квартире должна отражать вашу индивидуальность и создавать уютную атмосферу. В этой статье мы расскажем, как разработать дизайн-проект квартиры своими руками, без обращения к профессиональным дизайнерам.
1. Планирование пространства
Первым шагом в создании интерьера является планирование пространства. Для этого необходимо учитывать размеры комнаты, расположение окон, дверей и других архитектурных элементов. Сделайте подробные измерения и нарисуйте схему вашей квартиры на бумаге или с помощью специальных программ.
При планировании пространства важно учитывать зонирование. Например, в студии можно разделить зону для сна, работы и отдыха с помощью штор, перегородок или мебели.
| Зона | Функции |
|---|---|
| Зона сна | Кровать, тумбочки, шкаф для одежды |
| Зона работы | Стол, стул, книжные полки |
| Зона отдыха | Диван, телевизор, кофейный стол |
2. Выбор цветовой гаммы и материалов
Цветовая гамма играет ключевую роль в создании интерьера. Она должна отражать ваше настроение и создавать необходимую атмосферу. Например, светлые тона делают комнату больше и светлее, а темные — уютнее и более интимной.
При выборе материалов важно учитывать их качество и долговечность. Пол, стены, потолок — все это должно быть не только красивым, но и практичным.
- Цветовые комбинации:
- Белый + серый + синий
- Коричневый + бежевый + зелёный
- Чёрный + белый + красный
- Популярные материалы:
- Паркетная доска
- Керамическая плитка
- Обои с текстурой
3. Освещение
Освещение способно изменить восприятие пространства. Существует несколько типов освещения:
- Основное освещение — это люстры или потолочные светильники.
- Фоновое освещение — это встроенные светильники или светодиодные ленты.
- Локальное освещение — это настольные лампы или напольные светильники.
Советы по организации освещения:
- Используйте несколько источников света.
- Диммеры помогут регулировать яркость.
- Светодиодные ленты можно использовать для декоративного освещения.
4. Мебель и декор
Мебель — это основа интерьера. Она должна быть функциональной и стильной. При выборе мебели учитывайте размеры комнаты и ваш образ жизни.
Выбор мебели
- Минимализм — это простые формы и минимум деталей.
- Классика — это традиционные формы и натуральные материалы.
- Модерн — это современные дизайны и необычные решения.
Добавление декора
Декор добавляет интерьеру индивидуальности. Это могут быть:
- Картины или постеры
- Растения
- Ковры
- Подушки и пледы
5. Выполнение проекта
После того как вы разработали дизайн-проект, пришло время приступить к его реализации. Разделите процесс на этапы:
- Подготовка помещения — очистите комнату, снимите старую отделку.
- Отделочные работы — поклейте обои, положите пол, покрасьте потолок.
- Установка мебели и декора — расставьте мебель, добавьте декоративные элементы.
- Финальные штрихи — проверьте всё, внесите последние коррективы.
Создание интерьера — это творческий процесс, который требует времени и внимания. Но, следуя этим шагам, вы сможете создать свой идеальный интерьер своими руками.
Связанные вопросы и ответы:
Вопрос 1: С чего начать дизайн-проект квартиры своими руками
Начать дизайн-проект квартиры своими руками стоит с планировки пространства. Для этого необходимо измерить все комнаты, двери и окна, а также определить, какие зоны будут в каждой комнате (например, зона отдыха, рабочее место, кухонная зона). Используйте специальные программы для создания планировки, такие как Planner 5D или RoomSketcher, чтобы визуализировать пространство. Также важно учитывать свои потребности и предпочтения, чтобы проект был функциональным и комфортным. Не забудьте предусмотреть место для хранения вещей и подумать о том, как будет организовано освещение.
Вопрос 2: Как выбрать цветовую гамму для квартиры
Выбор цветовой гаммы для квартиры зависит от нескольких факторов: освещенности, размера комнат, а также ваших личных предпочтений. Начните с определения основного цвета, который будет доминировать в интерьере, например, белого, серого или бежевого. Затем добавьте акцентные цвета, которые будут привлекать внимание, например, с помощью мебели, ковров или декоративных элементов. Обратите внимание на то, как цвета влияют на настроение: холодные оттенки (синий, зеленый) создают спокойную атмосферу, а теплые (оранжевый, желтый) — уютную и энергичную. Также важно учитывать цвет мебели и отделки, чтобы все гармонировало.
Вопрос 3: Как совместить функциональность и эстетику в дизайне квартиры
Совместить функциональность и эстетику в дизайне квартиры можно, если тщательно продумать каждую деталь. Начните с определения функциональных зон в каждой комнате и выберите мебель, которая будет выполнять несколько функций, например, диван с хранением или стол с встроенными ящиками. Используйте декоративные элементы, такие как картины, растения или текстиль, чтобы добавить эстетики. Также важно учитывать освещение: комбинируйте верхнее освещение с настольными лампами или напольными светильниками для создания уютной атмосферы. Не забудьте про текстиль — он может добавить комфорта и стиля.
Вопрос 4: Как сэкономить на дизайн-проекте квартиры
Сэкономить на дизайн-проекте квартиры можно, если планировать все заранее и использовать доступные материалы. Начните с того, что не меняйте планировку, если это не обязательно, так как перепланировка может быть дорогостоящей. Используйте бюджетные варианты отделки, такие как покраска стен вместо обоев, или выбирайте мебель из IKEA, которая недорога и функциональна. Также можно использовать вторичные вещи, которые вы уже имеете, и преобразовать их под новый стиль. Не забудьте сравнить цены на материалы и мебель в разных магазинах, чтобы найти лучшие предложения.
Вопрос 5: Какие современные тенденции в дизайне квартир стоит учитывать
Современные тенденции в дизайне квартир включают минимализм, экологичность и использование натуральных материалов. Многие выбирают светлые оттенки стен, которые визуально увеличивают пространство, и добавляют текстуру с помощью деревянных элементов или растений. Также популярны многофункциональные пространства, где одна комната выполняет несколько функций. Не забудьте про современное освещение, такое как светодиодные ленты или встроенные светильники, которые добавляют стиля и комфорта. Уделите внимание устойчивым материалам, таким как переработанная древесина или экологичные краски.
Вопрос 6: Как сделать дизайн маленькой квартиры визуально больше
Чтобы сделать дизайн маленькой квартиры визуально больше, используйте светлые цвета для стен и потолков, так как они отражают свет и делают пространство более просторным. Минимизируйте количество мебели и выбирайте компактные модели, такие как складные столы или диваны с хранением. Обратите внимание на вертикальные линии: используйте длинные шторы или полки, которые тянутся до потолка, чтобы создать иллюзию высоты. Также важно правильно организовать освещение: используйте несколько источников света, чтобы избежать тени и сделать пространство более светлым.
Вопрос 7: Как добавить в дизайн квартиры элементы личного стиля
Добавить в дизайн квартиры элементы личного стиля можно с помощью декоративных деталей, которые отражают ваши интересы и характер. Например, используйте постеры или картины, которые вам нравятся, или добавьте коллекционные предметы, такие как винтажные вещи или сувениры. Также можно использовать текстиль в вашем любимом цвете или с узором, который вам нравится. Не забудьте про растения — они не только украшают пространство, но и добавляют живую энергию. Если вы любите рукоделие, создайте что-то своими руками, например, подушки или вазы, чтобы сделать интерьер уникальным.
Вопрос 8: Какие ошибки стоит избегать при создании дизайн-проекта квартиры
Одна из главных ошибок при создании дизайн-проекта квартиры — это отсутствие четкого плана. Без него можно потратить много времени и денег на исправление ошибок. Также важно не перегружать пространство мебелью и декоративными элементами — это может сделать квартиру тесной и неуютной. Не забудьте учитывать освещение: недостаток света может сделать пространство мрачным, а избыток — создать дискомфорт. Еще одна ошибка — это игнорирование функциональности: убедитесь, что каждая зона в квартире выполняет свои функции и удобна для использования.
С чего начать создание дизайн-проекта квартиры своими руками
Этап 1. Техническое задание
Работа над дизайн-проектом начинается со сбора предварительной информации и заполнения дизайнерского брифа.
Во-первых, это изучение объекта проектирования — совершение замеров, фото-фиксация объекта, анализ инженерных сетей, составление обмерного плана помещений.
Во-вторых, это совместное составление технического задания на проектирование.
ТЕХНИЧЕСКОЕ ЗАДАНИЕ - создается индивидуально для конкретного объекта на основе Дизайнерского брифа
Мы внимательно выслушиваем все Ваши мысли и пожелания, подбираем вдохновляющие стилистические образы будущего интерьера, согласовываем принципиальное зонирование объекта.
ДИЗАЙНЕРСКИЙ БРИФ - включает в себя порядка 30 вопросов и делиться на
3 смысловых части:
1. Общая информация об объекте
2. ТЗ на разработку дизайн-идеи проекта
3. ТЗ на функциональную часть дизайн-проекта
Вы можете запросить дизайнерский бриф здесь
Этап 2. Эскизный проект
Планировочное решение
Планировочное решение — это скелет, на который нанизывается дизайн. Это наш любимый и один из самых интересных этапов работы, которому мы уделяем достаточное время. Никакие материалы и мебель не сделают интерьер удобным и уютным, если его пространство плохо продумано в самом начале.
Объемно-пространственные эскизы
Чтобы было проще понять и представить пространство, заложенное нами в планировочном решении, мы создаем для Вас эскизы. Вы сможете увидеть и оценить будущий интерьер.
Принципиальный подбор материалов, цветовые решения
Мы предложим цветовые и стилевые схемы для каждого помещения, подберем и согласуем основные позиции по мебели, освещению и декору.
Этап 3. Визуализация
3D-визуализация каждого помещения наглядно покажет, как будет выглядеть интерьер после реализации. Визуализация проекта может выполняться в различных графических программах 3D Max, ArchiCAD , Adobe Illustrator.
Этап 4. Рабочие чертежи
Стандартный рабочий проект включает в себя следующие основные разделы:
1. Общие данные, пояснительная записка
2. Обмерный чертеж с привязкой инженерных коммуникаций
3. Планировочные решения с расстановкой мебели и оборудования
4. План демонтажа и возведения перегородок по окончательному планировочному решени
5. План полов с указанием перепадов уровней, материалами напольных покрытий и разрезами конструкций
6. Развертки стен помещений с раскладками материалов и их спецификаций
7. План потолков с указанием типа используемого материала и разрезами конструкций
8. План размещения санитарно-технического оборудования
9. План размещения осветительного оборудования, электрических розеток и выводов
10. Спецификация осветительного оборудования
11. План размещения подогрева пола
12. Спецификация дверных и оконных проемов с указанием размеров проемов и выбранных моделей
13. Ведомость отделки помещений
В случае внедрения сложных инженерных систем, например, мультирум, акустических систем и систем «умного дома», диспетчеризации, охранной и пожарной сигнализации, видеонаблюдения, контроля доступа и других, стандартный состав дизайн-проекта дополняется чертежами подрядчиков соответствующих инженерных разделов.
Этап 5. Подбор материалов и ведомость отделки
Этот этап является финальным в работе над дизайн-проектом. После подачи и согласования с вами рабочей документации мы делаем подбор отделочных материалов, мебели и оборудования. Все материалы сводятся в удобную таблицу с указанием наименований материалов, артикулами, количеством, а также контактами поставщиков. Вы можете выбрать предложенных нами поставщиков и и подрядчиков, либо на основе этой таблицы провести собственный тендер и выбрать других. Более детальную работу по подбору фактуры материалов, деталей мебели и фурнитуры, вы сможете осуществить в период работы по комплектации проекта.
Этап 6. Сдача проекта
Как правило на этом этапе концепция проекта становиться достаточно понятна. Теперь настало время когда заказчик и дизайнер обсуждают все оставшиеся не решенные вопросы. По итогу этих собеседований дизайнер предоставляет проект на конечное согласование. Как правило сдача проекта проходит с первой подачи материала. Но если у заказчика возникают вопросы, то доработка проекта будет продолжена до полного удовлетворения всех сторон.
ДОПОЛНИТЕЛЬНЫЕ УСЛУГИ
Регулярный авторский надзор
Комплектация проекта мебелью
Разовые выезды для консультаций
Финишное декорирование объекта
Согласование перепланировки
Ремонтно-строительные работы
Дизайн и ремонт «под ключ»
• - Визуализация объекта может выполняться в различных техниках в зависимости от выбранного тарифа (или дизайнера): ручная подача, креативный скетч, стилистический коллаж, визуализация в программах 3D Max, ArchiCAD , Adobe Illustrator. При переговорах согласуются запросы Заказчика.
• - Случаи добавления документации, не входящей в перечень, согласуются дополнительно.
• - В случае значительной перепланировки объекта, Заказчику рекомендуется осуществить согласование перепланировки в официальных органах.
Какие основные этапы создания дизайн-проекта квартиры
Каждый человек, хоть раз в жизни столкнувшийся с ремонтом в квартире или доме, решал животрепещущую проблему: какие цвета и оттенки выбрать для оформления интерьера? Понятно, что они должны быть приятными для тех, кто будет жить в данном антураже. Выбранные цвета не должны вызывать негативных реакций, отторжения, головной боли или ввергать в состояние тоски. Но ведь это далеко не все! Мало найти краску, обои или фасадыоттенок которых будет идеально соответствовать хозяйскому чувству прекрасного. Нужно грамотно совместить различные тона, дополнить интерьер интересными фокусными элементами.
Цвет способен на многое. Он создает определенное настроение в помещении. Полностью раскрывает достоинства комнаты и «прячет» недостатки. Он способен вдохновлять и восхищать, напитывать энергией и будить негативные стороны человеческого характера.
Неправильно подобранный цвет – это катастрофа. То, что на фото в каталоге, в определенном освещении, смотрелось божественно, дома может превратиться в унылый, тусклый цвет. Он будет душить, полностью убивая впечатление от дорогой мебели и качественного текстиля.
Даже опытные дизайнеры множество раз перекрашивают стены при дневном и искусственном освещении в конкретной комнате, чтобы понять, какой именно результат будет получен. То же самое можно сказать о выборе обоев. Один и тот же рисунок по-разному смотрится на витрине магазина, под люминесцентными лампами, залитый солнцем, бьющим в окно, и в теплом свете домашней люстры.
Восприятие также зависит от текстуры поверхности – глянцево-блестящей, фактурной, матовой. Еще более придирчиво подбирают сочетания оттенков разных цветов или одного цвета, но различной насыщенности.
Сегодня мы поговорим о правилах и нюансах, раскрывающих секреты цветовых сочетаний в различных интерьерах. Специалисты расскажут, какие тона можно смело компоновать, от чего лучше отказаться.
Какие факторы влияют на выбор палитры для оформления интерьера
Современные интерьерные направления раскрывают простор для творчества и нестандартного подхода к решению типовых задач. Нет четко заданных границ и канонов, поэтому любой владелец недвижимости может выбрать интерьер по своему вкусу.
Цветовые сочетания выбирают, исходя из разных соображений.
Самым важным критерием является цветовое восприятие – глубоко личное, индивидуальное ощущение, вызываемое у человека тем или иным цветом. Кому-то больше нравятся теплые, огненные цвета, а для кого-то красный – это одна большая головная боль. Есть люди, которые предпочитают совершенно нейтральную, серую или бежевую гамму. Если оттенок вызывает интуитивное неприятие, не стоит включать его в интерьер.
Не стоит исключать и темперамент домочадцев, а также тот настрой в комнате, который планируется получить. Некоторые оттенки способны взбодрить, насытить энергией, стимулировать работу мозга. Они никак не подходят для спальни, зато создают отличную рабочую атмосферу в кабинете или гостиной. И, напротив, есть оттенки, которые помогут успокоиться, расслабиться, погрузиться в свой внутренний мир.
Пастельная, минимально контрастная палитра , создает легкие, воздушные интерьеры. Их невесомой прелестью можно наслаждаться в течение многих лет. Они умиротворяют, создают ощущение теплого, гостеприимного дома.
Контрастные, насыщенные цвета зовут к действию. Они очень хорошо подходят для сложных, творческих натур, а также лидеров, которые стремятся к доминированию во всем.
Если ремонт уже начат, а в голове нет абсолютно никаких идей по поводу цветовой палитры, стоит воспользоваться готовыми, давно и успешно отработанными, решениями.
Схемы цветовых сочетаний, которые могут помочь при оформлении интерьера
Если хозяева теряются с выбором, на помощь приходят готовые схемы цветовых сочетаний. Они созданы на основе цветового круга, и широко применяются профессиональными дизайнерами.


Как выбрать цветовую схему для квартиры
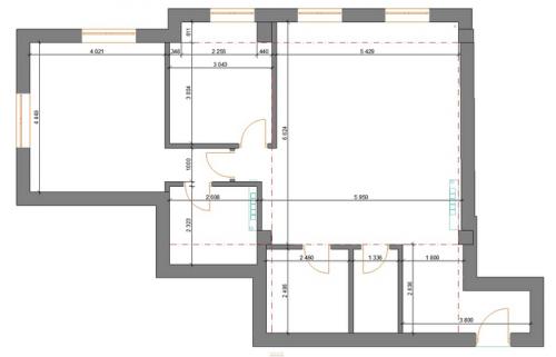
Всем привет! Никто об этом не просил, но все давно этого хотели:) Это то, с чего начинается всё - план . В нашем случае планировка жилого интерьера. Я продолжаю открывать шторку в комнату интерьерного проектирования, и показываю какие процессы происходят на кухне архитектурного дизайна.
На самом деле интерьер начинается с опросного листа, потом замера и только потом с планировки. Опросный лист и замер, как считаю довольно специфические темы, и навряд ли будут интересны людям не посвящённым, поэтому начинаем сразу с горячего.
У нас с вами на руках опросный лист со всеми пожеланиями и требованиями и обмерная модель. Приступаем к планировке. Хочу сразу добавить, нет идеального решения для каждого. Сколько людей столько и мнений. Вот к сожалению мне так и не удалось привести планировку к какому-то единому модулю, который был бы удобен всем. Ниже я буду добавлять поэтапные планы и к ним же буду давать пояснения, чтоб вы могли проследить как развивается проект. Так же проект ниже не претендует на идеальный вариант планировке, он отлично иллюстрирует процесс разработки. Итак, начнём.
Обмерная модель (красные штрихпунктирные линия, это одно из ребер ригеля) 93 м2

Сразу к обмерной модели, мы получаем примерный список требования из опросника
Санузел с ванной
Санузел
Спальня родительская
Спальня детская или кабинет
Кухня - Зал (можно отдельно)
(Комната хранения, она же прачечная. Не решили на этапе техзадание будет ли две отдельные комнаты, так как казалось что не хватит места, п.с. места хватило с головой)
Из техники которая требует монтажа, это два кондиционера и двухконтурный водонагревательный котёл (он встроился в кухню, в углу)
Особые пожелания, большая ванна, прямая либо полукруглая.
То есть у нас есть чёткие граница и примерно техзадание того, что нам нужно уместить.
Так же всегда держим в голове основные правила эргономики. Проходы не меньше 1000 мм. Так же помним, что без прямого солнечного света, могут быть только технические помещения.
Кухня и санузлы определяются сразу, они на прямой линии от шахты, всё что нам нужно это лаконично их вписать. Начинаем из требований выше искать нужную планировку:
Вариант 1

Делаем в первом варианте общую большую комнату, которая будет кухней и залом одновременно. Так же намечаем все остальные комнаты. Сразу нужно учесть толщину стен. В случае этой планировки был, кирпич и кладка была в пол кирпича. Людям далёким от всего строительного, ниже фото для наглядности.

Почему кирпич? Потому что заказчик захотел, Кирпич хорош тем, что на него можно повесить практически всё и везде.
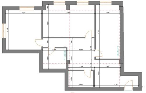
Вариант 2

Пытаясь разделить комнаты, получается не очень удачный план и на его фоне понимаем что так делать не нужно. В процессе поиска хорошего функционального интерьера, мы понимаем как же всё не удобно, стену можно упереть только в стену между двумя окнами. Еще есть открытые углы в квартире которые надо обыгрывать
Начинаем развивать первый вариант планировки, так как мы оба понимаем что он лучше (Оба, я имею в виду дизайнера и заказчика)

Происходит частичная меблировка, чтоб понять лучше объём. В целом неплохо получалась входная зона, она от всех ограничена, но прям у входа в зал из-за шкафа и колонны, проход остался всего, 1250 мм., мало.

Так же санузел около входя. Шахта далеко, прямую трубу можно пустить, но придётся возможно поднять сильно уровень пола. А уровень пола обычно выводится по уровню пола подъезда. Не всегда, но часто.

Ну или пускать трубы как то так. Неудобно.
Другая и самая большая проблема, как, куда и где расположить шкаф со столом в спальню. Окна мешают. Обсуждаем с заказчиком и оба понимаем что переодеваться и идти в гардероб через пол квартиры, прям совсем не вариант.
Работаем дальше над планировкой

Решили проблему местом в спальне. Установить посередине комнаты мебельный модуль со шкафом и столом.

Одну проблему решили, осталась другая, очень много пространства посередине зала и узкий вход в зал из-за колонны и шахты. Правда получилось коридор расширить и сделать 1500 мм против 1200мм которые были до этого.

В целом пространство достаточно, но опять же два открытых угла, прям у входа.
Так же есть не очень удачные решения, особенно из-за узкого коридора в спальню.
Как правильно спланировать планировку комнат
Минимализм — современный стиль, который берет истоки в японском стиле в сочетании с философией отрицания перепотребления. Минимализм не подойдет, если в квартире много вещей и не получается обходиться малым. Простор в минимализме достигается размерами помещений и отсутствием вещей не только на открытых поверхностях, но и в местах хранения.
Характерные черты и материалы
Палитры. Для минимализма характерны светлые приглушенные палитры с редкими акцентами. Это могут быть теплые и холодные цвета.
Отделка. В минимализме обычно окрашенные стены, редко — декоративная штукатурка с матовым финишем, имитирующая бетон или камень. Пол может быть как деревянный, так и наливной бесшовный, главное, чтобы он выглядел как ровная поверхность без выраженной текстуры. Потолок часто окрашивают в тон стен.
Мебель. В минимализме мебель преимущественно простых форм, без завитков и декора, но эти формы часто футуристичны и сами по себе являются акцентом в интерьере. Мебель в основном низкая и приземистая. Системы хранения сливаются со стенами.
Декор. В минимализме не много декора: его роль выполняют функциональные предметы необычных форм. Для украшения интерьера используют абстрактные картины, интересные вазы.
Советы по оформлению
Минимализм очень сложно реализовать в маленьком помещении. Во-первых, нужно куда-то убрать все вещи, а во-вторых, красота мебели раскрывается только на больших пространствах. Есть несколько нюансов, чтобы создать эстетичный интерьер.
Теплые цвета для уюта. Если не хотите, чтобы квартира была похожа на полупустой офис, используйте теплые оттенки белого, серого и дерева в отделке.
Спектр цветов. Если в комнате все будет одного цвета, композиция не сложится. Поэтому в минималистичных интерьерах используют оттенки одного цвета, от темных к светлым.
Детали для акцента. Чтобы глазу было за что зацепиться, оставляйте акценты, лучше всего черные или деревянные.
Как выбрать мебель и декор для интерьера
О том, какие ошибки чаще всего допускают начинающие дизайнеры по интерьерам, можно говорить вечно. Мы лишь упомянем некоторые из них в надежде, что это поможет Вам избежать их. Для достижения лучшего результата пройдите наше обучение дизайну интерьеров в программе 3Ds Max дистанционно или очно в группе. Это позволит Вам получить новую, престижную и высокооплачиваемую специальность в сфере строительства и ремонта.
Чаще всего начинающие визуализаторы впадают в путаницу с масштабами: и дверные ручки у них на уровне груди, и рабочая поверхность кухни на уровне колен, и светильники свисают на метр-полтора с потока. В общем, ошибки дизайнеров состоят в том, что они проектируют в своих программах совсем не то, что есть в реальной жизни. А если у заказчика возникает вопрос, они говорят ему, что, мол, это искажение называется перспективой и является обманом зрения. Но когда дело доходит до ремонта и отделки, эти несостыковки всплывают с новой силой.
Ошибки начинающих дизайнеров
Такие ошибки чаще всего допускают недавние выпускники всяких МАрхИ и ему подобных. Помимо путаницы в масштабах 3D-моделей мебели и аксессуаров, они также путаются в масштабах текстур. Например, натягивают на двери и окна текстуру дерева, а в настройках модификаторов указывают слишком большие или маленькие размеры. В результате получаются текстуры дерева, каких в природе не существует. Особенно жалко это смотрится на передних планах.
Гораздо более серьезными являются конструктивные ошибки при создании дизайна интерьера помещения: начинающий специалист зачастую не знает основных правил размещения предметов мебели в пространстве. Есть такие понятия, как кулинарный или кухонный цикл, спальный цикл. Есть правила хорошего тона в планировках санузлов, согласно которым располагать унитаз прямо напротив входной двери нежелательно. Есть принципы создания функциональных детских комнат, согласно которым, нужно ставить письменный стол к окну таким образом, чтобы свет из окна падал слева, если ребенок правша.
СТОИМОСТЬ ДИЗАЙН-ПРОЕКТА
Итоговая стоимость считается по площади помещения. Например, если Ваш дом или квартира имеет площадь 100 кв.м., то цена дизайн-проекта составит 100 х 2990 = 299000 руб. Вы можете получить скидку по ссылке ниже. С учетом скидки цена проекта будет 100 х 2990 - 10% = 269100 руб.

Техническое решение
ТЕХНИЧЕСКИЙ ПРОЕКТ
Рабочие чертежи, планы, схемы и спецификации для строителей, без визуализации и разверток
Цена 1990 руб. за кв.м.
Калькулятор стоимости
Введите площадь Вашей квартиры, выберите вид дизайн-проекта и нажмите Рассчитать стоимость.

Вадим, г. Балашиха
Заказывал дизайн и отделкуЗаказал проект, получил смету, сравнил её со сметой из другой компании. Понял, что правильнее заказать и проект и ремонт в одной компании.
Евгения, Саларьево
Заказывала и проект и ремонтВсе получилось очень красиво, функционально и продумано до мелочей. Нам составили подробный список всех используемых материалов и чертежей.
Как создать уютную атмосферу в квартире

Освещение в квартире определяет настроение людей, которые будут там жить, функциональность комнаты, помогает сделать интерьер уютнее и даже визуально увеличивает пространство. Для этого нужно знать, как правильно спланировать свет.
1. Выбирайте для спальни неяркий свет
Спальня — пожалуй, единственное место в доме, где основной свет должен быть неярким. Планируйте несколько сценариев освещения: общий, например, лампу под потоком, и направленный — бра над кроватью или настольные светильники на прикроватных тумбочках. Выбор нужно сделать заранее, так как работы по проводке всегда осуществляются во время черновых ремонтных работ.

2. В гостиной можно использовать потолочные светильники
Один из самых простых и оптимальных вариантов — сделать в гостиной встроенное освещение с помощью спотов. Учитывайте правильное расположение точечных светильников: расстояние до стен, шкафов и окон должно быть не менее 20 см.
Лучше, если будут и дополнительные источники света. Например, торшер у кресла или настольная лампа у дивана. Так вы сможете создать в комнате разную обстановку, в зависимости от вашего настроения.

3. В кухне должно быть несколько световых сценариев
Если оставить один плафон на потолке — он создаст тени и визуально уменьшит пространство. В интерьере кухни также лучше предусмотреть несколько источников света.
Во-первых, общее освещение (можно с помощью встроенных спотов).
Во-вторых, подсветка рабочей зоны — это не только удобство, но и безопасность, так как на кухне мы постоянно работаем с ножами.
В-третьих, подсветка обеденной группы.
Последнее — на ваше усмотрение, но светильник над столом создает уют и расслабленную атмосферу. Если есть барная стойка, над ней можно повесить несколько осветительных приборов на длинных шнурах. Главное — разместить их на равных расстояниях друг от друга.

4. Мощность освещения в санузле зависит от его площади
Есть одно главное правило в планировании освещения санузла: если он совмещенный, нужно делать несколько разных типов светильников. Запланируйте потолочный свет, подсветку в зоне раковины, можно также разделить свет в зоне туалета и ванны (душевой).


Если санузел раздельный, то в маленьком туалете вполне можно обойтись только потолочным освещением, но хорошей мощности.
5. В прихожей нужен мощный свет
Прихожая в квартире — зона без естественного освещения, и это приходится компенсировать с помощью искусственного света. Специалисты рекомендуют предусмотреть несколько вариантов освещения.Общее потолочное — должно быть достаточно ярким и мощным. Также можно разместить небольшую лампу, например, на входе — будет удобно, когда понадобится включить свет вечером и не разбудить им домочадцев.


6. Устанавливайте по светильнику 20 Вт на 1 кв.м. потолка
Специалисты рекомендуют считать оптимальный уровень освещения по этому правилу. Заранее сделайте схему, по которой вы будете располагать светильники и просчитайте их количество.

7. Выбирайте тип освещения в зависимости от размера комнаты
В интерьере небольшой комнаты лучше использовать маленькие светильники. А также способы, которые помогут визуально увеличить пространство. Например, подсветку карниза, бра на стене, рассеянный свет. Можно усилить эффект увеличения комнаты с помощью зеркала на стене. А еще эти приемы работают лучше вместе со светлой отделкой стен, которая хорошо отражает свет.

8. Если не знаете, какие лампы выбрать — выбирайте споты
Точечные светильники сегодня применяют не только для освещения, но и для декора интерьера. Ведь их можно закрепить на любой поверхности — как горизонтальной, так и вертикальной.

9. Следуйте последним модным тенденциям — выбирайте светодиодную подсветку
Один из модных трендов в дизайне — светодиоды. Они на самом деле открывают большие возможности для экспериментов с освещением и к тому же намного эффективнее привычных осветительных приборов. Так, например, LED-светильники помогают экономить электроэнергию, и отличаются долгим сроком службы — до 25 лет. Еще одно преимущество, за которое их любят дизайнеры жилых комнат — они излучают свет, максимально близкий к естественному.

10. Учитывайте психологический аспект
Это действительно важный фактор при планировании освещения в доме. На эмоциональное состояние человека влияет температура ламп: «холодная» или «теплая». Доказано, что выбор температуры определяет восприятия интерьера комнаты и влияет на биоритмы людей, которые в ней находятся.
Так, в рабочей зоне нужен холодный свет — он помогает сконцентрировать внимание. А в спальне, наоборот, теплый — он способствует релаксу.
11. Выбирайте правильный тип ламп
Попробуйте просчитать количество люксов для конкретного помещения или закажите проект освещения, а так же не забывайте о нескольких сценариях освещения для помещения.
Сравнительные таблицы помогут сделать правильный выбор освещения.

Какие ошибки чаще всего допускают начинающие при создании дизайн-проекта
Бывало ли у вас такое, что к вам приходит идея создать что-то новое, чего никто до вас не делал? Например, сделать магазин винтажных аксессуаров и техники? Выпустить свою линейку одежды с уникальными принтами? Ну или сделать игру, в которой можно грабить корованы?)
Думаю, многим из нас такие идеи часто приходили в голову, но воплотить их в реальность это долгий и тяжелый путь. На этом пути самое первое, что встречается, это непонимание с чего начать, где найти финансирование и компетентных людей, которые помогут с воплощением такой идеи. И, в таком случае, вам очень повезет, если у вас есть знакомый или близкий человек, который имеет необходимые навыки и готов вместе с вами притворить эту идею в жизнь. Или если у самого себя найдутся нужные силы, время, навыки, чтобы идею воплотить.
Или вот, например, у многих из нас бывают такие ситуации, когда мы хотим научиться чему-то новому. Основам дизайна, навыкам публичных выступлений и переговоров, попробовать свои силы в программировании. И уже даже изучили все подробно, но не хватает практического опыта, а чтобы найти работу с новыми навыками, всем нужен человек с опытом.
Я, конечно, не открою америку тем, что скажу, что у всех нас часто возникает желание сделать что-то новое или попробовать себя в новой роли. Но я на своем примере очень хорошо ощутил, насколько это сложный и тернистый путь. Но что, если есть и другой путь?
Когда я претворял свою первую идею в жизнь, я так же не знал, с чего начать, кто мне может помочь в реализации и где найти нужных людей с которыми вместе можно воплотить свою идею. Поэтому я все делал своими силами и это было очень долго и сложно. Сейчас, спустя почти 10 лет с того момента, я понимаю, что почти все, что я делал тогда, можно было сделать гораздо лучше, быстрее и проще. Однако, этот опыт помог мне понять, что может быть необходимо, таким же энтузиастам как я.
И теперь, имея существенный опыт воплощения собственных идей и идей целых компаний, с которыми мне довелось работать (среди которых Procter & Gamble, KPMG, Inditex, Luxoft и Сбер). Мне больше всего хочется поделиться этим опытом с другими людьми, которые носят свои выдающиеся идеи, но пока не могут их реализовать из-за недостатка опыта, времени и подходящих знакомых. Мой опыт мне помог найти и реализовать способ, который может ощутимо снизить этот барьер. А именно, поможет найти единомышленников и соратников, которые вместе с вами, будут готовы воплотить свою идею в жизнь, либо помогут вам понять, как сделать то, что вы хотите проще и быстрее.
И чтобы поделиться этими знаниями я мог не только в теории, но и на практике, мне понадобилось создать небольшой сайт, на котором каждый желающий может найти единомышленников с необходимыми компетенциями. Похожая идея возникала не только у меня, но в этом случае, мы говорим не про банальный поиск исполнителя или инвестора, а именно про поиск соратников и единомышленников, которые смогут помочь вам воплотить идею от начала и до конца. Одним из таких соратников буду и я сам, помогая вам на любом этапе понять куда лучше двигаться и кто может помочь с той или иной идеей.
Буду рад вашим комментариям и с удовольствием отвечу на каждый вопрос.
Как подобрать освещение для разных зон квартиры
Пропустим сейчас способы вдохновиться, которые наверняка посоветует вам поисковик или книга мотивационного психолога. Среди них вы найдете советы путешествовать, уделять больше времени себе, общаться с энергичными людьми и чаще бывать на природе.
Несомненно, все эти пункты важны и действительно способствуют не только хорошему настроению, но и творческому подъему, во время которого лучше всего заняться обдумыванием своего будущего жилища. Мы же рассмотрим один из простейших способов настроиться на создание интерьера — это просмотр и подбор примеров, которые вы сможете взять за основу и оттолкнуться от них.
Казалось бы, о чем тут говорить? Нет ничего проще пролистывания красивых картинок; однако на самом деле и здесь есть свои хитрости.
Во-первых, понимание того, где искать. Вводить в поисковике запрос "дизайн спальни" — значит обречь себя на многочасовое изучение совершенно безвкусных образцов интерьеров. Самым верным ходом будет покупка парочки печатных журналов о дизайне. Там вы найдете не только красивые картинки, но и описание технических нюансов и аргументы в пользу того или иного стилистического решения.
К тому же все интерьеры, которые публикуются в журналах, обязательно проходят строгий редакционный отбор, так что вы не потратите время на безвкусные проекты.
Итак, вы выбрали место, где будете черпать вдохновляющие идеи, — купили парочку журналов или подписались на близких по духу дизайнеров в "Инстаграме". Тут еще небольшой совет: лучше остановить свой выбор не на крупных пабликах декораторов и дизайнеров, а на частных специалистах либо небольших студиях, стиль и подход которых вам близок. Так будет проще отсеивать ненужное, а процент проектов, попадающих в яблочко, — выше.
Понравившиеся варианты в "Инстаграме" удобно сложить в закладки, а то, что приглянулось в журналах, можно вырезать и собрать в альбом или повесить на стену. Через некоторое время у вас наберется приличное число самых разных интерьеров, и теперь важно правильно проанализировать получившуюся коллекцию.
О том, как это сделать, - в следующий раз.
Когда я выложила в свой профиль проект этой кухни, восторженным комментариям и отзывам не было конца. Комната получилась светлая, нескучная, наполненная цветами и деталями, которые хочется рассматривать с разных углов.
А чуть позже мне предложили опубликовать проект и его описание в одном онлайн-журнале, на что я с удовольствием согласилась.
Было достаточно непросто и в то же время интересно проанализировать все принятые мною творческие решения в этом интерьере, ведь, как правило, я создаю проекты интуитивно, не следуя слепо нормам и канонам сочетания цветов и распределения пропорций.
Но когда я тщательно обдумала и оценила получившийся результат, стало понятно, что в каждом решении присутствует и логика, и соблюдение общих правил. Это и называется насмотренностью.
После создания большого количества интерьеров мне уже не нужно сверяться с теорией, достаточно просто взглянуть на полупустой рендер. То же касается и каждого из вас — не считайте просмотр удачных интерьеров пустой тратой времени.
Это постепенное впитывание правильных сочетаний и дизайнерских решений, которые после будут рождаться в вашей голове "интуитивно".